Anexos I,II, III e VII da NR 12

NR 12 - Máquinas e Equipamentos

1 Anexos I,II, III e VII da NR 12

Anexo I e II :

Colocar imagem aqui:

Anexo I - Requisitos para o uso de detectores de presença optoeletrônicos.

 

O anexo vai estabelecer as referências de distâncias de segurança e requisitos para o uso de detectores de presença optoeletrônico em certas máquinas e equipamentos no geral, precisando ser observados, quando for o caso, as disposições que contém nos anexos e nas normas específicas.

 

A) Cálculo das distâncias mínimas de segurança para a instalação de detectores de presença optoeletrônicos - ESPE utilizando cortina de luz - AOPD.

 

A distância mínima pela qual ESPE utilizado cortina de luz - AOPD tem que ser posicionada em relação à zona de perigo, vai ser observada o cálculo de acordo com a norma ISO 13855. Para estar aproximando perpendicularmente à distância podemos calcular de acordo com a fórmula geral apresentada na seção 5 da ISO 13855, a saber:

S = (K x T) + C

Onde:

  • S: é a mínima distância em milímetros, da zona de perigo até o ponto, linha ou plano de detecção;
  • K: é um parâmetro em milímetros por segundo, derivado dos dados de velocidade de aproximação do corpo ou partes do corpo;
  • T: é a performance de parada de todo o sistema - tempo de resposta total em segundos;
  • C: é a distância adicional em milímetros, baseada na intrusão contra a zona de perigo antes da atuação do dispositivo de proteção.

Com o objetivo de determinar K, uma velocidade de aproximação de 1600 mm/s (mil e seiscentos milímetros por segundo) é preciso que ela seja utilizada para cortinas de luz dispostas na horizontal. Para as cortinas que ficam verticalmente, é necessário ser utilizada uma velocidade de aproximação de 2000 mm/s (dois mil milímetros por segundo) se a distância mínima for menor ou igual que 500 mm (quinhentos milímetros). Uma velocidade de apresentação de 1600 mm/s (mil e seiscentos milímetros por segundo) pode ser utilizada se a distância mínima for maior que 500 mm (quinhentos milímetros).

As cortinas tem que ser instaladas de maneiras em que a sua área de detecção irá cubrir o acesso à zona de risco, tendo o cuidado para não criar espaços de zona morta, ou seja, espaço entre a cortina e o corpo da máquina onde pode estar permanecendo um trabalhador sem ser detectado.

Tendo respeito à capacidade de detecção da cortina de luz, é necessário ser usada pelo menos a distância adicional C no quadro I quando vai se calcular a mínima distância S.

 

QUADRO I - Distância adicional C

 

 

Outras características de instalação de cortina de luz, como as de aproximação paralela, aproximação em ângulo e equipamentos de dupla posição precisam atender as condições específicas previstas na norma ISO 13855. A aplicação de cortina de luz em dobradeiras precisa atender à norma EN 12622.

Fonte: ISO 13855 - Safety of machinery - The positioning of protective equipment in respect of approach speeds of parts of the human body.

 

B) Requisitos para uso de sistemas de segurança de detecção multizona - AOPD multizona em dobradeiras hidráulicas.

 

As dobradeiras hidráulicas podem possuir AOPD multizona desde que acompanhado de um processo de trabalho detalhado que irá atender à EN12622 e os testes previstos de acordo com as recomendações do fabricantes.

Os testes precisam ser feitos a cada troca de ferramenta ou qualquer manutenção, e ser feitos pelo operador a cada começo de turno de trabalho ou afastamento prolongado da máquina.

Nas dobradeiras hidráulicas que são providas de AOPD multizona que usam pedal para acionamento de descida, este precisa ser de segurança e possuir as seguintes posições:

a) 1ª (primeira) posição = parar;

b) 2ª (segunda) posição = operar; e

c) 3ª (terceira) posição = parar em caso de emergência.

A abertura da ferramenta pode ser ativada, desde que seja controlado o risco de queda do produto em processo, tendo o acionamento do pedal para a 3ª (terceira) posição ou liberando-o para a 1ª (primeira) posição.

Depois do acionamento do pedal até a 3ª (terceira) posição, o recomeço será apenas possível com o retorno para a 1ª (primeira) posição. A 3ª (terceira) posição só pode ser acionada se passar por um ponto de pressão; a força necessária não pode exceder 350 N (trezentos e cinquenta Newtons).

 

Anexo II: Conteúdo programático da capacitação:

 

  • A capacitação para uma operação segura de máquina precisa abranger as etapas da teoria e prática, tendo como objetivo proporcionar a competência correta do operador para um trabalho seguro, contendo no mínimo:
  • Descrição e identificação dos riscos associados com cada máquina e equipamento e as proteções específicas contra cada um deles;
  • Funcionamento das proteções; como e por que devem ser usadas;
  • Como e em que circunstâncias uma proteção pode ser removida, e por quem, sendo na maioria dos casos, somente o pessoal de inspeção ou manutenção;
  • O que fazer, por exemplo, contatar o supervisor, se uma proteção foi danificada ou se perdeu sua função, deixando de garantir uma segurança adequada;
  • Os princípios de segurança na utilização da máquina ou equipamento;
  • Segurança para riscos mecânicos, elétricos e outros relevantes;
  • Método de trabalho seguro;
  • Permissão de trabalho; e
  • Sistema de bloqueio de funcionamento da máquina e equipamento durante operações de inspeção, limpeza, lubrificação e manutenção.

 

A capacitação de operadores de máquinas automotrizes ou autopropelidas, precisa ser constituída das etapas teórica e prática e possuir o conteúdo programático mínimo descrito nas alíneas do item 1 deste Anexo e ainda:

  • Noções sobre legislação de trânsito e de legislação de segurança e saúde no trabalho;
  • Noções sobre acidentes e doenças decorrentes da exposição aos riscos existentes na máquina, equipamentos e implementos;
  • Medidas de controle dos riscos: Equipamentos de Proteção Coletiva - EPCs e Equipamentos de Proteção Individual - EPIs;
  • Operação com segurança da máquina ou equipamento;
  • Inspeção, regulagem e manutenção com segurança;
  • Sinalização de segurança;
  • Procedimentos em situação de emergência; e
  • Noções sobre prestação de primeiros socorros.

A etapa prática tem que ser supervisionada e documentada, podendo ser feita na própria máquina que vai ser operada.

2 Anexo III - Meios de acesso a máquinas e equipamentos:

colocar uma imagem aqui:

Meios de acesso a máquinas e equipamentos:

 

  • Os equipamentos e as máquinas tem que possuir acessos seguros e fixados a todos os seus pontos de operação, abastecimento, inserção de matérias-primas e retirada de produtos trabalhados, preparação, manutenção e intervenção constante. 
  • Consideramos meios de acesso ás maquinas e os equipamentos, para os efeitos desta NR, elevadores, rampas, passarelas, plataformas ou escadas de degraus.
  • Não podemos aplicar a exigência do item 1 aos meios de acessos dos prédios e das estruturas industriais fixas e flutuantes, nas quais as máquinas e os equipamentos vão ser instalados, exceto quando a sua principal função seja estar provendo acesso à máquina e ao equipamento.
  • Na impossibilidade técnica de adotar os meios previstos no segundo subitem deste tópico, poderá ser usada escada fixa do tipo marinheiro.
  • Em equipamentos e máquinas, os riscos de acessos tem que ser instalados e localizados de maneira a estar prevenindo os riscos de acidentes e ajudar o seu acesso e utilização pelos trabalhadores.
  • Em atividades de manutenção, limpeza ou outras intervenções eventuais poderá ser adotado usar plataformas móveis ou elevatórias, que vão garantir a estabilidade, ou de outros modos de acesso que não pertencem as máquinas e os equipamentos desde que fiquem seguramente fixados.

 

O emprego dos meios de acesos tem que considerar o ângulo de lance conforme iremos ver na figura 1.

Legenda:

A: Rampa.

B: Rampa com peças transversais para evitar o escorregamento.

C: Escada com espelho.

D: Escada sem espelho.

E: Escada do tipo marinheiro.

Figura 1: Escolha dos meios de acesso conforme a inclinação - ângulo de lance.

Fonte: ISO 14122 - Segurança de Máquinas - Meios de acesso permanentes às máquinas.

 

  • Os locais ou postos de trabalho acima do piso em que tenha acesso de trabalhadores para operação ou quaisquer outras intervenções habituais nas máquinas e equipamentos, como abastecimento, preparação, ajuste, inspeção, limpeza e manutenção, tem que possuir plataformas de trabalho seguras e estáveis.
  • Na impossibilidade técnica de estar aplicando o que foi previsto no item 3, poderá ser anotado o uso de plataformas elevatórias ou móveis.
  • As plataformas móveis precisam ser estáveis, de maneira a não estar permitindo a movimentação ou tombamento na hora que for realizar o trabalho.
  • As plataformas, passarelas, rampas e escadas de degraus tem que propiciar condições seguras de trabalho, circulação, movimentação e o manuseio de materiais e;

a) ser dimensionadas, construídas e fixadas de modo seguro e resistente, de forma a suportar os esforços solicitantes e movimentação segura do trabalhador;

b) ter pisos e degraus constituídos de materiais ou revestimentos antiderrapantes;

c) ser mantidas desobstruídas;

d) ser localizadas e instaladas de modo a prevenir riscos de queda, escorregamento, tropeçamento e dispêndio excessivo de esforços físicos pelos trabalhadores ao utilizá-las.

Quando for preciso ter uma maior resistência ao escorregamento, nas rampas com um ângulo de inclinação entre 10º e 20º, é preciso ser instaladas peças transversais horizontais distanciadas entre 0,40 m (quarenta centímetros) e 0,50 m (cinquenta centímetros) e com altura entre 0,01 m (um centímetro) e 0,02 m (dois centímetros), de acordo com a Figura 2 - rampa com peças transversais.

Fonte: ISO 14122-2:2016 - Segurança de Máquinas - Meios de acesso permanentes às máquinas

Legenda:

T distância entre duas peças transversais
b largura
h altura
α ângulo de inclinação

É proibido realizar a construção de rampas com a inclinação superior a 20º (vinte) graus em relação ao piso. As rampas que eram instaladas antes da vigência desse subitem são dispensadas do atendimento 6, tendo que ser adotada outra medida de mesma eficácia.

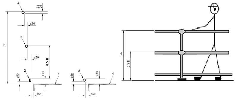
Os meios de acesso das máquinas e equipamentos precisam possuir um sistema de proteção contra as quedas com as seguintes características:

a) Ser dimensionados, construídos e fixados de modo seguro e resistente, de forma a suportar os esforços solicitantes;
b) Ser constituídos de material resistente a intempéries e corrosão;
c) Possuir travessão superior instalado de 1,10 m (um metro e dez centímetros) a 1,20 m (um metro e vinte centímetros) de altura em relação ao piso ao longo de toda a extensão, em ambos os lados;
d) O travessão superior não deve possuir superfície plana, a fim de evitar a colocação de objetos; e
e) Possuir rodapé de, no mínimo, 0,20 m (vinte centímetros) de altura e travessão intermediário a 0,70 m (setenta centímetros) de altura em relação ao piso,
localizado entre o rodapé e o travessão superior.

Os meios de acesso que são instalados antes da publicação da Portaria SIT n. º 197, de 17 de dezembro de 2010, D.O.U de 24/12/2010, ficam dispensados do atendimento da dimensão indicada na alínea "c" do item 7, devendo o travessão superior ter no mínimo 1,00 m (um metro).

As escadas fixas do tipo elevadores e marinheiro estão dispensadas do cumprimento do item 7.

Caso exista risco de queda de objetos e materiais, o vão entre o rodapé e o travessão superior do guarda corpo tem que receber uma proteção fixa, integral e resistente.

A proteção mencionada no item 8 pode ser constituída de tela resistente, desde que a sua malha não de permissão a passagem de qualquer outro objeto ou material que possa estar causando lesões ao trabalhadores.

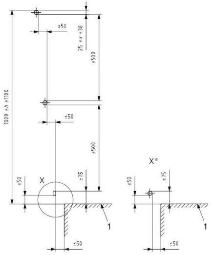
Para o sistema de proteção contra quedas em plataformas usadas em operações de abastecimento ou que acumulem sujidades, é permitido adotar as dimensões da Figura 3 deste Anexo.

 

Figura 3: Sistema de proteção contra quedas em plataforma. (dimensões em milímetros)
Legenda:
H: Altura barra superior, entre 1000 mm (mil milímetros) e 1100 mm (mil e cem milímetros)
1: Plataforma
2: Barra-rodapé
3: Barra intermediária
4: Barra superior corrimão

As passarelas, plataformas e rampas necessitam ter as seguintes características:

  • a) Largura útil mínima de 0,60 m (sessenta centímetros);
  • b) Meios de drenagem, se necessário.

A largura útil mínima das passarelas, rampas e plataformas pode ser reduzida para 0,50 m (cinquenta centímetros) nos seguintes casos:

  • Quando seu comprimento for menor que 2,00 m (dois metros);
  • Quando o espaço no nível do piso for restrito por canalizações, cabeamentos elétricos ou razões construtivas da máquina.

As passarelas, rampas e plataformas instaladas antes da publicação da Portaria SIT nº 197, de 17 de dezembro de 20100, D.O.U. de 24/12/2010, ficam dispensadas do atendimento da alínea “a” do item acima, devendo ser garantida largura útil mínima de 0,50 m (cinquenta centímetros).

As escadas de degraus sem espelho devem ter:

  • a) largura útil mínima de 0,60 m (sessenta centímetros);
  • b) degraus com profundidade mínima de 0,15 m (quinze centímetros);
  • c) degraus e lances uniformes, nivelados e sem saliências;
  • d) altura máxima entre os degraus de 0,25 m (vinte e cinco centímetros);
  • e) plataforma de descanso com largura útil mínima de 0,60 m (sessenta centímetros) e comprimento a intervalos de, no máximo, 3,00 m (três metros) de altura;
  • f) projeção de um degrau, “r”, sobre o outro deve ser maior ou igual a 0 m (zero metro);
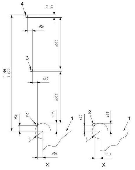
  • g) degraus com profundidade livre, “g”, que atendam à fórmula: 600≤ g +2h ≤ 660 (dimensões em milímetros), conforme a Figura 4 que iremos ver a seguir:

Legenda:

H altura da escada α ângulo de inclinação

g profundidade livre do degrau w largura da escada

p linha de passo r projeção entre degraus

h altura entre degraus t profundidade total do degrau

Figura 4 - Partes de escada (exemplo de escada sem espelho)

Fonte: ISO 14122-3:2016 - Segurança de Máquinas - Meios de acesso permanentes às máquinas (adaptado).

Para as escadas com um único lance onde a altura for inferior a 1,50 m (um metro e cinquenta centímetros), a largura útil mínima poderá ser reduzida para 0,50 m (cinquenta centímetros).

As escadas de degraus sem espelho das máquinas e equipamentos instaladas antes da publicação da Portaria  SIT nº 197, de 17 de dezembro de 2010,D.O.U. de 24/12/2010, ficam dispensadas do atendimento das alíneas “a” e “e” (exceto quanto ao intervalo de até três metros) do item 11 deste Anexo, devendo ser garantida largura útil mínima de 0,50 m (cinquenta centímetros).

 

As escadas de degraus com espelho devem ter:

  • a) largura útil mínima de 0,60 m (sessenta centímetros);
  • b) degraus com profundidade mínima de 0,20 m (vinte centímetros);
  • c) degraus e lances uniformes, nivelados e sem saliências;
  • d) altura entre os degraus de 0,20 m (vinte centímetros) a 0,25 m (vinte e cinco centímetros);
  • e) plataforma de descanso com largura útil mínima de 0,60 m (sessenta centímetros) e comprimento a intervalos de, no máximo, 3,00 m (três metros) de altura.

Para as escadas que tem um único lance onde sua altura for menor a 1,50 m ( um metro e cinquenta centímetros), a largura útil mínima poderá ser reduzida para 0,50 m (cinquenta centímetros).

As escadas de degraus com espelho das máquinas e equipamentos instaladas antes da publicação da Portaria SIT n.º 197/2010 ficam dispensadas do atendimento das alíneas “a”, “b”, “d” e “e” do item acima, exceto quanto ao intervalo de até três metros, devendo ser garantida largura útil mínima de 0,50 m (cinquenta centímetros).

As escadas fixas do tipo marinheiro devem ter:

  • a) dimensionamento, construção e fixação seguras e resistentes, de forma a suportar os esforços solicitantes;
  • b) constituição de materiais ou revestimentos resistentes a intempéries e corrosão, caso estejam expostas em ambiente externo ou corrosivo;
  • c) gaiolas de proteção, caso possuam altura superior a 3,50 m (três metros e meio), instaladas a partir de 2,0 m (dois metros) do piso, ultrapassando a plataforma de
  • descanso ou o piso superior em pelo menos de 1,10 m (um metro e dez centímetros) a 1,20 m (um metro e vinte centímetros);
  • d) corrimão ou continuação dos montantes da escada ultrapassando a plataforma de descanso ou o piso superior de 1,10 m (um metro e dez centímetros) a 1,20 m (um metro e vinte centímetros); 
  • e) largura de 0,40 m (quarenta centímetros) a 0,60 m (sessenta centímetros);
  • f) altura total máxima de 10,00 m (dez metros), se for de um único lance;

g) altura máxima de 6,00 m (seis metros) entre duas plataformas de descanso, se for de múltiplos lances, construídas em lances consecutivos com eixos paralelos, distanciados no mínimo em 0,70 m (setenta centímetros);
h) espaçamento entre barras horizontais de 0,25 m (vinte e cinco centímetros) a 0,30 m (trinta centímetros);
i) espaçamento entre o piso da máquina ou da edificação e a primeira barra não superior a 0,55 m (cinquenta e cinco centímetros);
j) distância em relação à estrutura em que é fixada de, no mínimo, 0,15 m (quinze centímetros);
k) barras horizontais de 0,025 m (vinte e cinco milímetros) a 0,038 m (trinta e oito milímetros) de diâmetro ou espessura; e
l) barras horizontais com superfícies, formas ou ranhuras a fim de prevenir deslizamentos. 

 

As gaiolas de proteção tem que ter um diâmetro de 0,65 m (sessenta e cinco centímetros ) a 0,80 m (oitenta centímetros), e:

a) possuir barras verticais com espaçamento máximo de 0,30 m (trinta centímetros) entre si e distância máxima de 1,50 m (um metro e cinquenta centímetros) entre arcos; ou 

b) vãos entre arcos de, no máximo, 0,30 m (trinta centímetros), dotadas de barra vertical de sustentação dos arcos.

3 Anexo VII – Máquinas para Açougue e Mercearia :

 

colocar a imagem aqui:

Máquinas para açougue, mercearia, bares e restaurantes:

 

O anexo estabelece os requisitos específicos para estar garantindo a  segurança para as máquinas de açougue, bares e restaurantes, mercearia, novas usadas e importadas: a saber: serra de fita, amaciador de bife e moedor de carne.

  • As máquinas para açougue, mercearia, bares e restaurantes não especificadas pelo Anexo e certificadas pelo INMETRO estão sendo excluídas da aplicação da NR quanto aos requisitos técnicos de construção relacionados à segurança da máquina.
  • As máquinas de açougue, bares e mercearia e restaurantes não específicas ou excluídas pelo Anexo e fabricadas antes da existência de programas de avaliação da conformidade no âmbito do INMETRO tem que estar atendendo aos requisitos técnicos de segurança por conta da proteção das zonas perigosas, que são estabelecidos pelo programa de avaliação de conformidade específico para estas máquinas.
  • As empresas e microempresas de pequeno porte de açougue, mercearia, bares e restaurantes ficam dispensadas do atendimento do 1º subitem da NR que fala a respeito das instalações.
  • O amaciador de bife e o moedor de carne estão dispensados de ter a interface de operação (circuito de comando) em extrabaixa tensão. Para estar aplicando este Anexo e as normas técnicas oficiais vigentes, os sistemas de segurança descrito para cada máquina são o resultado da apreciação de risco.
  • O circuito elétrico do comando da partida e parada do motor elétrico das máquinas especificadas no Anexo tem que estar atendendo ao disposto nos subitens 12.4.14 e 12.4.14.1 da parte geral da NR 12.
  •  

Serra de fita para corte de carnes em varejo:

 

Para fins de Anexo se considera serra de fita  máquina usada para corte de carnes em varejo, em principalmente com osso.

  • Os movimentos da fita no entorno das polias e demais partes perigosas, precisam estar protegidos com proteções fixas ou móveis intertravadas, de acordo com o item Sistemas de Segurança e seus subitens, à excessão da área operacional necessária para estar realizando o corte da carn, onde uma canaleta regulável deslizante, ou outra forma, precisa enclausurar o perímetro da fita serrilhada na região de corte, liberando somente a área mínima de fita serrilhada para operação.
  • Precisa ser adotado braço articulado vertical - empurrador, com movimento pendular em relação à serra, que serve para estar guiando e empurrando a carne e estar impedindo o acesso da mão à área de corte.
  • O braço articulado tem que ser firmemente fixado à estrutura da máquina, não podendo estar apresentando folga lateral que atrapalhe a segurança, e ser rígido, de maneira a não estar permitindo flexões ou deformações.
  • A mesa fixa precisa ter uma guia regulável paralela à serra fita, usada para estar limitando a espessura do corte da carne.
  • As mesas de corte que foram fabricadas a partir do dia 24 de junho de 2011 tem que possuir uma parte móvel para estar facilitando o deslocamento da carne, exceto para as serras com altura de corte que não é maior que 250mm;
  • A mesa móvel necessita ter um dispositivo que limita o seu curso para que a proteção para as mãos não possa estar tocando a fita;
  • A mesa móvel tem que ter um guia que vai permitir o apoio da carne na mesa e seu movimento de corte;
  • A mesa móvel e o braço articulado - empurrador - necessitam ter manípulos - punhos - com anteparos para estar protegendo as mãos;
  • É necessário ser usado um dispositivo manual para estar empurrando a carne lateralmente contra a guia regulável, e perpendicularmente à serra de fita, para o corte das peças pequenas ou para finalizar o corte da carne.
  • A serra de fita precisa possuir, no mínimo, um botão de parada de emergência de acordo com o item Dispositivos de parada de emergência e seus subitens.
  • Os movimentos perigosos precisam cessar no máximo em dois segundos quando a proteção móvel for acionada, ou deve ser atendido o disposto na alínea "b" 12.5.6 (Sistemas de segurança) desta NR:
  • O monitoramento do dispositivo de parada de emergência tem que ser feito por uma interface de segurança específica ou pode ser feito por uma das interfaces de segurança utilizada para o monitoramento do intertravamento das proteções móveis, classificadas como categoria 3 ou superior.

 

Amaciador de bife:

 

Para este Anexo, consideramos amaciador de bifes a máquina  com dois ou mais cilindros dentados paralelos tracionados que giram em sentido de rotação inversa por onde são passadas peças de bife pré-cortadas.

Os movimentos dos cilindros dentados e de seus mecanismos tem que enclausurados por proteções fixas ou proteções móveis intertravadas, conforme item Sistemas de Segurança e seus subitens.

 

O bocal de alimentação tem que impedir o acesso dos membros superiores à área dos cilindros dentados, atuando como uma proteção móvel intertravada dotada de, no mínimo um dispositivo de intertravamento com duplo canal, monitorada pela interface de segurança, duplo canal, de acordo com o item - Sistemas de Segurança e seus subitens.

Quando os cilindros dentados forem retirados juntamente com a proteção , é dispensado a aplicação do que foi pedido acima.

A abertura da zona de descarga deve impedir o alcance dos membros superiores na zona de convergência dos cilindros dentados de acordo com o subitem 12.5.1.1 (Sistemas de segurança.) desta NR.

O amaciador de bifes não precisa de parada de emergência.

 

Moedor de carne - Picador:

 

Para este anexo consideramos moedor de carne a máquina que utiliza rosca sem fim para moer carne.

O bocal de alimentação ou a bandeja tem que impedir o ingresso dos membros superiores na zona da rosca sem fim, em função de sua geometria, atuando como proteção fixa ou como proteção móvel dotada de intertravamento, monitorada por interface de segurança, conforme item Sistemas de Segurança e seus subitens.

A abertura da zona de descarga tem que impedir o alcance dos membros superiores na zona perigosa da rosca sem fim, de acordo com o subitem m 12.5.1.1 (Sistemas de Segurança) desta NR.