Noções Básicas de Desenho Arquitetônico e Construção Civil

Noções básicas de Construção Civil e Desenho Arquitetônico

1 Noções Básicas de Desenho Arquitetônico e Construção Civil

Objetivo da unidade

Conceituar normas técnicas, ABNT; Reconhecer características das principais exigências estabelecidas pela ABNT para a área de arquitetura; Reconhecer a importância das normas técnicas para o exercício de uma profissão.

O desenvolvimento da arquitetura

O escritor francês André Moreux definiu que a Arquitetura é a arte de construir sob o signo da beleza”. Nem sempre foi assim

A necessidade primitiva e inata de todos os animais de buscarem um abrigo não foi diferente no homem. A chuva, o vento, o frio, os predadores fizeram com que os primeiros homens buscassem abrigos seguros. Era o instinto de conservação que os compelia a essa busca.

Nos primórdios da formação das civilizações humanas, a noção de habitação não tinha o sentido de permanência e as moradias eram transitórias. Esse conceito foi aos poucos se desenvolvendo e paulatinamente o homem passou a cuidar com mais desvelo dos seus abrigos: desenhava nas paredes das cavernas, usava materiais mais duradouros nas construções e, para se proteger, cuidar dos rebanhos recém domesticados e a agricultura incipiente, agrupava-se.Assim, por necessidade de sobrevivência, passou a ser um animal gregário, logo, um animal social.

A medida que o homem evoluiu, suas construções, além de serem locais de refúgio, passaram a ser também lugares onde ele tem prazer em estar. A sua preocupação não se restringia apenas a se proteger, ele queria estar em local ao mesmo tempo seguro, agradável e belo. Suas emoções não se restringiam só ao medo, mas também ao prazer e à sua religiosidade. Homenageavam os seus mortos e reverenciavam as suas divindades. Suas construções eram mais sólidas e duradouras, mais limpas e arejadas e, sobretudo, o homem passava a ocupar-se com o estético, isto é, procurava construir com a preocupação voltada para o belo. Surgem as pinturas rupestres, como as das grutas de Altamira, na Espanha, e as belas e simétricas construções monolíticas, como as de Stonehenge, na Inglaterra.

Das construções eminentemente utilitárias da pré-história, passamos pela arquitetura monumental do Egito e da Mesopotâmia ou então aos estilos arquitetônicos tão peculiares da Índia, do Japão, da China ou mesmo das Américas, cada qual com suas particularidades culturais. Do harmônico dos estilos greco-romano, vamos ao soberbo do gótico e o barroco na Idade Média e Renascença, depois de passar pelo neoclássico, chegamos hoje à Arquitetura contemporânea.

Se, nos primórdios da história, o homem tinha na arte de construir a essência de se resguardar, passando posteriormente a ser elemento de tributo aos deuses e a Deus, hoje, o homem volta a si e consubstancia suas edificações ao seu conforto e bem-estar, enfim ao seu prazer.

Nesta busca incessante, nesta inquietude humana, concluímos que a Arquitetura, como a arte de edificar, é, ao mesmo tempo, uma ciência dinâmica e ilimitada em sua capacidade criadora, que aliou as necessidades fundamentais do homem, como:

a) físicas: de abrigo;

b) emocionais: de segurança e proteção;

c) estéticas: de beleza e funcionalidade.

em resumo

• O instinto de conservação levou o homem a buscar abrigos seguros que se foram modificando com o passar dos tempos.

• Com a evolução do homem, as construções, além de locais de refúgio, passaram a ser, também, locais agradáveis e belos.

• Das construções utilitárias da pré-história, passamos por diversos estilos até a arquitetura contemporânea.

• A Arquitetura é a arte de edificar; uma ciência dinâmica e ilimitada em sua capacidade criadora.

• A Arquitetura aliou as necessidades fundamentais do homem: físicas, emocionais e estéticas.

ABNT- Associação Brasileira de Normas Técnicas

O sistema de padronização é o alicerce para garantir a qualidade de um projeto. Para facilitar a compreensão do projeto em nível nacional,todososcomponentes que envolvemo desenho de arquitetura e engenharia são padronizados e normalizados em todo o país. Para isto existem normas específicas para cada elemento do projeto, assim como: caligrafia, formatos do papel e outros.O objetivo é conseguirmelhores resultados a partir do uso de padrões que supostamente descrevem o projeto de maneira mais adequada e permitem a sua compreensão e execução por profissionais diferentes independente da presença daquele que o concebeu.

Como instrumento, as normas técnicas contribuem em quatro aspectos:

• Qualidade: fixando padrões que levam em conta as necessidades e os desejos dos usuários.

• Produtividade: padronizando produtos, processos e procedimentos.

• Tecnologia: consolidando, difundindo e estabelecendo parâmetros consensuais entre produtores, consumidores e especialistas, colocando os resultados à disposição da sociedade.

• Marketing: regulando de forma equilibrada as relações de compra e venda.

em resumo

• As normas técnicas são um processo de simplificação de procedimentos e produtos.

• As normas fixam padrões de qualidade, padronizam produtos, processos e procedimentos consolidam, difundem e estabelecem parâmetros consensuais entre produtores, consumidores e especialistas, bem como regulam as relações de compra e venda.

• O órgão responsável pela normalização técnica, no país, é a ABNT.

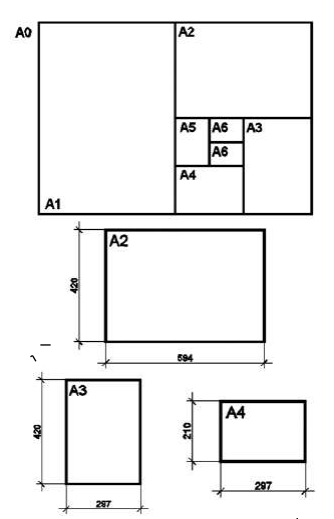
formatos do papel

As Normas Brasileiras de Desenho Técnico estabelecem como padrão a série “A”. A NBR 10.068 tem o objetivo de padronizar as dimensões, layout, dobraduras e a posição da legenda, garantindo desta forma uniformidade e legibilidade.

Os itens a serem observados na NBR, são os seguintes:

• posição e dimensões da legenda;

• margem e quadro;

2 Introdução

Este módulo de desenho Arquitetônico contém ilustrações que ajudarão o aluno a melhorar interpretação dos tópicos abordados, facilitando sua compreensão no momento de apresentar um empreendimento para cliente.
O desenho arquitetônico possui uma linguagem própria de expressão, a qual será apresentada no decorrer dos tópicos. O aluno terá conhecimento de todo o processo de desenvolvimento de um projeto arquitetônico, passando a ter intimidade com seus símbolos e termos básicos para a leitura deste módulo.
É importante que o aluno esteja consciente que o aprendizado flui com mais facilidade, quando existe o espírito de equipe. A troca de informações se faz necessária: saber ouvir, saber falar, respeitar a opinião do próximo é fundamental, para que todos, no final do curso atinjam o objetivo. Aprender não é só acumulo de informações, mas sim saber interpretá-las de acordo com a realidade da vida, é saber aproveitar, explorar do começo ao fim da vida.

Os Pilares do Conhecimento:

• Aprender a viver juntos
• Aprender a conhecer
• Aprender a fazer
• Aprender a ser
Aprender é uma função permanente do seu organismo, é a atividade pela qual o homem cresce, mesmo quando o seu desenvolvimento biológico há muito se completou. Essa capacidade de aprender permite uma educação indefinida, um indefinido crescimento ao ser humano.

3 Unidade 1 Parte 2

• marcas de centro;
• escala métrica de referência;
• sistema de referência por malhas;
• marcas de corte.
Osformatos da série “A”tem como base o Formato A0, cujas dimensões guardam entre si a mesma relação que existe entre o lado de um quadrado e sua diagonal (841 2 =1189), e que corresponde a um retângulo de área igual a 1 m 2.
A NBR10068 é complementada com a NBR 8402, referente à execução de caracteres para escrita em desenhos técnicos e procedimentos, e pela NBR 8403, que cuida da aplicação de linhas em desenhos – tipos de linhas – largura das linhas e procedimentos.

Dobraduras das pranchas

Os projeto de Arquitetura e Engenharia após serem executados, devem ser dobrados conforme as figuras abaixo:

Cabides para projetos

caligrafia técnica

Existe uma padronização também para a caligrafia técnica, para evitar que os projetos desenvolvidos em localidades diferentes sejam interpretados de formas distintas. Desta forma, adquire-se maior agilidade na interpretação e execução do projeto.
A NBR 8402 tem a finalidade de fixar características da escrita a mão livre ou por instrumentos usados para a elaboração dos projetos.
Segundo a norma, as letras devem ser sempre em maiúsculas e não inclinadas. Os números não devem estar inclinados.

Carimbo ou legenda

Em um projeto de Arquitetura ou Engenharia, faz-se necessário a identificação de alguns elementos, tais como: tipo de projeto, endereço, autor do projeto, responsável técnico pela obra, tipo de escala empregada, área do lote, área de construção, número da prancha, números de prancha, espaço reservado para a aprovação da prefeitura e pelo Conselho Regional de Engenharia, Arquitetura e Agronomia - CREA, entre outros.

tipos de papel

Existem duas categorias de papel para a elaboração do projeto de arquitetura: opacos e transparentes.
Papéis transparentes:Antes do advento do software para projetos,os projetos originais eram elaborados em papel-vegetal, por ser um papel transparente e de fácil manuseio e também, por proporcionar cópias idênticas aos originais.

Papéis Opacos:

Apresentam uso variável, para desenhos em geral;os projetos de Arquitetura e Engenharia abandonaram o uso do papel vegetal para os originais, abrindo espaço para o papel sulfite. Com o uso do computador para a elaboração dos projetos, é possível imprimir em papel sulfite tantas vezes quantas forem necessárias.

tipos de linhas

Os projetos utilizam uma variedade de tipos de linhas, para representar objetos em várias situações.
Já as instalações prediais requerem nomenclatura e convenções próprias. Vejamos algumas das convenções mais usuais:

Escalas - considerações de alguns autores:

"Toda representação está numa proporção definida com o objeto representado. Esta proporção é chamada de escala". ( Raisz, 1969:47)
"Escala é, então, a relação que existe entre os comprimentos de um desenho e seus correspondentes no objeto; portanto, escala nada mais é do que uma razão de semelhança. Sendo assim, toda escala é expressa por uma fração; essa fração é chamada escala numérica; sua representação gráfica chama-se escala gráfica. Os comprimentos considerados no desenho são chamados distâncias gráficas e os considerados no objetos são chamados distâncias naturais" (Rangel, 1965:11)
Existem três tipos de escalas: Escala Natural, Escalas de Redução e Escalas de ampliação.
Escala Natural:Quando o objeto que está sendo representado no desenho,apresenta a mesma medida do real, chamamos de escala natural. A escala natural está na razão 1 para 1, ou seja, o real está para o desenho na razão de uma medida do real para uma medida do desenho.
Escala de Redução: Quando o objeto que está sendo representado é de grandes dimensões, usamos escala de redução, para possibilitar sua representação no papel. Por exemplo, quando projetamos uma residência, um prédio ou uma cidade.
Escala de redução são representadas da seguinte forma:
O número 1 indica o desenho e o próximo o real. Exemplo: 1/50 (um por cinqüenta) Significa que um centímetro do papel representará 50 cm do real, ou seja, o desenho será reduzido 50 vezes.
Escala de Ampliação: Quando o objeto que está sendo representado é muito pequeno, necessitando ser ampliado para melhor interpretação do projeto. Esta escala é empregada nas áreas de mecânica, eletrônica, desenho de jóias, entre outras.
Observação - Escala real - Usa-se este tipo de escala quando o desenho deve ser igual ao objeto desenhado. A representação desta escala é sempre 1:1 (lê-se um por um).

Cotagem em Desenho Técnico (NBR - 10126)

Representação gráfica das dimensões no desenho técnico de um elemento, através de linhas,símbolos, notas e valor numérico numa unidade de medida. Elementos gráficos para representação de cotas.

4 Unidade 1 Parte 3

Recomendações

• a característica da linha de cota e linha auxiliar: linha estreita e contínua.
• linha auxiliar deve ser prolongada ligeiramente além da linha de cota.
• deixar um pequeno espaço entre a linha auxiliar e o elemento ou detalhe a ser cotado.
• linhas auxiliares devem ser perpendiculares aos elementos a serem cotados e paralelas entre si.
• linhas de centro não devem ser utilizadas como linhas de cota ou auxiliares porém podem ser prolongadas até o contorno do elemento representado e a partir daí com linha auxiliar (contínua estreita).
• sempre que o espaço disponível for adequado colocar as setas entre as linhas auxiliares, quando não for pode-se representar externamente.
• cotagem de raios, a linha de cota parte do centro do arco e uma única seta e representada onde a linha de cota toca o contorno do arco, a letra R (erre maiúscula) deve ser representada na frente do valor da cota.

Técnica de Cotar

a) as cotas devem ser representadas acima e paralelamente à linha de cota e aproximadamente no seu ponto médio.
b) as cotas devem ser lidas da base da folha de papel. As linhas de cotas devem ser interrompidas próximas ao meio para representação da cota.

Símbolos para as cotas

Utilizamos alguns símbolos, para facilitar e identificar das formas dos elementos cotados.

Projeções ortogonais

O desenho arquitetônico consiste em representar as edificações, levando em consideração as projeções, vistas, elevações, detalhes e cortes. Estas projeções nos proporcionam uma visão espacial, ou melhor, volumétrica da edificação.

5 Unidade 2 Parte 1

objetivo da unidade

Conceituar projeção, projeção ortogonal, levantamento topográfico; Identificar o significado de termos técnicos da área de arquitetura e engenharia, geralmente, utilizados durante o processo de transação imobiliária; Reconhecer características do levantamento topográfico e das diversas etapas de um projeto.

Etapas do projeto

É importante conhecer a linguagem do projeto arquitetônico, com seus símbolos e convenções, assim como, para saber ler e escrever corretamente, temos necessidade dos conhecimentos e regras de gramática. O desenho arquitetônico apresenta uma série de peculiaridades, que veremos a seguir, no sentido de instruir o aluno e torná-lo capaz de fazer uma leitura completa do projeto. Iniciaremos, passo a passo, as etapas de elaboração de um projeto, desde a escolha do lote até a aprovação nos órgãos competentes.

Escolha do lote ou terreno

- É importante levar em consideração alguns itens como:
• Localização
• Edificações vizinhas
• Posição em relação ao Norte
• Situação topográfica do lote (feito pelo topógrafo)
• Afastamentos exigidos pela prefeitura (Uso do Solo)
• Índice de ocupação (Uso do Solo)
• Resistência do solo (Projeto de Fundação)

compra do lote

Certificar-se de que toda a documentação está correta e passar imediatamente a escritura para o nome do comprador.

contratação do arquiteto

- É de fundamental importância a contratação deste profissional, até mesmo antes da negociação do lote, quando ele poderá orientar na escolha e adequação do terreno.

encomenda do projeto

Antes de dar início ao projeto de arquitetura, é necessário uma conversa detalhada entre o cliente e o arquiteto. Neste momento o arquiteto solicitará ao cliente o Uso do Solo, fornecido pela Prefeitura e o Levantamento Topográfico, que deverá ser executado por um topógrafo. Nesta etapa o profissional colherá dados do cliente, conhecerá suas necessidades e expectativas, para a elaboração do Programa de Necessidades, colhendo todas as informações necessárias para dar início à fase, a qual chamamos de Estudo Preliminar.

estudo preliminar

A partir do momento em que o arquiteto fica ciente dos objetivos e necessidades de seu cliente, começa a elaboração de um croqui, ou melhor, de um esboço, que dará início a nova fase, denominada de Anteprojeto.

anteprojeto

É o projeto desenhado, seguindo todas as normas do desenho técnico e da ABNT.

projeto final

Logo após a aprovação do projeto pelo cliente, o arquiteto passa a finalizá-lo, incluindo todos os desenho necessários para a aprovação na prefeitura e no CREA.

CREA

O Conselho Regional de Engenharia,Arquitetura e Agronomia é o órgão onde o arquiteto registra um documento denominado ART – Anotação de Responsabilidade Técnica, no qual assume total responsabilidade pelo projeto que assina. O CREA fiscaliza a atuação dos profissionais formados nas áreas de engenharia, arquitetura e agronomia.Regulamentadas, essas profissões têm direitos e deveres que devem ser respeitados por quem as exerce. O CREA verifica se a conduta desses trabalhadores está adequada – os que cometem erros graves correm o risco de perder o registro no Conselho e ficar em situação irregular

prefeitura

O cliente ou o profissional deverá levar o projeto para ser aprovado pela prefeitura; caso seja aprovado, deverá providenciar cinco jogos de cópia para serem registrados e carimbados.

Levantamento topográfico

É o estudo do terreno, visando verificar as divisas do terreno, suas as dimensões e desníveis. O levantamento topográfico é dividido em três etapas:
PLANIALTIMÉTRICO - abrange somente as divisas e os ângulos.
ALTIMÉTRICO - abrange as curvas de nível e alturas do terreno.
PLANIMÉTRICO - é o levantamento topográfico, propriamente dito; apresenta o estudo planialtimétrico e altimétrico do terreno.

curvas de nível

São linhas curvas que indicam as alturas e a inclinação do terreno. As curvas de níveis devem ser representadas metro a metro em um levantamento topográfico.Estas curvas são definidas de acordo com a sinuosidade do terreno: quanto mais próximas indicam que o terreno possui inclinação, quando são mais espaçadas, indicam que o terreno é pouco inclinado ou até mesmo plano. Conforme podemos notar na figura abaixo, o setor A é o mais ingrime e o setor B é o menos inclinado.
ORIENTAÇÃO - É a posição do norte em relação ao terreno; este deve constar no Levantamento Topográfico, pois é de fundamental importância para o arquiteto elaborar o projeto.
Existem dois tipos de orientação, a magnética (bússola) e a verdadeira, que é a geográfica. No Levantamento Topográfico é utilizada a verdadeira , pois a magnética apresenta variações no decorrer dos anos.
TERMOS TÉCNICOS - Para melhor compreensão do estudo topográfico, o Técnico em Transações Imobiliárias precisa estar por dentro de alguns termos técnicos relacionados à situação do terreno, para ter argumentos em uma explanação para o cliente. Os principais são:
• Terraplanagem – Processo de preparação do terreno, para dar início a construção.
• Aterro – Preenchimento de uma área em desnível, com terra ou entulho.
• Desaterro – Retirada de terra de uma área.

6 Unidade 2 Parte 2

• Declive – Quando a inclinação do terreno está abaixo do nível da rua.
• Aclive – Quando a inclinação do terreno está acima do nível da rua.
• Logradouro – Locais públicos, como praças, ruas, avenidas, parques etc...
• Arruamento – Processo de criação das ruas.
• Caixa de Rolamento – Parte da rua destinada para o trânsito de veículos.
• Passeio – Parte da rua destinada para o passeio de pedestre.
• Afastamento – Distâncias exigidas pelo Uso do Solo, da edificação em relação ao terreno.

Projeto de arquitetura

O projeto de arquitetura é constituído pelos seguintes desenhos:
• Planta Baixa ou Pavimento Térreo
• Pavimento Superior (quando for sobrado ou prédio)
• Layout
• Corte Transversal
• Corte Longitudinal
• Fachadas
• Planta de Cobertura
• Planta de Situação
• Implantação e Locação
• Quadro de Aberturas
• Quadro de Áreas
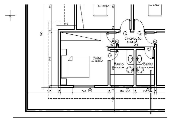
PLANTA BAIXA - É um corte transversal à edificação, a uma altura de 1,50m. Através da planta baixa, podemos visualizar os ambientes que compõe o projeto. Feche os olhos e imagine uma casa, visualizando da rua. Agora imagine se fosse possível, tirar o telhado e visualizá-la de cima.
Itens que compõe a planta baixa:
FACHADAS OU ELEVAÇÕES - São elevações verticais, frontal, lateral ou posterior, para se ter noção da edificação.
CORTES - São elevações verticais feitas no sentido transversal e longitudinal dentro da edificação, para medir as alturas dos elementos arquitetônicos, portas, telhados, escadas, rampas e outros.
PLANTA DE COBERTURA - Este desenho define a situação do telhado, número de águas, tipo de telha, lado da queda d´água e a largura do beiral.
PLANTA DE SITUAÇÃO – Define a situação do lote em relação à quadra, às ruas e aos lotes vizinhos.
PLANTA DE IMPLANTAÇÃO E LOCAÇÃO - Define a situação do projeto em relação ao terreno, incluindo as medidas dos afastamentos.
QUADRO DE ABERTURAS - Legenda a qual possui informações sobre as aberturas, portas e janelas.Quando a referencia é para janela, denominamos a sigla J , e para porta P.

7 Unidade 2 Parte 3

Conforme o tipo e as dimensões numeramos como no exemplo:
– QUADRO DE ÁREAS - Legenda que apresenta a área do terreno, área de construção e a área de permeabilidade (área de jardim).

Contratação dos projetos complementares

Estes projetos devem ser contratados após ter sido concluído o projeto arquitetônico. Os projetos complementares são os seguintes:
– PROJETO DE ESTRUTURA - Este projeto deverá ser elaborado pelo engenheiro civil.
Uma construção segura depende do projeto de estrutura que, por sua vez, depende do projeto de fundações, elaborado segundo a resistência do solo.
Laje - Estrutura plana e horizontal de concreto armado, apoiada em vigas e pilares.
Pilares - Elemento estrutural vertical de concreto, madeira, alvenaria ou pedra.
PROJETO HIDRO-SANITÁRIO - O objetivo deste projeto é dimensionar as tubulações necessárias, para cada área molhada(banheiros, lavabos, área de serviço, cozinha e outros). O projeto hidro-sanitário apresenta os pontos e as tubulações de água fria, quente, esgoto e pluvial.
PROJETO ELÉTRICO - O engenheiro elétrico define o caminho das tubulações elétricas desde a caixa de entrada de energia que vem da rua até a sua chegada aos equipamentos elétricos.

Símbolos e convenções nos projetos arquitetônicos

8 Unidade 3 Parte 1

objetivo da unidade

Conceituar Projeto de Arquitetura, Alvará, "Habitese", "ITBI", Memorial Des-critivo, Plano Diretor; Identificar as exigências estabelecidas para a construção de uma obra; Identificar os locais de registro; Reconhecer características básicas de um projeto de arquitetura, de projetos complementares, do levantamento topográfico; Reconhecer o processo utilizado para a elaboração do projeto; Explicar as características básicas de uma construção; Reconhecer o significado dos termos mais usados na área arquitetônica.

Portas e portões

Existe grande variedade de tipos de portas e portões, e oTTI precisa identificar as aberturas das portas e portões em um desenho arquitetônico. Para isto, seguem algumas figuras das portas com representação em planta.

janelas

As janelas em planta, geralmente são representadas conforme a figura abaixo:

Tipos de aberturas das janelas

BASCULANTE - as peças das janelas giram em torno de um eixo superior, tendo o movimento limitado por hastes laterais.
MÁXIMO-AR - Janela cuja abertura deixa os vidros numa posição perpendicular ao caixilho, permitindo total ventilação e iluminação em relação ao batente.
ABERTURA TIPO GUILHOTINA - a abertura da janela é na posição vertical.
JANELA DE CORRER - a abertura da janela é na posição horizontal.
. JANELA TIPO VENEZIANA - permite a ventilação permanente dos ambientes, impedindo a visibilidade do exterior e a entrada de água da chuva. É formada por palhetas inclinadas e paralelas.
JANELA COM BANDEIROLA , situado na parte superior das janelas ou das portas. Fixo ou móvel, favorecendo a iluminação e ventilação dos ambientes.

Fase de transição

O processo de elaboração de projetos de Arquitetura e Engenharia está passando por uma fase de transição, na qual ainda encontram-se profissionais que utilizam o método tradicional, fazendo uso da prancheta, régua, escala, esquadros e outros materiais de desenho, ao mesmo tempo em que ocorre uma significativa procura por uma nova ferramenta de trabalho, representada pelo “CAD - ComputerAidedDesign”, que significa “Projeto ou Desenho Auxiliado por Computador”. Cada vez mais os profissionais estão se conscientizando da praticidade, agilidade e conveniência oferecidas pelo sistema, facilitando, inclusive, a comunicação entre o profissional e seus clientes.

Método tradicional de desenho

Relacionamos, a seguir, alguns equipamentos, utensílios e mobiliário tradicionalmente utilizados pelos profissionais para elaboração de projetos.

Mobiliário

PRANCHETA - Mesa para desenho, com alavancas de acionamento da inclinação e da altura. Geralmente revestida com plástico de cor verde, branco ou azul.
RÉGUA “T” - Usada em desenho técnico para o traçado de linhas paralelas. Aslinhas perpendiculares são obtidas com auxílio de esquadro apoiado na réguaT. Pode ser fabricada em madeira, com bordas de plástico inquebrável ou acrílico. A régua T pode ser fixa ou acoplada a um cabeçote móvel, com transferidor, permitindo o traçado de linhas inclinadas.
RÉGUA PARALELA - régua paralela surgiu depois da régua T. É confeccionada em acrílico cristal com espessura de 3,2mm, podendo ter proteção de alumínio anodizado. É fixada na prancheta através de parafusos e cordoamentos de nylon especial. A régua desloca-se sobre a prancheta no sentido transversal, proporcionando o traçado de linhas paralelas.
ESCALA - É uma régua utilizada em desenho técnico para reduzir ou ampliar o objeto. O manuseio deste equipamento será detalhado, mais a frente.
ESQUADROS - Os esquadros são utilizados em conjunto com a réguaT ou com a paralela, para traçar linhas perpendiculares e paralelas. Existem esquadros de 30º e de 45º. São fabricados em acrílico cristal com 2mm ou 3mm de espessura, com escala em milímetros, ou sem escala, podendo, ainda, apresentar rebaixo para traçado a nanquim.
O tamanho dos esquadros varia de 16cm a 50cm.
TRANSFERIDORES - Transferidores são utilizados para aferir os ângulos do desenho. São fabricados em acrílico cristal com diâmetro variando entre 10cm e 25cm.
RÉGUAS DE NORMÓGRAFO - Estas réguas são utilizadas em conjunto com um instrumento, conhecido por “aranha”, onde são fixadas canetas à tinta e a ponta seca na régua, possibilitando assim o desenho artesanal das letras.
GABARITOS - São utensílios de plásticos ou acrílico que apresentam os contornos de objetos variados utilizados em desenho técnico de construções.
RÉGUA FLEXÍVEL - A régua flexível serve para o traçado de qualquer tipo de curva. É fabricada de borracha especial com alma interna de chumbo com liga especial. Possuir e baixo nas bordas para desenho à nanquim. O comprimento varia de 40cm a 1m.
ACHURIADOR RÁPIDO - Ideal para traçar linhas ou figuras perfeitamente paralelas com qualquer espaçamento. Possui dispositivo para acoplar qualquer tipo de gabarito o que amplia muito seu campo de utilização.
PANTÓGRAFO - Concebido para executar reduções ou ampliações com bastante precisão, dentro de uma tolerância máxima de 5% de erro, nas proporções de: 1/12, 1/10, 1/8, 1/6, 1/5, 1/4, 1/3, 2/5, 1/2, 3/5, 2/3, 3/4, 4/5, etc. Braços leves de alumínio anodizado e ferragens de latão finamente cromadas formam a estrutura.
LÁPIS – LAPISEIRAS - Os lápis e lapiseiras(minas ou grafites)são classificados por meio de letras ou números segundo o seu grau de dureza. Quanto maior for o seu número ou classificação de sua letra maior será a sua rigidez.
A série B compreende, de forma geral, os lápis macios e a série F os lápis duros. Para o desenho preliminar pode-se usar o lápis HB ou grafite equivalente para uso em lapiseira. Existe no mercado uma grande variedade de tipos de lapiseiras.

CURVA FRANCESA

9 Unidade 3 Parte 2

BIGODE - Indispensável na rotina de trabalho de estudantes e profissionais. De tamanho compacto, fácil da acomodar, possui cerdas naturais (crina animal) e cabo anatômico em madeira de lei com fino acabamento, medindo, aproximadamente 25 cm.

COMPASSO - Instrumento para desenhar arcos ou círculos.

Método atual de desenho – CAD – uma nova filosofia de trabalho

Filosofia de trabalho inovadora em projeto e construção, o CAD representa, sem dúvida, uma ferramenta essencial para o arquiteto e o engenheiro, bem como para todos os profissionais dedicados à área de desenho técnico.

Com o crescente interesse e conscientização das empresas com relação ao uso do CAD e seus efeitos sobre a melhoria da eficiência e da qualidade do trabalho oferecido à clientela, evidencia-se, no futuro próximo, a diminuição do espaço reservado àqueles profissionais que não adotarem esta tecnologia de ponta.

O ensino e aprendizado dessa ferramenta deve ser pautado pelas necessidades de cada profissional, ao arquiteto, por exemplo, é importante o profundo conhecimento dos comandos e facilidades oferecidas pelo programa, pois, à medida que vai desvendando suas quase ilimitadas possibilidades, passa a ter maior desenvoltura de trabalho, ganhando em produtividade e conseguindo, até mesmo conceber e materializar sua ideia diretamente no computador.

Uma vez que a ideia criativa origina-se na mente do profissional, o que acontece, neste caso, é a transferência de idéias do homem, diretamente para a máquina.

10 Unidade 4 Parte 1

objetivo da unidade

Conhecer a documentação necessária para início de uma obra, incluindo alvará, certidões negativas, habite-se e ITBI; Conhecer a classificação dos projetos residenciais quanto aos tipos de edificações; Descrever os tipos mais comuns de fundações e de estruturas de uma obra, Descrever as instalações de esgoto de uma residência, incluindo caixa de esgoto; Conhecer os vários tipos de revestimentos usados em uma obra, incluindo elementos decorativos.

obra

Uma obra envolve mais que tijolos, cimento ou argamassa. Há documentos, entidades, impostos e conjuntos de leis que, muitas vezes, o público leigo jamais suspeitou que existissem.

Ação de adjudicação compulsória

É utilizado para que se cumpra a transferência de propriedade de um bem imóvel quando o antigo proprietário não pode ou não quer fazê-la. Nessa ação, o novo dono deve comprovar que comprou e pagou por ele. Para isso, pode-se usar o compromisso de compra e venda, recibos, promissórias e testemunhas.

Alvará

Essa licença, expedida pela prefeitura, autoriza a construção ou a reforma de um imóvel. O poder municipal fica obrigado a liberar a permissão sempre que um pedido for feito, desde que respeite todas as regras e apresente todos os documentos requeridos.

Cartório de notas

O registro de todas as declarações ou documentos que precisam tornar-se públicos, por exigência – ou não – da lei, é feito nesses cartórios. Contratos de compra e venda, por exemplo, só viram escrituras quando lavrados ali. Assim, deixam de ser um instrumento particular para confirmar, de modo formal, a venda de um imóvel.

Certidão negativa

Qualquer documento que comprove a isenção de ônus ou as dívidas de todos os tipos com a Justiça, os órgãos públicos, a prefeitura e até o comércio e os credores leva esse nome. Tais papéis podem ser emitidos em nome de pessoas físicas ou jurídicas e em favor de um imóvel. O termo “negativa” nas certidões mostra que não houve nenhum registro de ocorrência nos órgãos consultados.

Código de obras

São leis municipais que determinam a forma de ocupação do solo, mais especificamente, estabelecendo detalhes técnicos para as construções, como a quantidade mínima de janelas e o dimensionamento das escadas e das saídas de emergência. Se essas regras forem desrespeitadas, a obra não será aprovada pela prefeitura. Nas capitais e grandes cidades, o Código de Obras é vendido em livrarias. Em outros municípios, ele pode ser obtido na prefeitura.

habite-se

Expedido pela prefeitura, é a licença que libera o imóvel construído ou reformado para a moradia ou para a permanência e circulação de pessoas (como cinemas, teatros e escritórios). Essa autorização só é concedida após a entrega de todos os documentos referentes à obra, como o alvará e o memorial descritivo, além dos comprovantes de pagamento dos impostos (INSS e ISS). Se houver qualquer divergência, um fiscal vai até a construção: ele pode multar o construtor e impedir que pessoas entrem no edifício até que as correções sejam feitas.

Imposto de transmissão de bens imobiliários (ITBI)

É cobrado sempre que há a transferência de propriedade de um bem imóvel feita de forma pública, ou seja, quando se lavra a escritura. A alíquota a ser paga varia entre 2% e 6% do preço do imóvel declarado no Cartório de Notas.

Juizado especial cível

São os antigos Juizados de Pequenas Causas, aos quais recorrem apenas as pessoas físicas. Servem para julgar causas civis de menor complexidade, com valores até quarenta salários mínimos. Para casos que não excedam vinte salários mínimos, é dispensada a presença de um advogado. Há exceções para os réus: nesses juizados não podem ser julgados, entre outros, os órgãos públicos.

Lei de zoneamento

Esse conjunto de leis e decretos municipais é responsável por ordenar e direcionar o crescimento de uma cidade. Por essa legislação, o mapa oficial de um município é dividido em zonas, que por sua vez são repartidas em usos. Uma zona pode ter uso único (quando é somente residencial, por exemplo) ou misto (comércio e casas). Essa lei também estabelece padrões urbanísticos que variam conforme a zona, como os recuos legais.

Memorial descritivo

Trata-se de um documento que descreve um imóvel ou um empreendimento imobiliário de forma completa (área total, área construída, metragem dos ambientes e até materiais de acabamento). É necessário para a requisição do habite-se na prefeitura.

plano diretor

É o conjunto das diretrizes legais que ordenam o crescimento e preservam a harmonia visual de uma cidade. Ele define linhas claras e rigorosas para projetos arquitetônicos e urbanísticos e, por isso, serve de referência às construções que interferem no traçado da cidade. Acompanhando o desenvolvimento do município, esse plano sofre modificações ao longo do tempo, que devem ser aprovadas pela Câmara Municipal e pelo prefeito. Às vezes, essas mudanças provocam conflitos de interesses (como a abertura de uma nova avenida onde existam casas). Assim, sempre que uma pessoa ou um grupo de cidadãos se sentir lesados, podem entrar na Justiça contra aspectos do plano diretor.

Residências - classificação

É importante estabelecer certos critérios classificatórios porque, em caso de financiamentos, as normas disciplinadoras tratam de forma diferenciada cada tipo de habitação.
As moradias podem ser classificadas quanto ao tipo e quanto à edificação. Vejamos estas classificações.
Classificação quanto ao tipo - As moradias podem ser classificadas quanto ao tipo em habitação unifamiliar, habitação popular e habitação residencial.
1. Habitação unifamiliar é a constituída de, no mínimo, um quarto, uma sala, um banheiro, uma cozinha e área de serviço coberta e descoberta.
2. Habitação popular é a que tem as mesmas características da habitação unifamiliar, podendo, contudo, ter até três dormitórios e a área total máxima não deve exceder aos 68 m2 , de acordo com o Código de Obras de Brasília. Esta área poderá sofrer pequenas variações, de acordo com o Código de Obras de outras regiões.
3. Habitação residencial é a que possui área com mais de 68m2 (Código de Obras de Brasília).
Alguns códigos de edificações estabelecem um coeficiente para classificar as residências, são os chamados coeficientes de leito e referem-se à relação existente entre a área total da residência e o número de leitos que esta pode abrigar. Define-se que o coeficiente de leito para as casas populares é igual ou inferior a 10 (dez).
Tomemos como exemplo uma casa com 58m² e três quartos (9 camas). O coeficiente de leito é igual a 58 : 9 = 6,44 que é inferior a 10; portanto, trata-se de uma casa popular.
Já uma outra casa com os mesmos 58m2 , porem com um único quarto, não poderá ser enquadrada como casa popular, pois seu coeficiente de leito é igual a 19,33 (58 : 3), quase o dobro de 10 (parâmetro para casa popular) .
Não vamos apresentar um desenho para este tipo de moradia, pois o que importa nela são as dimensões e não a forma.
Classificação quanto à edificação - As residências classificam-se quanto à edificação em isoladas, geminadas, em série, conjuntos residenciais e edifícios. Vejamos cada uma delas.
1. Residências isoladas são as que, como o nome indica, são separadas umas das outras.
2. Residências geminadas são as ligadas por uma parede comum.
3. Residências em série são as construídas em sequência.
4. Conjuntos residenciais são agrupamentos de moradia que têm no mínimo 20 unidades residenciais. Os conjuntos residenciais podem ser compostos de unidades isoladas e/ou prédios de apartamentos, dependendo do programa habitacional.

11 Unidade 4 Parte 2

Qualquer núcleo habitacional deverá ser servido de todos os complementos necessários ao seu pleno funcionamento, tais como comércio, escola, lazer, serviços públicos, etc., naturalmente mantendo as devidas proporções em relação ao número de usuários e à legislação de cada município.
5. Edifícios são edificações de dois ou mais pavimentos destinados a residência, comércio ou às duas finalidades (mista).
Cada projeto para edifício deverá seguir normas próprias em função de seu zoneamento, destinação, altura, número de unidades, além das legislações específicas do município.
Contudo, em todo e qualquer edifício deverá sempre existir uma preocupação constante quanto aos acessos verticais (escadas e elevadores), definidos por normas próprias, proteção contra incêndio, estacionamentos (mínimo 25m2 /veículo), coleta de lixo, etc.
• De acordo com as normas de financiamento, necessita-se freqüentemente classificar as obras. As moradias são comumente classificadas quanto ao tipo e quanto à edificação.
• Quanto ao tipo, as habitações classificam-se unifamiliares, populares e residenciais.
• Habitação unifamiliar é aquela constituída de um quarto, uma sala, um banheiro, uma cozinha e uma área coberta e descoberta.
• Habitação popular é a que tem as mesmas características da unifamiIiar, mas pode ter até três dormitórios, perfazendo uma área máxima de 68m2, segundo o Código de Edificações de Brasília. A habitação residencial ultrapassa a 68m2.
• Alguns códigos de edificações estabelecem um coeficiente para classificação das residências, denominados coeficientes de leito, que se referem à relação existente entre a área total da residência e o número de leitos que esta residência pode abrigar.
• Quanto à edificação, as habitações classificam-se em isoladas, geminadas, em série, conjuntos residenciais e edifícios.
• As habitações isoladas são separadas umas das outras.
• As habitações geminadas são unidas por uma parede comum.
• As habitações em série são várias residências construídas num mesmo local, com um mesmo projeto. São subdivididas em transversais e paralelas ao alinhamento predial.
• Conjunto residencial é o agrupamento de moradias que tem, no mínimo, vinte unidades residenciais. É composto de unidades isoladas ou prédios de apartamentos.
• Edifícios são edificações de dois ou mais pavimentos, destinadas a residência, comércio ou mistas.
• Todo e qualquer núcleo habitacional deverá ser servido de uma certa infraestrutura, como comércio, hospital, serviços públicos, escola, etc.

Fundação e estrutura

Elaborados os projetos de Arquitetura e Estrutura, cabe ao proprietário/construtor dar início à obra. Esta deverá estar assentada de tal forma que não venha a tombar ou afundar no terreno. É neste momento que se realizam as fundações ou, como dizem os leigos, o alicerce da obra.
A primeira vista, poderá parecer que este estágio constitui uma atividade de importância relativa na Engenharia. Na verdade as fundações são e sempre foram essenciais no contexto de toda a edificação.
Define-se como fundação o processo pelo qual se cria no terreno uma resistência igual e em sentido contrário ao do peso (ou força) que deverá atuar sobre ele, para garantir a sustentação da obra.
Exemplificando: se uma obra pesa 500 toneladas e o terreno não suporta este peso, é preciso criar artificialmente um sistema de sustentação para suportar este peso, ou então, a obra não ficará de pé. Este sistema é chamado de fundação. Observe os desenhos:
As fundações evitam que a obra tombe pela ação do vento.
As fundações evitam que a obra afunde por ação do peso próprio ou adicional.

estrutura

Falar em estrutura de uma edificação é o mesmo que falar do esqueleto humano. É o sistema rígido que lhe assegura manter-se de pé, ou seja, é a parte do corpo que recebe todas as cargas (peso) próprias ou adicionais, e as transmite para os pés, isto é, para a fundação. Os homens têm uma série de articulações, que Ihes permitem movimentos. Nas edificações também existem estes movimentos, embora mínimos. As juntas de dilatação permitem à obra, movimentar-se em decorrência da variação de temperatura ou outras solicitações.
O sistema estrutural das edificações, que hoje conhecemos, tem pouco mais de uma centena de anos e só lhe foi possível esta maturidade, com o advento de novos materiais construtivos, como o aço e o cimento. E, acima de tudo, com a exploração destes e outros materiais, pelas pesquisas técnicas de resistência e aplicação dos conhecimentos matemáticos que constituem a alavanca da evolução da Engenharia nas Edificações.

Tipos de estrutura

Costuma-se classificar as estruturas, em função do material usado, em estruturas de madeira, de concreto e de metal.
a) Estrutura de madeira - É o tipo mais antigo de estrutura, todavia, em decorrência de sua pequena capacidade de vencer vãos e suportar grandes esforços, é empregada em obras de pequeno porte. Outros empecilhos à aplicação e difusão da madeira nostempos modernos é a sua pouca durabilidade, além de, devido à escassez, o seu custo tornar-se proibitivo. Hoje, o uso mais trivial da madeira é em estrutura de cobertura para telhas de barro.
b) Estrutura de concreto - Ao se falar em concreto, estamos normalmente nos referindo à associação de cimento, água e agregados (areia + pedra). Quando se usa o concreto com um apoio, que é normalmente feito de ferro, dá-se a esta combinação o nome genérico de concreto armado.
A consistência, resistência ou plasticidade do concreto são decorrentes da proporcionalidade dos elementos que o constituem e são fornecidos pelo calculista, pois cada estrutura requer um resultado final distinto.
O cimento é o elemento que dá resistência ao concreto.

12 Unidade 4 Parte 3

A água, além de ser o elemento que fornece a plasticidade ao concreto, provoca a reação química do cimento. Seu uso deve ser muito bem controlado,sob pena de lavar o concreto,fazendo-o perder suas características.
O fator água/cimento é tão importante que é normatizado e existem estudos de alto nível sobre o assunto. Assim, a proporção água/cimento não pode ser estabelecida sem um critério técnico previamente estabelecido.
A brita, cascalho e a areia são chamados de agregados e sua função principal, além de ocupar espaço (diminuir o custo da obra, já que são mais baratos que o cimento) é, também, de consorciando-se com o cimento, oferecer maior resistência ao concreto.
Da dosagem de cada elemento na composição do concreto dependerão sua plasticidade e resistência.
Uma peça de concreto estará curada, isto é, estará com sua resistência plena depois de 28 dias; contudo, o concreto tem a propriedade de, à medida que envelhece, ficar mais resistente.
Existem no mercado, hoje, inúmeros produtos químicos que, adicionados ao concreto, fazem com que o processo de endurecimento seja acelerado -são os aceleradores de pega. Existem, também, produtos para retardar o endurecimento - são os retardadores de pega. São usados em casos excepcionais e sua aplicação e dosagem sempre obedecem recomendação técnica.
c) Estrutura metálica - É a estrutura ideal para grandes obras ou para obras padronizadas. É uma estrutura limpa, rápida e de baixo custo quando em grande quantidade.
Em decorrência da exigência de mão-de-obra mais especializada e, portanto, mais cara, a indústria da construção civil tem, numa posição terceiro mundista, oferecido, no Brasil, uma grande resistência ao seu emprego. Em contrapartida, a indústria siderúrgica nacional, face à reduzida procura, não tem investido no seu desenvolvimento tecnológico e mercadológico, criando-se assim um círculo vicioso: não desenvolve porque não vende; não vende porque não desenvolve.
As possibilidades técnicas do aço são ilimitadas, propiciando execuções de grandes vãos (pontes) e edifícios muito altos, haja vista a torre da Sears em Chicago, com mais de 100 pavimentos.
Para finalizar este texto, citaremos o arquiteto Sérgio Bernardes que diz o seguinte na apresentação de um trabalho da Aço minas referente a estruturas metálicas: “O aço fará um trabalho cultural fantástico, dando um caminho para cima ao operário na exigência de uma mão-de-obra qualificada e qualificando em constante provocação a mão-de-obra não qualificada, buscando criar uma política para a melhoria da qualidade de vida na relação custo/benefício, onde o dinheiro super qualificado se encontra com o material adequado à dinâmica das necessidades de criatividade e mudanças.”.

Instalações de esgoto

A primeira ideia que nos vem quando tratamos de uma rede de esgoto é que toda água usada sairá em forma de esgoto. Até as concessionárias de serviço público usam este critério para cálculo de volume dos afluentes em suas redes.
Esta ideia é relativamente correta, quando se trata simplesmente do volume, pois os esgotos domésticos têm em sua composição 99,9% de água. O problema diz respeito ao 0,1% (um décimo por cento) restante, constituído dos resíduos oriundos das fezes,urina, limpeza corporal, lavagem de piso, roupas, utensílios de cozinha, etc. Neste processo de excreção e higienização que efetuamos diariamente, lançamos na rede de esgoto não só elementos orgânicos, fezes, urina e gorduras, como também ácidos, detergentes, pó e muitos outros produtos.O somatório desses elementos cria os grandes complicadores de uma rede coletora de esgoto, pois advêm desta união de compostos a cultura e proliferação de microrganismos, a formação de gases, a aglutinação das gorduras, etc., em caso de esgoto residencial. Em outros tipos de edificações, podem existir elementos que, pelas suas características poluentes, requerem redes e tratamentos especiais, como por exemplo, os hospitais, as indústrias e os frigoríficos.
Dessa forma, verificamos que o projeto de esgoto também requer cuidados especiais, não só como elemento de canalização das águas servidas, mas sobretudo para se evitar que estas venham contaminar o ambiente com o vazamento de líquidos ou gases, passagem de animais e insetos, causando transtornos quanto à habitabilidade ou o comprometimento por questões de saúde.
Em decorrência daquele 0,1% que mencionamos acima, a rede de esgoto não poderá ter o mesmo diâmetro da rede de água. Assim, se em uma pia de cozinha a torneira é de 13mm, a rede de esgoto será no mínimo de 40mm, pois a tubulação de esgoto trabalha a meia seção, enquanto a água é fornecida com a tubulação cheia.
Veja, no final deste texto, uma relação que transcrevemos para seu conhecimento, das principais terminologias de esgotos sanitário adotada pela NBR 8160 de 1983, a qual disciplina e fixa as condições mínimas para os projetos e execução das referidas instalações.
Antes, porém, de terminarmos este título, não poderemos deixar de lembrar a importância do destino final dos esgotos para a saúde pública e para o equilíbrio ecológico.
Boa parte de nossas cidades já dispõem da rede pública de captação dos esgotos, entretanto, pouquíssimas estão aparelhadas com os dispositivos técnicos de tratamento deste esgoto.
Lamentavelmente, estes são lançados in natura nos córregos, rios ou lagos, com sérios e imediatos comprometimentos para as populações ribeirinhas e, a longo prazo, para toda a população regional, incluindo aí, também, aquelas causadoras da poluição.
Em regiões onde não existe a rede pública de captação, seja em cidades ou no campo, deve se usar o sistema de fossas sépticas e sumidouros, sistema altamente eficiente, largamente comprovado e recomendado pelas maiores autoridades sanitárias mundiais. A seguir, alguns detalhes deste sistema:
a) Fossa séptica - destina-se a separar e transformar a matéria sólida contida na água de esgoto, principalmente fezes, para em seguida descarregar esta água no solo.
A transformação deste composto sólido é feita por bactérias anaeróbicas. Dessa forma, deve ser evitado jogar na fossa séptica a água servida na cozinha, pois esta contém sabão e detergentes, os quais são nocivos à formação e proliferação destas bactérias. Veja o desenho:
b) Caixa de gordura - destina-se a receber a água servida na cozinha e separar a gordura. Este procedimento é necessário, pois como vimos antes, não se recomenda o lançamento desta água na fossa séptica nem o seu lançamento diretamente no sumidouro sem a separação da gordura,sob pena de, com o tempo, impermeabilizar as paredes do sumidouro, dificultando assim a absorção natural. Veja o esquema para construção de uma caixa de gordura.
A gordura fica em suspensão, permitindo a passagem da água. Tanto a caixa de gordura quanto a fossa séptica necessitam de limpeza periódica para remoção da gordura e da massa retidas. c) Sumidouro - é simplesmente um buraco no chão e destina-se a absorver a água proveniente da fossa séptica, da caixa de gordura ou de outras origens.
Lembrete importante - seja na cidade ou no campo, em rede pública ou particular, as águas de chuva (águas pluviais) nunca devem ser canalizadas para a rede de esgoto, pois poderá saturá-la, irremediavelmente, comprometendo todo o sistema.

revestimento

É enquadrado como revestimento, todo acabamento das superfícies (paredes), sendo excluídas desta nomenclatura as pinturas.
Normalmente, os revestimentos iniciam-se no chapisco, traço 1:4 (cimento e areia), que tem a finalidade de servir como ancoragem ao emboço cujo traço varia de conformidade com a finalidade; sua espessura não deve ser superior a 2cm.
O emboço serve de base para outros revestimentos, tais como o reboco, o azulejo, etc.
O reboco ou massa fina, normalmente, é usado para receber pintura; sua textura pode ser rústica, camurçada, lisa, com pó de pedra, etc.
Entre os revestimentos, o de maior destaque é o azulejo. Para se extrair o máximo deste material, é necessário tomar alguns cuidados, que resumimos para seu conhecimento.

13 Unidade 4 Parte 4

Existem inúmeras classificações da qualidade dos azulejos; estas variam de fabricante para fabricante. Assim, um produto classificado como de primeira, na marca X, poderá corresponder na marca Y; de segunda, e na marca W, de extra.

O esquadro e o nível das peças são fatores determinantes para um acabamento harmônico da superfície.

O operário que irá assentar o azulejo é outro elemento fundamental no acabamento final; não adianta dar azulejo extra a um operário despreparado, pois o acabamento final ficará a desejar; o contrário, às vezes, funciona.

Um cuidado que sempre deve existir no que concerne à preparação dos azulejos, antes de serem assentados, é deixá-los dentro d’água, no mínimo, 24 horas.

As juntas devem ter de 0,5 a 1,5mm e o reajuntamento será feito com cimento branco e água, cuja plasticidade permite uma boa penetração nas juntas.

Com os demais revestimentos como ladrilhos, pastilhas, pedras, mármores, etc., os cuidados de preparação das superfícies são semelhantes aos dos azulejos. Quanto aos revestimentos com laminado melamínico (fórmica), a superfície a recebê-lo será preparada com emboço camurçado, traço 1:3, após o que se procede conforme as recomendações dos fabricantes. Deve-se cuidar para não permanecer bolhas de ar sob as placas, pois estas, além de darem um aspecto feio, irão, com o tempo, descolar toda a placa.

O processo de preparação para os laminados melamínicos é igual ao usado para as chapas de aço, alumínio, vidro, papéis, tecidos; todavia, deve sempre ser seguida a orientação técnica do fabricante.

A escolha do tipo adequado de revestimento é condicionada, além do aspecto estético, pela durabilidade, custo, adequação ao ambiente, à função e ao uso.

Soleiras, rodapés e peitoris

1) Soleira é o tipo de arremate usado sob os vãos das portas e quando existe mudança de tipo de pavimentação; os tiposmais usuais de soleira são as de mármore, madeira, pedra, granito e cerâmica. A largura é normalmente a do portal quando sob vãos de portas ou, em outra situação, a recomendada pelo arquiteto.

2) Rodapé é o arremate da pavimentação usado nas paredes. Normalmente, emprega-se para os rodapés o mesmo material do piso e sua altura não deve ultrapassar a 10cm, a não ser que haja recomendação em contrário do arquiteto, autor do projeto.

3) Peitoril é o acabamento na parte inferior das janelas, que complementa a parte do marco com uma pequena pingadeira na parte exterior. Este acabamento pode ser em chapa metálica, mármore, cerâmica, placa de cimento ou outros materiais.

ferragens

As ferragens são as peças metálicas (aço, ferro, alumínio, bronze, cobre, etc.) encontradas nas esquadrias metálicas ou de madeira, responsáveis pela fixação das mesmas (fechos, fechaduras e cremonas). Permitem, também, a articulação das esquadrias(gonzos, dobradiças e alavancas).

Nesta classificação sucinta, existe uma variedade de subprodutos, específicos ou não para cada tipo de esquadria como, por exemplo, as ferragens para vidro temperado, cujos desenhos são muito distintos, dependendo do fabricante. Citemos, como exemplo, as fechaduras, cuja parte mecânica é semelhante em todas, porém o acabamento é bastante distinto, seja para os espelhos ou para as maçanetas.

vidros

O vidro é um material cujo emprego na arquitetura vem dia-a-dia se difundindo nas construções, quer pelo aspecto plástico, quer quanto ao aspecto técnico. A supressão de seu uso hoje é um caso impensável, mesmo com a grande variedade de produtos similares como os derivados do petróleo, ou seja, os plásticos.

A origem do vidro perde-se no tempo. Já era conhecido dos egípcios em sua forma mais primitiva. Com o advento da tecnologia no campo da química, da física e dos avanços industriais, o vidro ganhou diversidade, pureza, resistência, cor, textura e brilho. Pela Norma Brasileira nº 226 os vidros podem ser classificados quanto à(ao):

Tipo:

a) Recozido: vidro comum;

b) Temperado: por receber um resfriamento brusco, sua resistência aos impactos é aumentada e, ao partir-se, o faz em pequenos pedaços;

c) Laminado: composto por diversas chapas unidas por uma película plástica transparente;

d) Aramado: recebe uma armadura de ferro, aumentando-lhe a resistência ao estilhaçamento.

Transparência:

a) Transparente: permite a passagem da luz o que facilita a visão através dele;

b) Translúcido: a luz não é impedida de passar, porém, é difundida de tal forma que as imagens não sejam nítidas;

c) opaco: não permite a passagem da luz.

aparelhos

São utilizados em uma obra três tipos de aparelhos:

a) Aparelhos sanitários - são todos os aparelhos usados em banheiros, tais como: vaso, papeleira, saboneteira, bidê, caixa de descarga, lavatório,mictório, banheira e chuveiro.

b) Aparelhos de água potável - são aqueles necessários àsinstalações hidráulicas, porém de uso direto, como bebedouro, filtro e torneira.

c) Aparelhos de iluminação - são os destinados à iluminação, como lâmpadas, calhas, arandelas, lustres, globos e refletores.

Esses aparelhos são peças de acabamento e, portanto, na sua escolha deve-se ter o cuidado de não criar contrastes chocantes com os demais elementos da obra, tanto em termos do estilo quanto do padrão de acabamento e da cor.

A harmonia das cores e a coerência do estilo devem ser sempre a constante preocupação por parte do arquiteto, do decorador e, principalmente, do proprietário.Não devemos nos iludir que peças vistosas, de cores fortes, de desenhos arrojados sejam as melhores soluções, pelo contrário, a sobriedade, quando bem empregada, exerce efeitos estéticos muito superiores, com a vantagem de não comprometer por excesso.

Elementos decorativos

Todo trabalho artístico executado em uma obra está classificado como elemento decorativo. Esses trabalhos artísticos abrangem as peças de serralheria, de madeira, de gesso, de cerâmica, desde que a execução dessas peças requeira um requinte de projeto e de execução especial. É neste item que se enquadram os elementos necessários ao estudo e implantação de sistemas de comunicação visual, quando a obra assim o exige. Estão inclusos também neste item todos os trabalhos de paisagismo, tais como jardins e arborizações.

14 Glossário 1

ABNT – Associação Brasileira de Normas Técnicas, cujas normas devem ser obrigatoriamente seguidas pelos diversos setores abrangidos.
ABÓBADA – cobertura de secção curva.
ACABAMENTO – arremate final da estrutura e dos ambientes da casa, feito com diversos tipos de materiais.
ADEGA – compartimento, geralmente subterrâneo que serve para guardar bebidas, por suas condições de temperaturas.
ADOBE – tijolo de barro seco ao ar e não cozido.
ADUELA – peça da grade ou marco da portas e de janelas.
AFASTAMENTO – distância mínima a ser observada entre as paredes externas da edificação e os limites do terreno.
ÁGUA - termo que designa o plano do telhado. (quatro águas, duas águas, etc).
ALÇAPÃO – portinhola no piso ou no teto para acesso a porões ou sótãos.
ALGEROZ – tubo de descida de água pluviais, em geral embutido na parede.
ALICERCE – elemento da construção que transmite a carga da construção ao solo.
ALINHAMENTO – linha legal que serve de limite entre o terreno e o logradouro para o qual faz limite.
ALIZAR – guarnição de madeira que cobre a junta entre a esquadria/ portal e a parede.
ALPENDRE – área coberta, saliente de construção, cuja cobertura é sustentada por colunas, pilares ou consolos, geralmente na entrada da edificação.
ALVENARIA – conjunto de pedras, tijolos, blocos ou concreto, com ou sem argamassa, para formação de paredes, muros etc.
AMARRAÇÃO – disposição entrelaçada dos tijolos.
ANDAIME – plataforma elevada, para sustentação dos materiais e os operários na execução de obras ou reparos.
ANDAR – pavimento acima do rés do chão.
APARELHO – acabamento para dar às pedras e madeiras formas geométricas e aparência adequada. Também usada para significar a primeira demão de tinta.
APARTAMENTO – unidade autônoma de moradia, em prédio de habitação múltipla.
APICOAR – desbastar com ferramenta, geralmente ponteiro de aço, uma superfície ou pedra.
ARAMADO – rede ou tela de arame. Alambrado, segundo o Dicionário Aurélio.
ARANDELA – aparelho de iluminação fixado na parede.
ÁREA TOTAL – soma de todas as áreas de uma edificação, incluindo todos os pavimentos.
ÁREA ÚTIL – superfície de utilização de uma edificação fora as paredes.
ARGAMASSA – mistura de aglutinante com areia e água, suada para assentamento de tijolos, cerâmicas, rebocos etc.
ARGILA – silicatos hidratados, barro com que se faz tijolos, cerâmicas etc.
ARQUIBANCADA – escalonamento sucessivo de assentos ordenados em fila.
ARQUITETURA - (do latim architectura) – os princípios, as normas, os materiais e as técnicas utilizadas para criar o espaço arquitetônico.

15 Glossário 2

ARQUITETURA DE INTERIORES – obras em interiores que implique criação de novos espaços internos ou modificações na função dos mesmos ou nos elementos essenciais; ou das respectivas instalações.
AROEIRA – árvore da família das anarcadíceas, de grande dureza, muito usada para cercas e colunas de sustentação de telhados e alpendres.
ASNA – peça da tesoura de telhado. Ao francesa, escora.
ASSOALHO – piso de tábuas. Soalho.
BALANÇO – avanço da edificação sobre alinhamentos ou recuos regulamentares.
BALAUSTRE – elemento vertical que, empregado em série, forma a balaustrada.
BALDRAME – parte do embasamento entre o alicerce e a parede. Soco.
BANDEIROLAS ou BANDEIRA – abertura fixa ou móvel situado acima da porta.
BASCULANTE – janela ou peça móvel em torno de eixo horizontal.
BATEDOR – batente; rebaixo na aduela onde se encaixam as folhas dos vãos.
BEIRAL – parte saliente da cobertura.
BOILER – aquecedor, normalmente metálico, acumulando água aquecida.
BONECA – saliência de alvenaria onde é fixado o marco ou grade de portas e de janelas.
BRITA – pedra quebrada em tamanhos variáveis.
BRISE – quebra-sol; elemento horizontal ou vertical de proteção contra o sol.
CAIBRO – peça de madeira sobre a qual se pregam as ripas destinadas a suportar as telhas.
CAIXILHO – quadro de madeira ou metal que serve de estrutura para vidro ou painel de vedação; esquadria.
CALÇADAS – pavimentação do terreno, dentro do lote.
CALHA – conduto de águas pluviais.
CAPIAÇO – acabamento de vãos entre a grade (marco) e o paramento da parede.
CARAMANCHÃO – armação de madeira, tipo pérgola, sustentada por colunas.
CASCALHO – seixo rolado; pedra britada.
CASA GEMINADA – separada de outra edificação com uma parede comum.
CAVA – o mesmo que escavação.
CHANFRO – pequeno corte para eliminar arestas vivas.
CHAPISCO – primeira camada de revestimento de paredes e de tetos destinada a dar maior aderência ao revestimento final.
CHUMBADOR – peça que serve para fixar qualquer coisa numa parede.
CLARABÓIA – vão nas coberturas, em geral protegido com vidros.
COBOGÓ – elemento vasado.

16 Glossário 3

CÓDIGO DE OBRAS – legislação vigente em cada cidade, que determina as normas que o projeto arquitetônico deve obedecer.
COIFA – cobertura acima do fogão para tirar a fumaça.
COLUNA – suporte de secção cilíndrica.
CONCRETO – aglomerado de cimento, areia, brita e água.
CONCRETO ARMADO – o mesmo que acima, com ferragem.
CONDUITE – conduto flexível.
CORPO AVANÇADO – balanço fechado de mais de 20 cm.
CORRIMÃO – peça ao longo e nos lados das escadas servindo de apoio a quem dela se serve.
COTA – indicação ou registro numérico de dimensões.
COTA DE COROAMENTO – ponto mais alto da edificação, permitido pelo código de obras local.
COTA DE SOLEIRA – nível mais baixo da edificação, permitido pelo código de obras local.
CROQUI – rascunho inicial de um projeto arquitetônico
CUMEEIRA – parte reta mais alta dos telhados onde tem inicio as águas; a peça de madeira que a forma.
CÚPULA – abóbada esférica.
DECORAÇÃO – obra em interiores com finalidade exclusivamente estética, não implicando criação de novos espaços internos, ou modificações de função dos mesmos, ou alterações dos elementos essenciais.
DEMÃO – camada de pintura.
DUPLEX – apartamento de dois pisos superpostos.
EDÍCULA – pequena casa; dependência para empregados.
EMBASAMENTO– parte inferior de um edifício cestinada à sua sustentação.
EMBOÇO – a 1ª camada de argamassa ou cal, após o chapisco, que serve de base ao reboco.
EMPENA – parede em forma de triângulo acima do pé direito.
ESCARIAR – rebaixar a fim de nivelar a cabeça de prego ou parafuso.
ESPELHO – face vertical de um degrau; peça que cobre a fechadura ou interruptor, quando embutido.
ESPIGÃO– encontro saliente, em desnível,de duas águas do telhado;tacaniça.
ESQUADRIA – fechamento dos vãos; formada por grade ou marco e folhas.
ESTACA – peça de madeira, concreto ou ferro que se crava no terreno como base da construção.
ESTRIBO – peça de ferro destinada a sustentar um elemento de construção em relação a outro.
ESTRONCA – escora de madeira.
ESTUQUE – argamassa muito fina usada para acabamento de paredes e de forros; sistema para construção de forros ou paredes usando traçados de madeira como apoio.

17 Glossário 4

FACHADAS – elevações das paredes externas de uma edificação.
FACHADA PRINCIPAL – voltada para o logradouro público.
FÊMEA – entalhe na madeira para receber o macho.
FLECHA – distância entre a posição reta e a fletida de uma viga ou peça.
FOLHA – parte móvel da esquadria.
FORRO – vedação da parte superior dos compartimentos da construção.
FORRO FALSO – forro que se coloca após a construção da laje ou coberta e independente dela.
FUNDAÇÃO – conjunto dos elementos da construção que transmitem cargas das edificações ao solo.
GABARITO – medida que limita largura de logradouros e altura das edificações.
GALPÃO – construção aberta e coberta.
GRADE – elemento vasado que forma a esquadria; marco.
GUARDA-CORPO – parapeito; proteção de um vão.
JIRAU – pequeno piso colocado à meia altura.
JUNTA – espaço entre elementos.
LADRILHO – peça de forma geométrica, de pouca espessura, de cimento ou barro cozido, em geral destinado a pisos.
LÂMINA – bloco vertical numa construção de vários pavimentos.
LANTERNIM – pequena torre destinada à iluminação e ventilação.
LINHA – parte inferior da tesoura onde encaixam as pernas; tirante.
LONGARINA – viga.
LOGRADOURO – espaço público (rua) compreendido entre dois alinhamentos postos.
MÃO DE FORÇA ou MÃO FRANCESA – elemento inclinado de apoio destinado a reduzir o vão dos balanços. Semelhante à asna.
MARQUISE – balanço constituindo cobertura.
MEIO-FIO – bloco que separa o passeio da rua.
MÓDULO – unidade de medida.
MONTANTE – peça vertical de madeira.
MOSAICO – painel formado por pequenos pedaços de vidro, cerâmica ou pastilhas; montagem de fotografias aéreas em serviços de cartografia.
NERVURA – viga saliente ou não de uma laje;quando oculta chama-se também viga chata.
OSSO – sem revestimento. Medida no osso: antes de feito o revestimento.
PANO – porção de superfície plana de parede, compreendida entre duas pilastras.

18 Glossário 5

PARAPEITO – resguardo de pequena altura, de sacadas, terraços e galerias.
PASSEIO – parte do logradouro público, destinado ao trânsito de pedestre.
PASTILHA – pequena peça cerâmica, usada para revestimento de paredes e pisos.
PATAMAR – superfície intermediária entre dois lances de escada.
PÉ-DIREITO – distância vertical entre forro e piso.
PEITORIL – parte inferior da janela / distância entre o piso e o início do espaço ocupado por ela.
PENDURAL – viga ou barrote que, do vértice da asna cai sobre a linha da tesoura.
PÉRGOLA – construção de caráter decorativo para suporte de plantas, sem constituir cobertura.
PILAR – elemento de sustentação tendo secção quadrada ou retangular.
PILASTRA – pilar incorporado à parede e ressaltando.
PILOTIS – elemento de sustentação de um pavimento térreo; nome que se dá ao pavimento térreo quando aberto.
PIVOTANTE – folha móvel em torno de eixo vertical.
PLANTA – projeção horizontal; vista superior; projeção de um corte horizontal numa edificação.
PLATIBANDA – coroamento de uma edificação, formado pelo prolongamento das paredes externas, acima do forro.
POÇO DE ILUMINAÇÃO/VENTILAÇÃO – espaço destinado a ventilação e iluminação de ambientes (janelas).
PORÃO – parte não usada para habitação, sob o térreo.
REBOCO – revestimento final de argamassa.
RESPINGADOR - rebaixo ou saliência para desviar as águas pluviais.
RINCÃO – ângulo reentrante e em declive formado pelo encontro das águas de um telhado; a calha que se coloca neste encontro.
RIPA – peça de madeira sobre os caibros.
RODAPÉ – faixa de proteção entre a parte inferior da parede e o piso.
SACADA – parte pouco saliente da construção.
SALIÊNCIA - elemento ornamental da edificação, que avança além do plano da fachada.
SANCA - moldura na parte superior da parede, ligando-a ao teto.
SERTEIRA – abertura estreita e vertical.
SOLEIRA – elemento localizado no piso, no vão das portas, de marco a marco.
SÓTÃO – espaço situado entre o forro e a cobertura, aproveitável como dependência de uso comum de uma edificação.
TABIQUE – parede leve que serve para subdividir compartimentos, sem atingir o forro.
TALUDE _ rampa inclinada de um terreno, normalmente feita pelo homem.

19 Glossário 6

TAPUME – vedação provisória usada durante a edificação.
TELHA – elemento colocado na superfície externa da cobertura para protegê-la de chuva, sol, vento, etc.
TELHADO – cobertura onde se usam as telhas.
- TELHADO DE DUAS ÁGUAS – cada lado se chama águas mestras
- TELHADO DE QUATRO ÁGUAS – os lados maiores se chamam ÁGUAS MESTRAS, e os menores TACANIÇAS.
TERÇAS – peças de madeira onde se pregam os caibros.
TERRAÇO – cobertura total ou parcial de uma edificação, constituindo piso acessível.
TESOURA – feita de vigas de madeira ou metal destinada a suportar a cobertura.
TESTADA – linha que separa o lote do logradouro pública (rua).
TRAÇO DE ARGAMASSA – proporção entre seus componentes.
TRELIÇA – armação de madeira ou metal onde existem aberturas; viga.
VARANDA – construção protegida pelo prolongamento da cobertura.
VASIO – vão ou abertura.
VÃO – abertura; distância entre os apoios.
VERGA – parte superior da porta ou janela, normalmente de alvenaria, ou ainda, distância compreendida entre o forro e a parte superior de qualquer abertura.
ZENITAL – no alto, no zênite; iluminação zenital: feita através de abertura no teto.

20 Referências bibliográficas

DOMINGUES, F.A.A. Topografia e Astronomia de Posição para Engenheiros eArquitetos. São Paulo,Editora McGraw-Hill do Brasil, 1979.
FONSECA, R.S. Elementos de Desenho Topográfico. São Paulo, Editora McGraw-Hill do Brasil.
FRENCH, T.E. Desenho Técnico. Editora Globo, Porto Alegre, 1975.
MANFÉ, G.; POZZA, R. e SCARATO, G. Desenho Técnico Mecânico. São Paulo, Editora Hemus, 1977. v.1.
MONTENEGRO, G.A. Desenho Arquitetônico. São Paulo, Editora Edgard Blucher, 1978.
OBERG, L. Desenho Arquitetônico. Rio de Janeiro, Ao Livro Técnico, 1973.