Básico em Desenho Arquitetônico & Construção Civil

Desenho Arquitetônico e Construção Civil

1 NORMAS TÉCNICAS

ABNT- ASSOCIAÇÃO BRASILEIRA DE NORMAS TÉCNICAS

O sistema de padronização é o alicerce para garantir a qualidade de um projeto. Para facilitar a compreensão do projeto em nível nacional,todos os componentes que envolvemo desenho de arquitetura e engenharia são padronizados e normalizados em todo o país. Para isto existem normas específicas para cada elemento do projeto, assim como: caligrafia, formatos do papel e outros.

O objetivo é conseguir melhores resultados a partir do uso de padrões que supostamente descrevem o projeto de maneira mais adequada e permitem a sua compreensão e execução por profissionais diferentes independente da presença daquele que o concebeu.

Como instrumento, as normas técnicas contribuem em quatro aspectos:

  • Qualidade: fixando padrões que levam em conta as necessidades e os desejos dos usuários.
  • Produtividade: padronizando produtos, processos e procedimentos.
  • Tecnologia: consolidando, difundindo e estabelecendo parâmetros consensuais entre produtores, consumidores e especialistas, colocando os resultados à disposição da sociedade.
  • Marketing: regulando de forma equilibrada as relações de compra e venda.

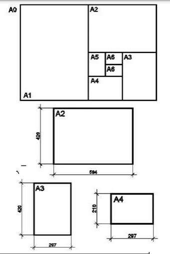
2 FORMATOS DO PAPEL

As Normas Brasileiras de Desenho Técnico estabelecem como padrão a série “A”. A NBR 10.068 tem o objetivo de padronizar as dimensões, layout, dobraduras e a posição da legenda, garantindo desta forma uniformidade e legibilidade.

Os itens a serem observados na NBR, são os seguintes:

  • posição e dimensões da legenda;
  • margem e quadro;
  • marcas de centro;
  • escala métrica de referência;
  • sistema de referência por malhas;
  • marcas de corte.

Os formatos da série “A” tem como base o Formato A0, cujas dimensões guardam entre si a mesma relação que existe entre o lado de um quadrado e sua diagonal (841 2 =1189), e que corresponde a um retângulo de área igual a 1 m².

A NBR10068 é complementada com a NBR 8402, referente à execução de caracteres para escrita em desenhos técnicos e procedimentos, e pela NBR 8403, que cuida da aplicação de linhas em desenhos – tipos de linhas – largura das linhas e procedimentos.

3 DOBRADURAS DAS PRANCHAS

Os projeto de Arquitetura e Engenharia após serem executados, devem ser dobrados conforme as figuras abaixo:

 

4 CALIGRAFIA TÉCNICA

Existe uma padronização também para a caligrafia técnica, para evitar que os projetos desenvolvidos em localidades diferentes sejam interpretados de formas distintas. Desta forma, adquire-se maior agilidade na interpretação e execução do projeto.

A NBR 8402 tem a finalidade de fixar características da escrita a mão livre ou por instrumentos usados para a elaboração dos projetos.

Segundo a norma, as letras devem ser sempre em maiúsculas e não inclinadas. Os números não devem estar inclinados

LETRAS
A B C D E F G H...
 

NÚMEROS
1 2 3 4 5 6 7 8 9...

(2,0mm – Régua 80 CL – Pena 0,2mm)
(2,5mm –Régua 100 CL – Pena 0,3mm)
(3,5mm –Régua 140 CL – Pena 0,4mm)
(4,5mm –Régua 175 CL – Pena 0,8mm)

5 CARIMBO OU LEGENDA

Em um projeto de Arquitetura ou Engenharia, faz-se necessário a identificação de alguns elementos, tais como: tipo de projeto, endereço, autor do projeto, responsável técnico pela obra, tipo de escala empregada, área do lote, área de construção, número da prancha, números de prancha, espaço reservado para a aprovação da prefeitura e pelo Conselho Regional de Engenharia, Arquitetura e Agronomia - CREA, entre outros.

 

6 TIPOS DE PAPEL

Existem duas categorias de papel para a elaboração do projeto de arquitetura: opacos e transparentes.

Papéis transparentes: Antes do advento do software para projetos,os projetos originais eram elaborados em papel-vegetal, por ser um papel transparente e de fácil manuseio e também, por proporcionar cópias idênticas aos originais.

Papéis Opacos: Apresentam uso variável, para desenhos em geral;os projetos de Arquitetura e Engenharia abandonaram o uso do papel vegetal para os originais, abrindo espaço para o papel sulfite. Com o uso do computador para a elaboração dos projetos, é possível imprimir em papel sulfite tantas vezes quantas forem necessárias.

7 ESCALAS - considerações de alguns autores:

"Toda representação está numa proporção definida com o objeto representado. Esta proporção é chamada de escala". ( Raisz, 1969:47)

"Escala é, então, a relação que existe entre os comprimentos de um desenho e seus correspondentes no objeto; portanto, escala nada mais é do que uma razão de semelhança. Sendo assim, toda escala é expressa por uma fração; essa fração é chamada escala numérica; sua representação gráfica chama-se escala gráfica. Os comprimentos considerados no desenho são chamados distâncias gráficas e os considerados no objetos são chamados distâncias naturais" (Rangel, 1965:11).

Existem três tipos de escalas: Escala Natural, Escalas de Redução e Escalas de ampliação.

Escala Natural

Quando o objeto que está sendo representado no desenho,apresenta a mesma medida do real, chamamos de escala natural. A escala natural está na razão 1 para 1, ou seja, o real está para o desenho na razão de uma medida do real para uma medida do desenho.

Escala de Redução

Quando o objeto que está sendo representado é de grandes dimensões, usamos escala de redução, para possibilitar sua representação no papel. Por exemplo, quando projetamos uma residência, um prédio ou uma cidade.

Escala de redução são representadas da seguinte forma:

1/10 – 1/20 – 1/50 – 1/100 – 1/200 1/100
e outras.

O número 1 indica o desenho e o próximo o real.

Exemplo: 1/50 (um por cinquenta) Significa que um centímetro do papel representará 50 cm do real, ou seja, o desenho será reduzido 50 vezes.

Escala de Ampliação

Quando o objeto que está sendo representado é muito pequeno, necessitando ser ampliado para melhor interpretação do projeto. Esta escala é empregada nas áreas de mecânica, eletrônica, desenho de jóias, entre outras.

Escala real

Usa-se este tipo de escala quando o desenho deve ser igual ao objeto desenhado. A representação desta escala é sempre 1:1 (lê-se um por um).

 

  • As escalas numéricas podem ser: de redução, de ampliação e real.
  • A escala de redução significa que o desenho é menor que o objeto desenhado. É usada quando o objeto é muito grande e não temos como representá-la graficamente.
  • A escala de ampliação significa que o desenho é maior que o objeto desenhado. É usada quando o objeto é muito pequeno e sua representação não será nítida.
  • A escala real significa que o desenho é igual ao objeto desenhado.
  • As escalas numéricas são assim representadas:

- de redução -1:2 (lê-se um por dois), ou seja, o desenho é a metade do objeto desenhado;


-de ampliação-2:1 (lê-se dois por um), isto é, o desenho é duas vezes maior que o objeto desenhado;


- real -1:1 (lê-se um por um), ou seja, o desenho é igual ao objeto desenhado.

Escala gráfica é aquela em que seccionamos um segmento de reta em várias partes iguais, obedecendo a um plano de desenho previamente estabelecido

8 LINHAS DE COTA

Cotagem em Desenho Técnico (NBR - 10126)

Representação gráfica das dimensões no desenho técnico de um elemento, através de linhas,símbolos, notas e valor numérico numa unidade de medida.

Elementos gráficos para representação de cotas.

Recomendações

  • a característica da linha de cota e linha auxiliar: linha estreita e contínua.
  • linha auxiliar deve ser prolongada ligeiramente além da linha de cota.
  • deixar um pequeno espaço entre a linha auxiliar e o elemento ou detalhe a ser cotado
  • linhas auxiliares devem ser perpendiculares aos elementos a serem cotados e paralelas entre si.
  • linhas de centro não devem ser utilizadas como linhas de cota ou auxiliares porém Linha de cota ou de dimensionamento Dimensão do objeto podem ser prolongadas até o contorno do elemento representado e a partir daí com linha auxiliar (contínua estreita).
  • sempre que o espaço disponível for adequado colocar as setas entre as linhas auxiliares, quando não for pode-se representar externamente.
  • cotagem de raios, a linha de cota parte do centro do arco e uma única seta e representada onde a linha de cota toca o contorno do arco, a letra R (erre maiúscula) deve ser representada na frente do valor da cota.

9 Técnica de Cotar

a) as cotas devem ser representadas acima e paralelamente à linha de cota e aproximadamente no seu ponto médio.

b) as cotas devem ser lidas da base da folha de papel. As linhas de cotas devem ser interrompidas próximas ao meio para representação da cota.

Símbolos para as cotas Utilizamos alguns símbolos, para facilitar e identificar das formas dos elementos cotados.