Métodos de projetos para interiores

Designer de Interiores

1 Formação do projeto Parte 2

Etapas do projeto:

As fases descritas acima estão contidas nas etapas do projeto. São elas:
1. Estudo Preliminar - Após o primeiro contato com o cliente, é marcada uma reunião, onde serão discutidos todos os costumes diários, informações de todos os usuários do espaço, ouvindo idéias e coletando informações sobre os anseios do cliente. Nesse primeiro encontro são definidos todos os desejos e necessidades do cliente para que a proposta do projeto se torne uma solução para o ambiente. Depois de todas as informações coletadas e dúvidas sanadas é elaborado um orçamento estimado e prazos são definidos. O próximo passo é a medição do ambiente, onde são anotados e esboçados todos os detalhes e medidas do ambiente
2. Anteprojeto - O Anteprojeto é desenvolvido com base no Estudo Preliminar e nas informações reunidas. Em uma segunda reunião, o trabalho é apresentado em planta baixa e elevações para definir a distribuição dos espaços. Com esse material, discutimos todos os detalhes para obter o projeto final. É apresentada uma previsão dos investimentos necessários para a execução do mesmo. Essa etapa é feita quantas vezes forem necessárias, o projeto definitivo só será entregue quando ficar de acordo com o que o cliente quer.
3. Projeto Executivo - O Projeto é entregue documentado em:
• Planta baixa e elevações;
• 3D (para o cliente ter uma melhor visualização);
• Projetos Técnicos (para execução de serviços de terceiros);
• Orçamentos de serviços terceiros;
• Orçamentos de móveis e itens do projeto;
• Memorial descritivo detalhado dos itens do projeto.
O Projeto é composto por definições de: Marcenaria, Gesso, Paginação de Piso, entre outros que podem tornar-se necessários, ainda pode ser definidas algumas outras escolhas como: tecidos, revestimentos, adequando ao investimento financeiro necessário.
Projeto completo: que inclui a execução e acompanhamento da obra, ou somente uma consultoria para resolução de um problema específico. Isto vale para espaços residenciais e comerciais completos ou apenas áreas específicas.
Projeto básico: que será executado pelo próprio cliente.
O custo do trabalho: está vinculado à modalidade contratada e a ABD (Associação Brasileira de Designers de Interiores) que estabeleceu categorias de projetos e formas de remuneração:

Categoria a – Projetos de decoração com arquitetura de interiores

Envolve reformas e inclui escolha de acabamentos, distribuição e localização de pontos elétricos e hidráulicos, iluminação, desenho de portas e divisão interna de armários embutidos, de cozinhas e banheiros, desenho de mobiliário e peças especiais, detalhamento de forros e pisos, escolha de tecidos, mobiliário, revestimentos e materiais de iluminação;

Categoria b – Projetos de decoração

Envolve o desenho de portas e divisão interna de armários embutidos, de cozinhas e banheiros, desenho de mobiliário e peças especiais, detalhamento de forros e pisos, escolha de tecidos, mobiliário, revestimentos e materiais de iluminação;

Categoria c – Layout e distribuição de móveis

Envolve a escolha de tecidos, mobiliário, revestimentos e materiais de iluminação. A remuneração profissional é estabelecida a partir de quatro condições, usadas de forma individual ou combinada:
1. Remuneração por projeto – dependente da quantidade de atividades pelas qual o profissional será responsável.
2. Consulta – neste caso o cliente solicita orientação sem contratação efetiva para desenvolver o projeto ou prestação de serviços. O valor cobrado refere-se especificamente à consulta (o valor é cobrado em função do tempo da consulta);
3. Hora técnica – envolve a entrevista com o cliente e a execução do projeto;
4. Administração da obra – os honorários são calculados a partir de um percentual sobre o custo total da execução do projeto (variável de 12 a 15%). Alguns profissionais cobram um valor fixo por m2 . (Execução do projeto: O cliente optando por esse serviço de acompanhamento de obra, os orçamentos são fechados e é elaborado um cronograma de trabalho.
É feito o acompanhamento da execução dos serviços prestados por terceiros, exigindo dos fornecedores, adequação ao projeto, qualidade dos serviços e cumprimento de prazos. Relatórios serão apresentados, detalhando esse acompanhamento. Após o cumprimento destas etapas o ambiente será entregue ao cliente pronto para uso). (Consultoria: A consultoria busca sempre atender a satisfação do cliente apresentando tendências, mas respeitando seu perfil e gosto pessoal, por isso normalmente ela é apresentada com duas ou três opções onde o cliente pode optar por estilo, cor e valores que melhor lhe aprouver.
A consultoria baseia-se em normas técnicas e conhecimentos específicos além de muita criatividade que proporcionará ao cliente um ambiente dentro das suas necessidades, de forma agradável atingindo seus objetivos de funcionalidade e visual. São as sugestões que se referem a ambientação, isto é, disposição do mobiliário, do próprio mobiliário, da seleção de tapetes, cortinas, objetos de decoração, tipos de molduras, luminárias e disposição de objetos.
Normalmente a consultoria de decoração de interiores, sugere alterações estruturais mais simples como trocar um lustre ou pintar uma parede).

2 Formação do projeto

Para se ter um bom projeto de interiores é preciso planejamento. É necessário unir estética e funcionalidade, distribuindo os espaços e alinhando as cores, materiais, texturas, acessórios, etc.

No Design de Interiores o Projeto é como se fosse a partitura de uma orquestra sinfônica. Sem ele não há criação, não há harmonia. Algumas etapas são fundamentais no processo de criação e execução de um projeto de interiores:

• Pesquisa e análise dos objetivos e desejos do Cliente materializados em documentos e estudos preliminares que fundem essas necessidades com o conhecimento técnico do profissional, garantindo ao projeto funcionalidade, conforto, segurança e qualidade estética;

• Confirmação dos estudos preliminares e adequação das soluções propostas ao orçamento do Cliente;

• Seleção de cores, materiais, revestimentos e acabamentos coerentes com os conceitos estabelecidos na criação e que estejam em consonância com as características sócio psicológicas, funcionais, de vida útil, de durabilidade e de proteção ao meio ambiente;

• Especificação de mobiliário, equipamentos, sistemas, produtos e outros elementos, bem como, providenciando os respectivos orçamentos e instruções de instalação e planificação de cronogramas de execução;

• Elaboração de plantas, elevações, detalhamento de elementos construtivos não estruturais – paredes, divisórias, forros, pisos (alterações na estrutura construtiva exige a contratação de um Arquiteto ou Engenheiro), layouts de distribuição, pontos de hidráulica, energia elétrica, iluminação e de comunicação e design de móveis e definição de paisagismo e outros elementos;

• Adequação de toda a intervenção às leis e regulamentos municipais que se fizer necessária;

• Coordenação de todos os profissionais que vão atuar na execução do projeto, tais como: engenheiros, eletricistas, marceneiros entre outros, harmonizando o trabalho conforme cronograma estabelecido;

• Compra de todos os produtos, sistemas e equipamentos após cotação e aprovação do Cliente;

• Acompanhamento de toda a obra mantendo o orçamento dentro dos valores previstos ou submetendo ao Cliente qualquer alteração para prévia aprovação;

• Emissão de relatórios regulares detalhando o andamento (estágio) da obra registrando as ocorrências tais como: alterações, substituições e adequações técnicas e orçamentárias;

• Elaboração de check-list final de entrega de obra com pesquisa de satisfação a ser respondida pelo Cliente.

Fases do projeto:

• Entrevista com o cliente

• Medidas (Planta baixa)

• Estudo da circulação e Ergonomia

• Distribuição do mobiliário

• Escolha de acabamentos e revestimentos

• Paginação de piso

• Revestimento de parede

• Detalhamento de teto – rebaixo, sancas e molduras

• Iluminação

• Desenho de mobiliário

• Tecidos, objetos e acessórios decorativos

• Detalhamento de todas as soluções propostas

• Execução do projeto

• Acompanhamento à obra

Estas etapas ajudam a equilibrar o planejamento, respeitando o estilo do cliente, de acordo com suas possibilidades e necessidades, aproveitando espaços, combinando acessórios, implicando em economia tanto em novos espaços quanto em reformas.

3 Desenvolvimento do projeto

1. Briefing - Para lembrar:

Briefing é o conjunto de perguntas previamente determinadas para a composição de diretrizes que irão nortear a criação do produto/serviço solicitado. Briefing é o conjunto de perguntas que ajudarão a cercar o problema do cliente a ponto de conseguires perceber exatamente o que o cliente deseja, o que o cliente espera os resultados que podem ser atingidos, ferramentas/linguagem que deve ser empregados.

Portanto Briefing é essencial antes mesmo de qualquer pesquisa, antes de qualquer tipo de envolvimento ou empenho em cima do problema. É o pontapé inicial da partida. Ninguém ganha jogo antes do apito inicial do juiz, o gol só vale dentro do tempo regulamentar. Mas alguém pode dizer: “Eu acho que se ganha a partida antes mesmo do começo, dependendo das estratégias e posturas, o jogo já pode começar em vantagem, não é verdade?” – e eu digo: é verdade. Portanto faça desta estratégia preliminar a criação do melhor briefing que puderes.

Como é? O que é belo? O que te chama a atenção? O que você faz? Como é seu dia? Busca de informações, medidas, espaços, iluminação, visualização do espaço.

2. Divida o problema em pequenas partes e comece a pensar a Problema: solução de cada um individualmente.

3. Dê palavras chaves que descreva o que antes foi briffado, com isso você cria referências para pesquisa. Chave: leve/ Nakin/ Limpo /De stijil /Art Novue /Colorido/ Formal /Art Deco Pop art.

4. BlueSky: Define para que lado vamos seguir; leve, pequeno espaço, Hightech, artesanato, reto, grande, espaço pesado.

5. Diacrônica: Espaço com ele mesmo;

6. Sincrônica: Visualização e Análise dos espaços já existentes no mercado de design de interiores: Analise New web Pick Vogue Casa Técnicas Analiticas Bonsiepe (1984)

7. Analise Cromáticas: verifica quais os sentimentos despertados pela cor: quais cores são harmônicas. Analise, crie paletas de cores para cada ambiente: Sala, Quarto, Cozinha, Banheiro.

8. Todos os produtos, mesas, cadeiras, sofás, carpetes que Semântica: estão dentro dos conceitos antes definidos pelo bluesky e pelas palavras chaves: Analise Loja STORE Técnicas Analiticas Bonsiepe (1984)

10. Desenvolvimento, resultados do projeto.

Estudo preliminar

Estudo preliminar – Quando se verifica a viabilidade de uma solução que dá diretriz ou orientações ao anteprojeto.

Objetiva identificar o Escopo inicial do Projeto a ser desenvolvido. O resultado do estudo preliminar possibilita a geração de um cronograma básico de desenvolvimento e garante que somente serão desenvolvidos os requisitos que fazem parte do escopo do projeto.

Estas informações são base para a verificação da viabilidade de desenvolvimento do projeto, tanto para a organização como para o cliente.

Nesta etapa é feita a entrevista com o cliente, para que seja possível conhecê-lo e saber seus gostos, seu estilo de vida, suas necessidades e desejos, pois só assim é possível fazer um projeto personalizado que fique de acordo com o que ele quer e precisa. Também são conhecidos quais ambientes serão projetados e todos os elementos arquitetônicos, técnicos e decorativos que virão a compor o projeto. É preciso conhecer as pessoas que moram na casa, conhecer o perfil de cada uma delas, como vivem o que gostam de fazer, suas características pessoais, quais ambientes que serão destinados a cada uma delas para que sejam personalizados de acordo com suas necessidades. Cada ambiente deve ter uma funcionalidade específica e projetada para tal, portanto os sonhos, desejos e necessidades de cada morador devem ser cautelosamente analisados.

Após tudo isso é levantado os dados de cada ambiente a ser projetado, como medidas e os projetos estrutural, hidráulico e elétrico que sejam pertinentes ao projeto de interiores.

O mesmo serve para ambientes comerciais, não são moradores, mas são pessoas que vivem naqueles ambientes a maior parte de seu dia, portanto também é preciso analisar com calma cada detalhe sobre os funcionários e sobre o seu trabalho em si. Levando em consideração que quando se trata de ambientes comerciais, dependendo da empresa, devem ser seguidas normas técnicas, porém, em questão de conhecimento do cliente, do projeto e das necessidades, praticamente se levam em conta as mesmas coisas do projeto residencial.

Assim inicia-se a proposta do projeto com layout de cada ambiente, desenhando em planta todos os móveis e elementos que foram solicitados no reconhecimento das necessidades do cliente, bem como sugestões e detalhes propostos pelo profissional. São apresentados os projetos através de plantas baixas, com layout feito à mão ou computador, sendo possível para o cliente visualizar os ambientes de cima, analisando todos os espaços e todos os itens existentes no projeto de interiores para que assim sejam discutidas as possibilidades e saber o que fica e o que sai dessa proposta inicial. Nesta hora é possível saber se é realmente aquilo que o cliente deseja, pois nesta hora ele consegue visualizar melhor a proposta. São feitos quantos layouts forem necessários até que seja possível chegar ao resultado esperado.

Fases do estudo preliminar:

• Entrevistas com o cliente;

• Visitas ao local;

• Medições do espaço físico,

• Registro Fotográfico;

• Elaboração do programa de necessidades;

• Pesquisas referentes ao objeto de estudo.

Anteprojeto

O Anteprojeto é desenvolvido com base no Estudo Preliminar e nas informações reunidas. Em uma segunda reunião, o trabalho é apresentado em planta baixa e elevações para definir a distribuição dos espaços.

Com esse material, discutimos todos os detalhes para obter o projeto final.

É apresentada uma previsão dos investimentos necessários para a execução do mesmo. Essa etapa é feita quantas vezes forem necessárias, o projeto definitivo só será entregue quando ficar de acordo com o que o cliente quer.

4 Desenvolvimento Do Projeto - Método Parte 2

Criação do Anteprojeto

Esta é a versão final do estudo, apresentando de maneira clara a proposta do projeto:

1. Planta layout global com especificações da seleção de materiais, revestimentos, acabamentos;

2. Elaboração de cortes e elevações;

3. Planta de gesso e detalhes;

4. Planta de iluminação;

5. Piso;

6. Paginação paredes – elementos construtivos não estruturais e elementos construtivos estruturais (contratação e responsabilidade de um Arquiteto ou Engenheiro Civil);

7. Paginação elétrica (em caso de mudanças);

8. Paginação hidráulica (em caso de mudanças);

9. Paginação de ar condicionado;

10. Paginação lógica – telefone;

11. Planta de tonalidades e revestimentos;

12. Planta de mobiliário;

13. Planta de paisagismo interno;

14. Planta marmoraria e vidraçaria.

Resumindo:

• Elaboração do anteprojeto;

• Pesquisa de materiais adequados aos requisitos do cliente;

• Planta baixa em perspectiva com definições gerais;

• Perspectivas;

• Apresentação em maquete eletrônica (imagens digitalizadas).

Projeto executivo

Esta etapa consiste na versão final do projeto, a partir do projeto aprovado pelo cliente na etapa anterior.
Aqui são elaborados desenhos técnicos contendo todas as informações necessárias para a perfeita execução do projeto, nos desenhos há a especificação de todos os materiais para estruturas e acabamentos (madeiras, vidros, mármores ou similares, aços, revestimentos, pinturas, etc.), tudo é detalhado de forma mais formal e mais complexa para que sejam enviados os dados aos marceneiros contratados, às lojas para compra de produtos e aos fornecedores responsáveis por cada detalhe do projeto, como gesso, pinturas, cortinas, etc. São feitas perspectivas, plantas baixas, cortes e vistas de todos os ambientes e mobiliários todos com medidas e detalhes.
Para cada item é feito um projeto, por exemplo, para a compra e instalação da iluminação, é feito um projeto luminotécnico, para a execução dos forros e sancas de gesso outro projeto, para o mobiliário outro e assim sucessivamente. Tudo é projetado separadamente para seu respectivo fornecedor. Também são feitos memoriais descritivos de cada ambiente onde constam tudo o que se incluem no projeto do mesmo com orçamentos separados de todos os itens.
Nesta fase não pode haver alterações de projeto, pois tudo já foi definido e aprovado pelo cliente na fase do ante-projeto, desta forma, tudo o que for feito nesta fase agora é o que será instalado e comprado pelo cliente. No caso do cliente solicitar alterações antes de comprar ou executar algum produto, o projeto será cobrado separadamente, não estará incluso nos valores já pagos por ele ao profissional.
Em outras palavras:
Apresenta o detalhamento necessário para que se possa executar o projeto (piso, forro, acabamento, mobiliário...) assim como memorial descritivo indicando especificações, tabelas quantitativas e planilha de orçamento.

5 Desenvolvimento Do Projeto - Método Parte 3

O que é um detalhamento?

s.m. Ação ou efeito de detalhar. Explanação detalhada: na delegacia houve o detalhamento do crime. Rascunho que apresenta os dados gerais ou faz o delineamento de algo. Arquitetura. Rascunho com as particularidades de um projeto. Militar. Divisão de um trabalho ou tarefa antes de fazê-lo. (Etm. detalhar + mento).

Acompanhamento da execução do projeto

Esta etapa é separada da elaboração do Projeto de Interiores. Ficando a critério de o cliente contratar o Designer autor do projeto ou contratar outro profissional qualificado para acompanhar a execução do projeto.
• Auxiliar/acompanhar o cliente nas compras de todos os produtos, sistemas e equipamentos já aprovados por ele (cliente);
• Contatar e coordenar todos os profissionais que irão executar alguma das etapas do projeto;
• Acompanhamento de cada etapa do projeto, informando ao cliente sobre os gastos a mais no orçamento;
• Entrega de obra.
• Cada uma das etapas – Elaborando um projeto e Acompanhamento da execução – é cobrada separadamente.

Dicas de Contratação

• Confira algumas dicas de como contratar um Designer de Interiores:
• Procure sempre um profissional qualificado para a realização da sua obra, isto é, para a realização do seu sonho. Um Designer qualificado possui conhecimento e capacidade de entender as suas necessidades e anseios. É capaz de traduzir os sentimentos, emoções e lembranças de seus clientes em algo palpável e visual, como é capaz de proporcionar maior funcionalidade e aproveitamento dos espaços de modo a tornar o dia-a-dia mais agradável;
• Conheça os trabalhos produzidos pelo Designer que pretende contratar, pesquise sites, converse com amigos. Conheça também o profissional pessoalmente, para que você fique seguro de que ele irá atender às suas necessidades. Vale a pena marcar uma conversa sem compromisso com o Designer, e contrate somente o profissional que lhe transmitir confiança!;
• O designer de interiores é capaz de projetar ambientes conforme o estilo e gosto do seu cliente, mas nem por isso podemos deixar de pensar que cada profissional tem seu estilo próprio e que naturalmente e sutilmente tal estilo pode estar presente nos projetos para os seus clientes;
• Quando o Designer de Interiores propõem a mudança de uma parede, ou até mesmo quando tal mudança é solicitada pelo cliente, se faz necessária a contratação de um Arquiteto ou Engenheiro Civil para avaliar, autorizar, acompanhar e se responsabilizar por esta etapa da obra. O Designer de Interiores não poderá, de maneira alguma, executar e assumir a responsabilidade de mudanças na estrutura do imóvel (apenas é possível se a formação curricular incluir cálculos estruturais e matérias correlatas);
• Para sua segurança e a do profissional solicite sempre um contrato. É no contrato que os direitos e deveres de ambas as partes estarão esclarecidas – como quem é o responsável pela escolha dos materiais e da mão de obra – da mesma forma deverá estar exposto o valor do serviço ou os valores dos serviços solicitados, a forma que o pagamento será realizado, os prazos para a finalização de cada etapa do projeto e como se dará a rescisão do contrato quando necessário.
Resumo:
• Elaboração do projeto final;
• Especificação e detalhamento de mobiliário;
• Apresentação em caderno de especificações.

O que é especificação?

s.f. Descrição, determinação circunstanciada. Definição das características às quais deve responder uma instalação, uma construção, um material, uma confecção, um produto etc.

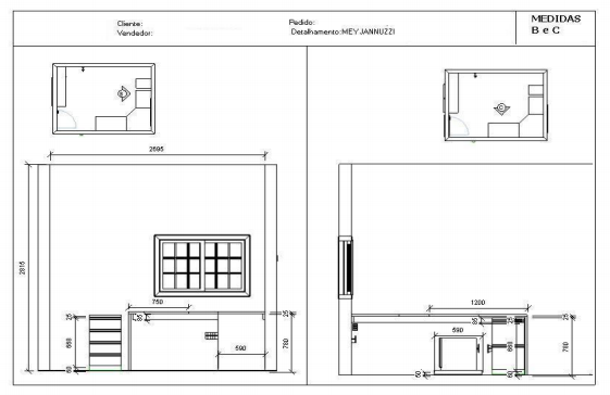
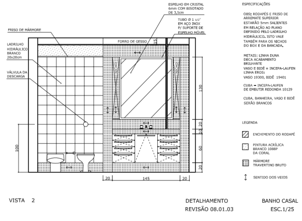
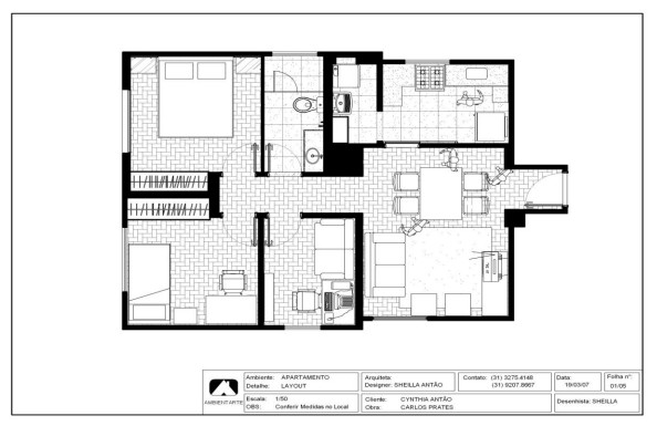
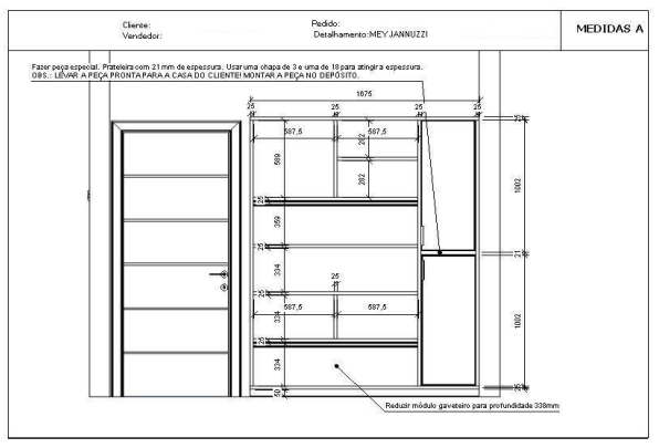
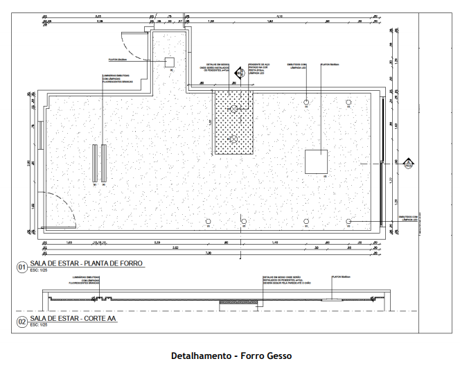
Planta Baixa

A planta baixa é o layout do mobiliário e dos itens de decoração existentes no projeto. Veja a figura abaixo:

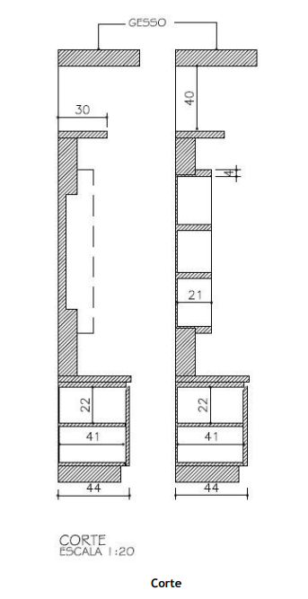
Cortes e Elevações

Os cortes e elevações são vistas 2D dos ambientes com medidas e informações sobre o projeto. Veja:

Estudo e critérios ergonômicos

A ocasião da contribuição ergonômica,
O design de interiores é um campo de atuação bastante visado atualmente, e engloba conhecimentos muito específicos a tudo que se refere ao espaço interno de uma edificação. Durante a formulação de um layout de um ambiente, por exemplo, a ergonomia garante excelentes resultados no que diz respeito a luminotécnica, cor, design de móveis, conforto térmico, ou seja, todos os fatores a serem considerados num projeto de interiores.
A funcionalidade do layout está ligada à organização dos componentes no interior do espaço, de forma a gerar uma melhor praticidade funcional. Isto se dá basicamente através da mais lógica organização do espaço. Um espaço mal projetado pode prejudicar o cotidiano dos usuários na medida em que dificulta passagens, atrasa tarefas, ocupa mais espaço ou faz com que o espaço pareça menor.
O conforto ambiental considera as condições naturais e/ou artificiais que concorrem para a segurança, comodidade, bem estar e a própria saúde dos usuários. É proporcionado por meios artificiais (exaustão, ar-condicionado) e considera condições ergonomicamente adequadas de climatização. Tudo isso envolve sistemas de iluminação, ventilação natural, exaustão, refrigeração, calefação, sistemas de proteção acústica e térmica, sempre de acordo com as funções de cada espaço.
A iluminação é um fator relevante. Ambientes mal iluminados muitas vezes parecem menores, prejudicam a visão e criam áreas de sombra desconfortáveis. Já ambientes exageradamente iluminados, também causam desconforto em função da reflexão excessiva. O grande desafio é chegar a um projeto de iluminação equilibrado.
A acústica (níveis sonoros, fontes de ruídos e conversas indesejadas) também é um ponto relevante. A taxa de reverberação sendo elevada acarreta com o tempo, problemas como stress e perda auditiva. A garantia de um bom projeto de acústica é que a comunicação entre os usuários seja feita de forma clara e segura.

6 Desenvolvimento Do Projeto - Método Parte 4

A seguir, será apresentada de que forma a ergonomia pode ser inserida num sistema de produção de um projeto, neste caso em design de interiores.
Segundo WISNER (1997), a contribuição ergonômica pode ser classificada em: ergonomia de concepção, correção e de conscientização.
A primeira ocorre durante a fase inicial do ambiente. Requer um conhecimento profundo do programa visto que todas as decisões são tomadas em função de situações hipotéticas. Para um melhor conhecimento da situação inicial podem ser utilizadas metodologias sistêmicas de avaliação como a avaliação pós-ocupação (APO).
Já a ergonomia de correção é aplicada em situações previamente existentes. Muitas vezes deixa de ser feita em sua totalidade, gerando resultados insatisfatórios em função dos custos elevados para sua aplicação.
A terceira, ergonomia de conscientização, ocorre em função das alterações sofridas pelo ambiente através de reformas, manutenção, etc. Sua importância é essencial para o correto funcionamento das fases anteriores.
Considerando a ergonomia de concepção a mais importante dentre as demais, serão apresentados dois estudos de caso onde esta foi aplicada com sucesso.
Objetivando a concepção de projetos são estudadas a partir da metodologia ergonômica (estudo da situação existente), as atividades do trabalho a ser projetado. É detalhado todo o processo de tratamento das informações, assim como avaliadas as interações entre os vários profissionais, e o nível de cooperação necessário dentro do processo de trabalho. Estes dados são o ponto central do estudo ergonômico e servem de base para o desenvolvimento de todos os projetos que se seguiram a este. Os usuários participam ativamente da concepção do projeto, a partir de críticas e sugestões dos anteprojetos e maquetes.
O design de interiores com a sua metodologia realiza o levantamento de dados (normas, levantamento físico, estudo de funções e áreas necessárias) para o desenvolvimento do projeto simultaneamente ao estudo de ergonomia.

Estudo de materiais

Após ter feito o briefing, dá para se ter um norte do projeto. As ideias começam a fluir. Porém estas não podem ficar somente em nossa mente. É chegada a hora de expressá-las de alguma forma para que seu cliente possa entender o que você criou.
Aqui destacamos três realidades: desenho, a maquete e a maquete eletrônica ou maquete digital ou virtual.
Antes mesmo de vermos estas realidades é importante que você tenha conhecimento dos materiais que estará propondo no projeto. Algumas vezes o cliente sugere. Por exemplo: “Quero que a bancada do meu banheiro seja toda em mármore travertino estilo romano”. Então você já saberá que a bancada precisará ser neste material especificado pelo seu cliente. Como será o modelo aí já é com você. Contanto que seja em mármore travertino estilo romano.
Não iremos entrar muito neste assunto porque já vimos um pouco atrás. Aqui vai uma dica: fique sempre antenado com o mercado, pois todos os dias são lançados novos materiais, revestimentos, etc.

Desenho

O desenho arquitetônico é, em um sentido estrito, uma especialização do desenho técnico normatizado voltada à execução e a representação de projetos de arquitetura. Em uma perspectiva mais ampla, porém, o desenho de arquitetura poderia ser encarado como todo o conjunto de registros gráficos produzidos por arquitetos ou outros profissionais durante ou não o processo de projeto arquitetônico. O desenho de arquitetura, portanto, manifesta-se como um código para uma linguagem, estabelecida entre o emissor (o desenhista ou projetista) e o receptor (o leitor do projeto). Desta forma, seu entendimento envolve um certo nível de treinamento, seja por parte do desenhista ou do leitor do desenho. Por este motivo, este tipo de desenho costuma ser uma disciplina importante nos primeiros anos das faculdades de arquitetura.

Normalização

A representação gráfica do desenho em si corresponde a um conjunto de normas internacionais (sob a supervisão da ISO). Porém, geralmente, cada país costuma possuir suas próprias versões das normas, adaptadas por diversos motivos.
No Brasil, as normas são editadas pela Associação Brasileira de Normas Técnicas (ABNT), sendo as seguintes as principais:
• NBR-6492 - Representação de projetos de arquitetura
• NBR-10067 – Princípios gerais de representação em desenho técnico
Cabe notar, no entanto, que se por um lado recomenda-se a adequação a tais normas quando da apresentação de desenhos para fins de execução de obras ou em situações oficiais (como quando os profissionais enviam seus projetos à aprovação em prefeituras), por outro lado admite-se algum nível de liberdade em relação a elas em outros contextos. Durante o processo de elaboração e evolução do projeto, por exemplo, normalmente os arquitetos utilizam-se de métodos de desenho próprios apropriados às suas necessidades momentâneas, os quais eventualmente se afastam das determinações das normas. Esta liberdade se dá pela necessidade de elaborar desenhos, que exijam uma facilidade de leitura maior por parte de leigos ou para se adequarem a diferentes publicações, por exemplo .

Traços

Os traços de um desenho normatizado devem ser regulares, legíveis (visíveis) e devem possuir contraste umas com as outras.

Espessura dos traços

Pesos e categorias de linhas

Normalmente ocorre uma hierarquização das linhas, obtida através do diâmetro da pena (ou do grafite) utilizados para executá-la. Tradicionalmente usam-se quatro espessuras de pena:
• Linhas complementares - Pena 0,1. Usada basicamente para registrar elementos complementares do desenho, como linhas de cota, setas, linhas indicativas, linhas de projeção, etc.
• Linha fina - Pena 0,2 (ou 0,3). Usada para representar os elementos em vista.
• Linha média - Pena 0.4 (ou 0,5). Usada para representar os elementos que se encontram imediatamente a frente da linha de corte.
• Linha grossa - Pena 0.6 (ou 0,7). Usada para representar elementos especiais, como as linhas indicativas de corte (eventualmente é usada para representar também elementos em corte, como a pena anterior).

Tipos de traços

Quanto ao tipo de traços, é possível classificá-los em:
• Traço contínuo. São as linhas comuns.
• Traço interrompido. Representa um elemento de desenho "invisível" (ou seja, que esteja além do plano de corte).
• Traço-ponto. Usado para indicar eixos de simetria ou linhas indicativas de planos de corte.

7 Desenvolvimento Do Projeto - Método Parte 5

Tramas

Os elementos que em um desenho projetivo estão sendo cortados aparecem delimitados com um traço de espessura maior no desenho. Além do traço mais grosso, esses elementos podem estar preenchidos por um tracejado ou trama. Cada material é representado com uma trama diferente.

Folhas

Normalmente, as folhas mais usadas para o desenho técnico são do tipo sulfite. Anteriormente à popularização do CAD, normalmente desenvolvia-se os desenhos em papel manteiga ou vegetal de esquiço (desenhados a grafite) e eles eram arte-finalizados em papel vegetal (desenhados a nanquim ou tinta da China).

Tamanho das folhas

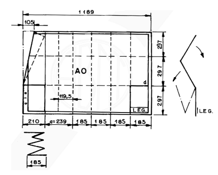
As folhas devem seguir os mesmos padrões do desenho técnico. No Brasil, a ABNT adota o padrão ISO: usa-se um módulo de 1 m² (um metro quadrado) cujas dimensões seguem uma proporção equivalente a raiz quadrada de 2 (841 x 1189 mm). Esta é a chamada folha A0 (azero). A partir desta, obtém-se múltiplos e submúltiplos (a folha A1 corresponde à metade da A0, assim como a A2 corresponde a metade do A1.

A maioria dos escritórios utiliza predominantemente os formatos A1 e A0, devido à escala dos desenhos e à quantidade de informação. Os formatos menores em geral são destinados a desenhos ilustrativos, catálogos, etc. Apesar da normatização incentivar o uso das folhas padronizadas, é muito comum que os desenhistas considerem que o módulo básico seja a folha A4 ao invés da A0. Isto costuma se dever ao fato de que qualquer folha obtida a partir desde módulo pode ser dobrada e encaixada em uma pasta neste tamanho, normalmente exigida pelos órgãos públicos de aprovação de projetos.

Importante

O desenho em cada uma das etapas de um projeto:

Normalmente a complexidade e quantidade de informações de um desenho variam de acordo com a etapa do projeto. Apesar de existirem etapas intermediárias de projeto, as apresentadas a seguir normalmente são as mais comuns, pelas quais passam praticamente todos os grandes projetos.

• Estudo preliminar. O estudo preliminar, que envolve a análise das várias condicionantes do projeto, normalmente materializa-se em uma série de croquis e esboços que não precisam necessariamente seguir as regras tradicionais do desenho arquitetônico. É um desenho mais livre, constituído por um traço sem a rigidez dos desenhos típicos das etapas posteriores.

• Anteprojeto. Nesta etapa, com as várias características do projeto já definidas, (implantação, estrutura, elementos construtivos, organização funcional, partido, etc), o desenho já abrange um nível maior de rigor e detalhamento. No entanto, não costuma ser necessário informar uma quantidade muito grande, nem muito trabalhada, de detalhes da construção. Em um projeto residencial, por exemplo, costuma-se trabalhar nas escalas 1:100 ou 1:200. Nesta etapa ainda são anexadas perspectivas feitas à mão ou produzidas em ambiente gráfico-computacional para permitir melhor compreensão do projeto.

• Projeto legal ou Projeto de licenciamento. Corresponde ao conjunto de desenhos que é encaminhado aos órgãos públicos de fiscalização de edifícios. Por este motivo, possui algumas regras próprias de apresentação, variando de cidade em cidade. Costuma-se trabalhar nas mesmas escalas do anteprojeto.

• Projeto executivo ou Projeto de execução. Esta etapa corresponde à confecção dos desenhos que são encaminhados à obra, sendo, portanto, a mais trabalhada. Devem ser desenhados todos os detalhes do edifício, com um nível de complexidade adequado à realização da construção. O projeto básico costuma ser trabalhado em escalas como 1:50 ou 1:100, assim como seu detalhamento é elaborado em escalas como 1:20, 1:10, 1:5 e eventualmente, 1:1.

Maquete

Maquete, maqueta, ou modelo é uma representação em escala de grandes estruturas, objetos, edifícios etc.

Ou seja, é qualquer representação realista podendo ser funcional ou não, dependendo do interesse do estudo. Podem também ser representações virtuais, como nos desenhos assistidos por computador (vulgo CAD Computer Assisted Design), quando então recebem a denominação específica de maquete eletrônica.

As maquetes são geralmente utilizadas em projetos de planejamento urbano mostrando o visual de novas construções no contexto da área existente.

As maquetes podem ser feitas com uma grande diversidade de materiais, incluindo plásticos, metais, madeira e um material próprio chamado cartão de maquete. Em diversos lugares há museus com exposições de maquetes.

Escalas

Existem várias escalas de miniaturas. A escala é dada pela relação entre o objeto real e o objeto em miniatura. A escala 1/18 significa que a miniatura é 18 vezes menor do que o objeto real. É uma escala muito utilizada em réplicas de veículos (carros, motos e militaria).

Geralmente as maquetes são feitas para mostrar um projeto arquitetônico. Mas é possível utilizá-las em projetos de interiores também.

Maquete Eletrônica ou Maquete Digital ou Virtual

A Maquete Eletrônica 3D, é a computação gráfica aplicada a área da construção civil e levada ao extremo do realismo. A maquete 3D permite uma perfeita visualização de projetos arquitetônicos e de interiores por clientes e financiadores a um custo acessível, sendo assim uma ótima ferramenta para profissionais da área. Projetos de arquitetura, de interiores e empreendimentos imobiliários são simulados em 3D com qualidade fotorealística o que é conseguido através da computação gráfica.

Ampliando conhecimento

Observação: O texto abaixo se refere à arquitetura, porém podemos tê-lo como texto de apoio para nosso conhecimento. Uma vez que, arquitetura e design de interiores caminham sempre juntos.

8 A criatividade no processo de desenvolvimento de projetos de arquitetura

introdução

Considerando o contexto geral da arquitetura vem-me uma imagem que inicialmente abarca dois aspectos essenciais, que até poderiam, de um determinado ponto de vista, serem interpretados opostos entre si. Com o intuito de clarear o processo de desenvolvimento da criatividade de projetos arquitetônicos, proponho o aprofundamento quanto a seus conteúdos e também ampliação do debate sobre este tema. Podemos perceber na atualidade uma tendência, sua origem na discussão no meio arquitetônico, data de décadas atrás, que se preocupa com o discernimento analítico do processo projetual. Em resumo poderíamos caracterizar esta tendência com o ‘fazer da arte uma ciência’. De fato constatamos que grande parcela da atual produção arquitetônica de uma ou de outra forma aniquilou a arte de seu contexto. A arquitetura sempre foi considerada a mãe das artes, sem ela as outras não teriam o espaço necessário para suas manifestações, tal como o museu para as artes plásticas, o teatro para as artes cênicas, musica, ópera e dança e assim por diante. Em contrapartida podemos usufruir também de propostas em que a questão artística e todo o seu meio processual é abordada como fundamento para o desenvolvimento de qualidades correspondentes a ela. Busca-se esclarecer formas e critérios para o desenvolvimento de qualidades e capacidades profissionais que levam à criação no âmbito da arquitetura. No âmbito da ciência psicológica podemos também tomar conhecimento que o ser humano está duplo - e diretamente envolvido na questão em discussão. São Homens que projetam, são Homens os usuários e futuros usuários de todo e qualquer espaço construído. Sendo assim, com a intenção de nortear a conscientização da temática do título deste ensaio, poderíamos certamente resumir a complexidade do processo criativo em três itens básicos:
• A ciência
• A arte
• O Homem
Através da ciência temos acesso ao mensurável, às quantificações. O objetivo da ciência é de fato discernir, separar ou até discriminar para melhor compreensão do objeto de estudo. Em se tratando do processo projetual a análise meticulosa dos fatos que envolvem o problema inicialmente, é essencial para a posterior fase criativa. Dados numéricos, tamanhos de áreas e as somas totais, mas também o conhecimento técnico que envolve a execução da obra engloba o escopo do item ciência. Para tal necessitamos e empregamos nossas capacidades racionais e intelectuais. Na ciência a criatividade leva às descobertas inusitadas, às invenções, que por sua vez resultam em tudo que conhecemos no âmbito da tecnologia.
Na arte por sua vez, precisamos despertar outras qualidades para termos acesso à questão da criatividade dentro de seu contexto. O Homem é por definição um ser criativo. Ele é criativo também nas realizações de suas ações. Ele não somente se expressa através da criatividade nas mais diversas áreas artísticas, mas também necessita do contexto artístico para o seu desenvolvimento pleno e condizente com sua natureza intrínseca. Confrontamo-nos aqui com a pergunta: Como podemos desenvolver sensibilidade artística e como podemos nos inserir no processo de criação das artes? Em se tratando do desenvolvimento de projetos arquitetônicos, qual seria o papel da capacidade criativa do profissional, qual seria o papel da arte? A arte tem uma dupla função: ela permeia o processo criativo, mas também é meio de expressão, portanto uma linguagem anímica entre obra e observador. A arte torna-se manifesto quando contemplada. A contemplação artística desvenda qualidades outras se comparadas às que adquirimos na análise científica.
O desenvolvimento de um projeto de arquitetura exige, por parte dos profissionais da área, no mínimo de um conhecimento básico da imagem do Homem. Só assim será possível atender às suas necessidades de bem estar e de desenvolvimento. É esta, a responsabilidade dos profissionais ligados à construção civil frente aos usuários de suas obras. De outro lado também é necessário clarear objetivos individuais dos profissionais da área para com a arquitetura e traçar caminhos que possibilitem inclusive as habilidades artísticas. Para o seu pleno desenvolvimento a arquitetura apela, por parte do arquiteto, à manifestação conjunta da arte e da ciência. J. W. Goethe expõe em um pensamento um possível elo entre a ciência e a arte: ‘Ao observarmos intensamente, de forma contemplativa um objeto da natureza dentro de seu contexto de vida, emerge da alma uma vontade irresistível de se expressar na arte’. Com a intenção de resgatar, de um lado, e onde presente, fortalecer a manifestação da arte na arquitetura, apresento em seguir proposta de processo de desenvolvimento de projeto que contempla a conscientização do processo criativo. Para sua melhor compreensão este processo pode ser pensado em três etapas, a formação de imagem, o desenvolvimento do projeto e a execução da obra. Quanto à última, ela não será abordada no contexto deste ensaio. É pertinente observar que não existe arquitetura no papel, na tela do computador. A arquitetura é obra concluída, executada. Se na execução da obra as decisões a serem tomadas considerarem o espírito da proposta projetual, evidentemente se agregará à qualidade final do contexto geral da referida obra arquitetônica.

formação de imagem

Desenvolvido pelo ORTA-Atelier em Delft, Holanda, este processo antecede o projeto e tem como intuito ampliar a gama de subsídios e informações necessários para a criação no contexto arquitetônico. A análise e observação de dados (ciência), mas também a contemplação de fenômenos (arte) configura e permeia esta fase do processo. A ideia da formação de imagem se baseia também na preocupação de um envolvimento mais amplo e profundo por parte dos futuros usuários da obra no processo projetual arquitetônico. Não construímos para nós arquitetos, tão pouco para os críticos da arte e sim para pessoas que buscam no espaço construído, qualidades adicionais e de apoio ao desenvolvimento individual e social. É essencial a análise de questões práticas e de funcionalidade no sentido de atender às necessidades materiais dos usuários. Mas a arquitetura também pode abarcar qualidades estas, que se referem ao ambiente propriamente dito, ao volume em relação ao seu entorno, sempre em relação, e estabelecendo sua identificação quanto à função e seu contexto. Visando possibilitar o levantamento destes conteúdos que fomentam o projeto arquitetônico propõem-se reuniões de trabalho entre os projetistas e futuros usuários abordando os seguintes temas:
• Qualidade de ambiente: É necessária e pertinente a participação ativa dos envolvidos no processo. Este tema consiste em caracterizar e descrever o ambiente interno evitando-se a contribuição de propostas de soluções arquitetônicas ou representações empáticas quanto às definições de espaços. É oportuna a comparação de ambientes para melhor caracteriza-los. Norteia a evolução do tema, a busca de imagens que caracterizam qualidades de ambientes que apoiem o bem estar individual e social. Assim também fazem parte deste escopo as qualidades que estimulam a atividade a ser exercida no futuro espaço. O engajamento individual no processo é essencial mesmo existindo as vezes, por parte de alguns participantes certa inibição quanto às suas expressões de vivências e experiências. O objetivo básico consiste em caracterizar conjuntamente, sempre com orientação do arquiteto, os ambientes ainda não materializados.
• Quantificação e prática de uso: Este tema se assemelha às reuniões iniciais que todos nós conhecemos, entre cliente e arquiteto. A análise visa a medida e tamanho de áreas, partindo do uso (praticidade) dos futuros espaços. São abordadas as questões que tratam das atividades do ponto de vista prático e o sequenciamento das mesmas classificando e ordenando os fatores mensuráveis do contexto da futura obra. Em situações complexas esta fase pode ser estendida e complementada com a participação de outros profissionais da área para discernimento de processos e fatores paralelos. O objetivo deste levantamento é o programa de áreas, o organograma e similares que delimitam e definem as questões práticas de uso, visando sempre otimização de desempenho da futura obra.
• Biografia da moradia Toda pessoa adulta provida de maturidade civil teve inúmeras experiências com o espaço construído, a arquitetura e no contexto maior, o urbanismo. Visto a tipologia da obra a serem projetadas estas experiências, as mais significativas, podem contribuir e complementar a imagem da futura obra. São as experiências inusitadas, as especificas que muitas vezes caracterizam uma relação que temos por natureza com a arquitetura. Estas vivências podem ser consideradas e fomentam a substância que servirá como fonte de inspiração do futuro projeto.
• Fenomenologia do entorno Cada lugar, cada sítio tem sua característica intrínseca. A região montanhosa da Serra, o cerrado paulista, a Mata Atlântica o litoral, mas também regiões urbanas, o contexto de uma rua, enfim qualquer que seja o terreno, sua configuração, as relações existentes em seu entorno e a qualidade própria do lugar, podem incrementar a imagem que fundamenta o partido do projeto. Também na abordagem deste tema, é de suma importância a colocação e contribuição individual dos participantes, tomando sempre como base à contemplação de fenômenos existentes no terreno e seu arredor. Por que a escolha deste local? Qual é a ligação que tenho com o local? Na atitude artística damos condições diferenciadas de diálogo, de relacionamento. Partindo das características do terreno questionar um eventual gesto, os movimentos e as proporções do futuro volume a ser inserido no terreno.
Assim encerra-se, em termos gerais, o processo de formação de imagem. Alem das conversas de forma contributiva (sem a intenção de medir a força de convencimento de idéias), métodos não verbais, como desenhos ou até trabalhos em argila enriquecem a formação de imagem. Até este momento ainda não existe delimitação definitiva de soluções arquitetônicas. Tem-se como resultado de pesquisa relatórios de dimensionamento de áreas, organogramas e as delimitações e restrições referentes ao terreno. Paralelamente percebe-se como fruto do processo uma imagem conjunta que caracteriza em qualidades, ambientes e volume, que futuramente pode ser materializada em arquitetura. Este processo também propiciou condições para que o arquiteto possa adentrar na situação particular do usuário, e este por sua vez compartilhar com o processo criativo da arquitetura.
Em situações de projetos em áreas urbanas o arquiteto inicia paralelamente ao processo de formação de imagem, analise e levantamento de restrições, ocupação de solo e demais questões legais que se referem à situação em questão. Estas e outras responsabilidades do profissional envolvido no processo não fazem parte do escopo desta proposta de trabalho por serem consideradas necessárias, independentemente do encaminhamento dado ao projeto. Quanto às situações de empreendimentos mais complexos pressupõem-se a participação ativa também de outros profissionais, tanto no processo de formação de imagem como também no desenvolvimento do projeto propriamente dito.

desenvolvimento de projeto

Uma vez encerrada a fase de formação de imagem dá-se inicio ao desenvolvimento do projeto de arquitetura. Durante este processo existe uma troca constante de informações, ideias e definições arquitetônicas, sempre respaldadas no conteúdo intrínseco resultante da formação de imagem. A participação do usuário é ativa também nesta fase. Em termos gerais caracteriza-se um desvendar da arquitetura em etapas. O inicio é o que denominamos de partido, ou ideia básica do projeto. A sequencia de etapas depende do projeto. Existe porem sempre alternâncias entre estudos no papel, em forma de croquis e estudos tridimensionais, em argila, plastilina ou cartolina. Paulatinamente o projeto emerge da substancia adquirida no processo de formação de imagem. De etapa para etapa os contornos do volume definem-se, a planta baixa adquire forma e gesto, atendendo às exigências práticas e qualitativas dos ambientes propostos. As fotos abaixo esclarecem o contexto deste trabalho até a fase do anteprojeto.

conclusão

Para desvendar o mistério da criação da arte pelo homem é necessário deslocarmos a nossa observação e abordagem de conhecimento, predominantemente racional e analítico. Nas palavras de Antoine de Saint-Exupéri em seu livro O Pequeno Príncipe: ‘Só se vê bem com o coração, o essencial é invisível aos olhos‘. O que de fato está sendo solicitado para adquirirmos a compreensão mais ampla e profunda do tema deste ensaio é uma real vivencia da arte e concomitantemente o desenvolvimento de sensibilidade e capacitação artística. Isto somente é possível no fazer, na ação que resulta em arte. A ciência leva o homem ao conhecimento. Porem, ela tem suas limitações. Neste contexto J. W. Goethe escreve: ‘A arte é conhecimento, pois todos as outras formas de conhecimento, tomadas em conjunto, não constituem um conhecimento completo do mundo, arte, -criatividade- deve ser adicionada ao que é conhecido abstratamente (ciência) se quisermos atingir um conhecimento universal’. Na atividade artística percebemos que não somente os sentidos e o pensar são ferramentas para adquirir conhecimento, mas que também as mãos, que de fato criam, são permeadas de sabedoria, de inteligência, qual necessária para todo processo criativo. A semente de um vegetal condensa dentro de um espaço minúsculo, forma e beleza, que pode ser desvendada depositando-a na terra. A ideia contida na semente se manifesta ao ser plantada. A força expressa no crescimento e desenvolvimento desta planta se assemelha às forças necessárias na criação da arte, no desvendar de uma ideia em forma, organização e estruturação. V. Setzer em seu ensaio, O Computador como Instrumento de Anti-Arte, declara: ‘A ciência é ideia tornada conceito, a arte é ideia tornada objeto. Ambas têm a mesma origem, a primeira é assimilada pelo pensamento, a segunda vivenciada pelos sentidos’. A arquitetura ora precisa da abordagem cientifica, ora da artística para que ela possa manifestar-se em sua plena magnitude.

bibliografia

- Organische Architectuur / Pieter van der Ree / Uitgeverij Vrij Geestesleven, Zeist, 2.000
- Kinderen em Wonen / Frank Sturkenboom em Angela Raanhuis / NCIV, de Bilt, 1987
- O COMPUTADOR COMO INSTRUMENTO DE ANTI-ARTE, Valdemar W. Setzer, Departamento de Ciência da Computação, instituto de Matemática e Estatística da USP

9 Desenvolvimento Do Projeto - Método Parte 6

Avaliação

Antes mesmo de fazer a primeira apresentação do projeto ao cliente se faz necessário fazer uma breve avaliação para conferir se o projeto está de fato como foi pensado e planejado. É importante perceber se as necessidades do cliente foram atendidas, bem como seus gostos, se o que foi projetado está dentro daquilo o que acertado em termo de valores pago ao profissional. Ou seja, se este está fazendo algo o mais do que lhe foi pago.
Observação: Fazer o que o cliente não pode ser uma “faca de dois gumes”. Ou o profissional vai ganhá-lo de vez (no sentido do cliente nunca mais soltar este profissional e contratá-lo sempre que precisar), ou o cliente sempre vai pedir mais do que ele está pagando. Cuidado! Ele (o cliente) pode achar que porque o profissional fez algo por ele uma vez, este tem a obrigação de fazer sempre além daquilo o que foi acertado. Em outras palavras: é bom não sair do escopo do projeto.
Observação: Caro professor, faça um estudo de caso, em sala de aula, de projetos existentes. Faça avaliações de plantas onde você possa identificar falhas no projeto e tirar possíveis dúvidas de seus alunos. Nesta aula seria bem interessante se você colhesse material na internet e com o uso de um data show fizesse uma explanação de casos verídicos. Um material muito bom de fazer isso são as plantas baixas de empreendimentos existentes. É bom também que os alunos façam essa pesquisa antes desta aula e eles mesmos tragam material para uma discussão em sala de aula.
Atenção: estamos falando aqui de duas avaliações.
A primeira delas é a respeito de o profissional fazer um pequeno checklist antes mesmo da primeira mostra do projeto a seu cliente.
A segunda é sobre fazer avaliações de casos existentes em sala de aula.

Modificação do projeto

Após ter concluído a primeira fase do projeto (Estudo Preliminar), é hora de passar para a segunda fase: anteprojeto. É nessa fase que todas as alterações têm quer ser feitas (como vimos anteriormente no assunto: Anteprojeto). Uma vez apresentado o projeto para o cliente este tem direito de fazer suas mudanças (obedecendo ao escopo do projeto, é claro!), ainda nesta fase.
Se o projeto sofreu muitas alterações, é interessante que o profissional volte ao início (briefing), e verifique se está caminhando conforme a análise.
Mas não significa que sempre é o profissional que está errado. Há casos onde o cliente realmente é muito indeciso e pode acorrer que, ao ser apresentado o projeto, ele sempre faça mudanças.
Este cliente irá precisar de um pouco mais de cuidado, pois ele se deixa facilmente levar pela opinião dos outros e do que ele vê. Por exemplo: Se uma determinada cliente entra à casa de uma amiga e gosta de sua cristaleira, ela irá pedir ao profissional que a faça igual. Mas se esta mesma cliente, dias depois, ver em algum filme outro modelo de cristaleira, com certeza irá pedir para que o profissional a faça igual.
Será preciso certo “jogo de cintura” para dar um basta na situação. E é fundamental que o profissional saiba dar esse basta, pois este não o fizer o projeto jamais será concluído.
É importante saber que é o profissional quem dá os limites durante todo o processo do projeto. Desde o início ao seu término.
As modificações são processos que quase sempre acontecem nos projetos. Porém, há casos onde o cliente quer exatamente do jeito que foi apresentado, sem que seja feita alguma alteração.

Desenho técnico

Forma de expressão gráfica que tem por finalidade a representação de forma, dimensão e posição de objetos de acordo com as diferentes necessidades requeridas pelas diversas modalidades de engenharia e também da arquitetura.
Utiliza-se de um conjunto constituído por linhas, números, símbolos e indicações escritas normalizadas internacionalmente.
Linguagem gráfica universal da engenharia e da arquitetura.
Atualmente, na maioria dos casos, os desenhos são elaborados por computadores, pois existem vários softwares que facilitam a elaboração e apresentação de desenhos técnicos.
Os desenhos definitivos são completos, elaborados de acordo com a normalização envolvida, e contêm todas as informações necessárias à execução do projeto.
Para transformar o desenho técnico em uma linguagem gráfica foi necessário padronizar seus procedimentos de representação gráfica.
Essa padronização é feita por meio de normas técnicas seguidas e respeitadas internacionalmente.

Papel

Os desenhos devem ser executados em papeis transparentes ou opacos, de resistência e durabilidade apropriadas.
A escolha do tipo de papel deve ser feita em função dos objetivos, do tipo do projeto e das facilidades de reprodução, a saber:
Papel transparente: Manteiga, vegetal, albanene, poliéstere cronaflex;
Papel opaco: Canson; schoeller ou sulfite grosso.

Formatos do papel

Devem ser utilizados os formatos de papel da série “A”, conforme NBR10068/87, formato A0 com o máximo e A4 comomínimo, para evitar problemas de manuseio e arquivamento.

Dimensões das folhas

Cada folha na seqüência possui dimensão igual a metade da folha anterior. A folha A1 possui a metade do tamanho da folha A0, a folha A2 possui a metade do tamanho da folha A1e assim por diante.

Margem

Margens são limitadas pelo contorno externo da folha e quadro. O quadro limita o espaço para o desenho;

10 Desenvolvimento Do Projeto - Método Parte 7

As margens esquerda e direita, bem como as larguras das linhas, devem ter as dimensões da tabela abaixo;

A margem esquerda serve para ser perfurada e utilizada no arquivamento.

Configuração da folha

A região acima da legenda é reservada para marcas de revisão, para observações, convenções e carimbos de aprovação de órgãos públicos.

Posição de leitura

Os desenhos devem ser lidos da base da folha de desenho ou de sua direita. As posições inversas a estas (leitura de cima para baixo ou da esquerda para a direita) são consideradas “de cabeça para baixo”.

Carimbo

• O local de cada uma das informações da legenda pode ser escolhido pelo projetista, destacar as informações de maior relevância;

• O número da prancha deve ser posicionado sempre no extremo inferior direito da legenda;

• O nome da empresa localiza-se na região inferior esquerda da legenda.

Dobramento de cópias de desenho

• O formato final deve ser o A4.

As folhas devem ser dobradas levando em conta a fixação da aba em pastas e deixando visível o carimbo destinado à legenda.

• Do formato A3 para o A4.

• De 420 x 297 para 210 x 297 mm.
• Do formato A2 para o A4.
• De 594 x 420 para 210 x 297 mm
• Do formato A1 para o A4.
• De 841 x 594 para 210 x 297 mm.
• Do formato A0 para o A4.
• De 1188 x 841 para 210 x 297 mm.

Numeração e títulos dos desenhos

Cotas de nível

As cotas de nível sempre em metro(m). Indicar:

Marcação dos cortes gerais

A marcação da linha de corte deve ser suficientemente forte e clara para evitar dúvidas. Nota: Quando o desenho indicado estiver na mesma folha, deixar em branco o local designado para o número da folha.

Marcação de detalhes

Ampliação e detalhes

Esquadrias

Portas e Janelas

Escalas mais usual

1/2; 1/5; 1/10; 1/20; 1/25; 1/50; 1/75; 1/100; 1/200; 1/250 e 1/500.

Escala gráfica – Desenho a grafite

norte

N – Norte verdadeiro
NM – Norte magnético – pode ser utilizado somente na fase de estudos preliminares

11 Desenvolvimento Do Projeto - Método Parte 8

NP - Indicação da posição relativa entre os vários desenhos constituintes do projeto. Esta indicação é opcional e deve ser acompanhada da indicação do norte verdadeiro.

cotas

• As cotas devem ser indicadas em metro(m) para as dimensões iguais e superiores a 1m;
• Em centímetro (cm) para as dimensões inferiores a 1m;
• Milímetros (mm) devem ser indicados como se fossem expoentes.
1. As linhas de cota devem estar sempre fora do desenho, salvo em casos de impossibilidade;
2. As linhas de chamada devem parar de 2 mm a 3 mm do ponto dimensionado;
3. As cifras devem ter 3 mm de altura, e o espaço entre elas e a linha de cota deve ser de 1,5 mm;
4. Quando a dimensão a cotar não permitir a cota na sua espessura, colocar a cota ao lado, indicando seu local exato com uma linha.
• Nos cortes, somente marcar cotas verticais;
• Evitar a duplicação de cotas.
• Evitar cotar as fachadas.

Representação dos materiais mais usados

12 Finalização do projeto de interiores

Elaboração do projeto definitivo

Elaboração e entrega do projeto definitivo de design de ambientes. Projeto definitivo: é o projeto de interiores e/ou arquitetônico aprovado pelo cliente. Entrega de maquetes eletrônicas e lista quantitativa de produtos e materiais necessários para a execução da obra.

O projeto definitivo não necessariamente precisa ser entregue em maquete eletrônica. Há profissionais que preferem entregar tudo (plantas baixas, vistas, cortes, perspectivas, etc.), em desenhos.

Em outras palavras é o projeto executivo, como vimos anteriormente. Aqui não há mais mudanças e o que foi decidido e firmado com o cliente não pode ser mais alterado.

O projeto definitivo só será entregue quando ficar de acordo com o que o cliente quer. Por isso, durante a fase do anteprojeto, é fundamental fazer todas as alterações necessárias. Antes da entrega, confira o projeto por completo. Veja se atendeu as expectativas do cliente, se foram corrigidas as alterações, enfim, faça um checklist.

Bidimensional:

Um desenho traçado em um plano em duas dimensões.

Bidimensionalidade:

É a qualidade de um personagem de ficção definido por uma característica, que não muda com o tempo, também conhecido como personagem plano. Se opõe ao personagem esférico. Uma coisa bidimencional (ou 2D) só tem duas dimensões:largura e altura.

Desde que o ser humano começou a desenhar, procurou representar na superfície a realidade que ele via no espaço. Na pré-história, os homens primitivos representaram objetos e animais do seu entorno, porém, em vista da dificuldade de expressar as figuras tridimensionais que viam, traçavam os contornos das imagens reais de maneira canhestra e chapada. (Vimos este assunto em História da Arte I).

Um desenho, por ser realizado numa superfície plana, é totalmente bidimensional. A tridimensionalidade que o desenhista expressa é produto de séculos de convenção e sedimentação do conceito de linhas de ponto de fuga.

Por ser a representação pictórica uma consequência da assimilação de convenções culturais, é possível brincar com as leis que todos aceitam. Fazem isto os fotógrafos escolhendo ângulos inusitados para os seus planos de profundidade e o fazem os desenhistas e pintores rompendo as tradições renascentistas ao brincar com a noção de profundidade.

O artista que aproveitou genialmente as tensões conflituosas presentes na representação pictórica, resultantes da relação entre espaço e superfície plana foi Escher. Ele desde cede se viu confrontado com a situação de conflito que é própria de qualquer representação espacial: três dimensões têm de ser representadas na bidimensionalidade do plano.

Representação bidimensional

É o conjunto de desenhos que o profissional de design de interiores, arquiteto, engenheiro civil faz para mostrar o projeto por completo e detalhes. Esses desenhos ou imagens computadorizadas não contêm volumes, profundidades. É o caso das plantas baixas:

É o caso das vistas:

...dos cortes:

Tridimensional:

Relativo ás três dimensões clássicas.

Altura, comprimento e largura formam uma figura tridimensional.

Perspectiva – Recordando...

Define-se a perspectiva como a projeção em uma superfície bidimensional de uma determinada cena tridimensional. Para ser representada na forma de um desenho (conjunto de linhas, formas e superfícies) devem ser aplicados mecanismos gráficos estudados pela Geometria projetiva, os quais permitem uma reprodução precisa ou analítica da realidade espacial.

A perspectiva manifesta-se especialmente na percepção visual do ser humano — o qual é tratado no artigo perspectiva (visão)— Tal fenômeno faz com que o indivíduo perceba, por exemplo, duas linhas paralelas, que dele se afastam, como retas concorrentes. Esta é apenas uma das formas que a perspectiva, enquanto manifestação gráfica, pode ocorrer (a retina humana faz o papel do plano de projeção onde a perspectiva é projetada: matematicamente existem outras formas, não percebidas pelo ser humano, de como os objetos tridimensionais podem ser representados.

Ainda que a perspectiva seja um dos principais campos de estudo da Geometria projetiva, seu estudo é bastante anterior a ela. Os povos gregos já possuíam alguma noção do fenômeno perspectivo, denominando-o como escorço, sem contudo terem chegado a um processo geométrico satisfatório. Durante o período medieval, não só a técnica representativa da perspectiva se perdeu, mas também a visão de mundo dos indivíduos alterou-se, de forma que grande parte do conhecimento teórico a respeito do assunto se perdeu. Foi durante o período do Renascimento que a perspectiva foi profundamente estudada e desenvolvida, abrindo o caminho para o seu estudo matemático através da Geometria projetiva, que posteriormente a sistematizou.

Importância

O homem, desde tempos antigos, sente a necessidade de visualizar suas idéias para melhor entendê-las e exibi-las. As maquetes fazem parte dessa história e são até hoje, utilizadas com o mesmo propósito, por exemplo na arquitetura moderna. A importância da utilização de maquetes na representação dos projetos é determinada por duas razões fundamentais. Em primeiro lugar, devido à especialização geral do desenho técnico introduzida pela utilização do computador, as técnicas tradicionais de representação sintética parecem ter adquirido uma nova vitalidade, pela sua própria capacidade de resumir de modo imediato as características de um projeto complexo. Por outro lado, a utilização de técnicas alternativas e de hábitos de composição associadas a estas é pouco freqüente nas instituições de ensino. Ao contrário, estas instituições dão uma extrema importância ao estudo das técnicas de desenho e da elaboração das maquetes arquitetônicas. No entanto, consideramos de notável interesse a interpretação das técnicas de síntese material, que encontram uma aplicação válida também nas escolhas dos materiais a ser utilizados nas maquetes.

Interessa aqui explorar o aspecto específico da representação tridimensional da arquitetura e comparar, suas características e possibilidades, nos meios eletrônicos e nos meios manuais.Para tanto é interessante apresentar uma noção básica da modelagem na arquitetura.

O termo modelagem é dúbio. Tanto pode ser uma operação de representação da forma tridimensional no plano (como um desenho em perspectiva, por exemplo), quanto pode ser uma composição tridimensional no espaço. Ou seja, a representação de uma arquitetura numa superfície plana (numa folha ou numa tela) por meio de recursos artísticos de perspectiva é modelagem. Assim como também é modelagem a construção de uma maquete de arquitetura. No senso comum, no entanto, predomina em português a noção de que a modelagem é uma ação formativa essencialmente material e tridimensional.

Ampliando conhecimento

Representação tridimensional não verdadeira. Enquanto tais fundamentos matemáticos não foram descobertos, a arte de representar objetos tridimensionais no plano bidimensional ficou entregue às tentativas e aos erros subjetivos cometidos por cada cultura e até modernamente, ou como forma de expressão, como vemos num Picasso, ou por falta de cultura acadêmica, como vemos na Arte Naïf:

Moderna forma de Arte intuitiva e ingênua denominada Naïf, na qual os artistas não possuem formação acadêmica para fazer uso da perspectiva de acordo com os cânones estabelecidos ao longo da Renascença.

O artista holandês Maurits Cornelis Escher, apesar de ter sido contemporâneo do século XX, se submeteu às regras clássicas da perspectiva, mas deu um toque todo especial, quando brincou com conceitos da representação tridimensional no plano para montar as suas ilusões. Algumas obras de Escher foram escolhidas para exemplificar o uso da técnica de pontos de fuga.

13 Finalização do projeto Parte 2

É essencial o uso do ponto, ou pontos de fuga para recriar a tridimensionalidade do mundo real. Assim, ao deformar os objetos no plano, restauramos através da nossa percepção a ilusão de que estamos vendo algo no espaço. Tal proeza foi a realização do sonho dos pintores renascentistas, que almejavam representar a realidade com a maior verossimilhança possível.

A representação tridimensional é fundamental no projeto, pois visa aproximar o projeto do mais real possível.

Diferente da representação bidimensional, a representação tridimensional possui em suas formas: volume e profundidade.

Seu efeito faz com que o cliente “entre dentro do projeto”, o tornando mais acessível aos olhos do espectador.

Exemplos de representações tridimensionais

Desenho:

Computadorizada:

Maquetes:

Ergonomia: objetivos, tendências e aplicações

A ergonomia, é a disciplina científica relacionada ao entendimento das interações entre seres humanos e outros elementos de um sistema, e também é a profissão que aplica teoria, princípios, dados e métodos para projetar a fim de otimizar o bem-estar humano e o desempenho geral de um sistema.
Os ergonomistas contribuem para o projeto e avaliação de tarefas, trabalhos, produtos, ambientes e sistemas, a fim de torná-los compatíveis com as necessidades, habilidades e limitações das pessoas.

Curiosidade:

O médico italiano Bernardino Ramazzini (1633-1714) foi o primeiro a escrever sobre doenças e lesões relacionadas ao trabalho, em sua publicação de 1700 "De Morbis Artificum" (Doenças ocupacionais). Ramazzini foi discriminado por seus colegas médicos por visitar os locais de trabalho de seus pacientes a fim de identificar as causas de seus problemas. O termo ergonomia, derivado das palavras gregas ergon (trabalho) e nomos (lei natural) entraram para o léxico moderno quando Wojciech Jastrzębowski o usou em um artigo em 1857.
A ergonomia baseia-se em muitas disciplinas em seu estudo dos seres humanos e seus ambientes, incluindo antropometria, biomecânica, engenharia, fisiologia e psicologia.
A Associação Internacional de Ergonomia divide a ergonomia em três domínios de especialização. São eles:
• Ergonomia Física: que lida com as respostas do corpo humano à carga física e psicológica. Tópicos relevantes incluem manipulação de materiais, arranjo físico de estações de trabalho, demandas do trabalho e fatores tais como repetição, vibração, força e postura estática, relacionada com lesões músculo-esqueléticas. (veja lesão por esforço repetitivo).
• Ergonomia Cognitiva: também conhecida engenharia psicológica, refere-se aos processos mentais, tais como percepção, atenção, cognição, controle motor e armazenamento e recuperação de memória, como eles afetam as interações entre seres humanos e outros elementos de um sistema. Tópicos relevantes incluem carga mental de trabalho, vigilância, tomada de decisão, desempenho de habilidades, erro humano, interação humano-computador e treinamento.
• Ergonomia Organizacional: ou macroergonomia, relacionada com a otimização dos sistemas sociotécnicos, incluindo sua estrutura organizacional, políticas e processos. Tópicos relevantes incluem trabalho em turnos, programação de trabalho, satisfação no trabalho, teoria motivacional, supervisão, trabalho em equipe, trabalho à distância e ética.
A ergonomia aplica-se ao desenvolvimento de ferramentas de ações sistematizadas em virtude uma politica da qualidade e a critérios de averiguação de sua aplicação, como na assimilação da cultura do bem fazer por bem estar e compreender, nas chamadas auditorias ou análises de qualificação e mapeamentos de processos, e atinge a segmentos diversos quando margeia a confiança aos métodos de interpretação e a introdução de novos aplicativos, artefatos e até de gerenciamento de pessoas inerentes ou inseridas a um grupo. Os sistemas de qualidade em disseminação, quando de sua possibilidade em humanizar os processos volta-se a racionalizar o homem ao sistema e a interface da pessoa com o método.
A Ergonomia pode ser aplicada em vários sectores de atividade (Ergonomia Industrial, hospitalar, escolar, transportes, sistemas informatizados, etc.). Em todos eles é possível existirem intervenções ergonômicas para melhorar significativamente a eficiência, produtividade, segurança e saúde nos postos de trabalho. A Ergonomia atua em todas as frentes de qualquer situação de trabalho ou lazer, desde os stresses físicos nas articulações, músculos, nervos, tendões, ossos, etc., até aos factores ambientais que possam afetar a audição, visão, conforto e principalmente a saúde.

Alguns exemplos das áreas de atuação da ergonomia:

• No desenho de equipamentos e sistemas computorizados, de modo a que sejam mais fáceis de utilizar e que haja menor probabilidade de ocorrência de erros durante a sua operação – particularmente importante nas salas de controlo, onde existe uma elevada carga de stress.
• Na definição de tarefas de modo a que sejam eficientes e tenham em conta as necessidades humanas, tais como, pausas para descanso e turnos de trabalho sensíveis, bem como outros factores, tais como recompensas intrínsecas do trabalho em si.
• No desenho de equipamentos e organização do trabalho de modo a melhorar a postura e aliviar a carga de trabalho no corpo, reduzindo assim as Lesões Músculo-Esqueléticas do Membro Superior e as Lesões resultantes de Trabalho Repetitivo.
• Na arquitetura da informação, de modo a que a interpretação e uso de guias, sinais, e ecrãs seja mais fácil e sem ocorrência de erros.
• Na criação de ações de formação para que todos os aspectos do trabalho sejam compreendidos pelos trabalhadores.
• No desenho de equipamento militar e espacial – casos extremos de resistência do corpo humano.
• Na concepção de ambientes de trabalho, incluindo a iluminação e a temperatura ambiente, de modo a satisfazer as necessidades dos utilizadores e das tarefas executadas. Onde seja necessário, na concepção de equipamentos de proteção individual para o trabalho em ambientes hostis.
• Nos países em desenvolvimento, a aceitação e eficiência do uso de tecnologia básica pode ser melhorado significativamente.

Objetivos:

• Adaptar o trabalho às capacidades e possibilidades dos seres humanos. Todos os elementos são projetados de trabalhos ergonômicos, tendo em conta quem irá utilizá- los. O mesmo deve acontecer coma a organização da empresa: é preciso projetá-lo de acordo com as características e necessidades dos indivíduos dentro delas;
• Identificar, analisar e reduzir os riscos ocupacionais;
• Contribuir para a evolução de situações de trabalho, não só do ponto de vista do material, mas também em aspectos, com o máximo satisfação, conforto e eficiência;

14 Finalização do projeto Parte 3

• Aumentar a motivação e satisfação no trabalho.

Tendências:

Ergonomia dos métodos e das tecnologias, contínua necessidade de adaptação da máquina ao homem. (Americana) Ergonomia da organização do trabalho, estudo da inter-relação entre o homem e o trabalho, como o homem “sente” e “experimenta” o trabalho. Ergonomia da Conscientização. (Europeia) Tríade básica da Ergonomia - a busca cada vez mais forte por:
• Conforto;
• Segurança;
• Eficiência.

Aplicações:

Os mais de vinte subgrupos técnicos da Sociedade de Fatores Humanos e Ergonomia (Human Factors and Ergonomics Society - HFES), indicam a ampla faixa de aplicações desta ciência. A engenharia de fatores humanos continua a ser aplicada na aeronáutica, envelhecimento, transporte, ambiente nuclear, cuidados de saúde, tecnologia da informação, projeto de produtos (design de produto), ambientes virtuais e outros. Kim Vicente, professor de ergonomia da Universidade de Toronto, afirma que o acidente nuclear de Chernobil pode ser atribuído ao fato de os projetistas da instalação não prestarem suficiente atenção aos fatores humanos. "Os operadores eram treinados, mas a complexidade do reator e dos painéis de controle ultrapassavam sua habilidade de perceber o que eles estavam vendo, durando o prelúdio do desastre."
Assuntos de ergonomia também aparecem em sistemas simples e em produtos de consumo. Alguns exemplos incluem telefones celulares e outros dispositivos computacionais manuais que continuam diminuindo de tamanho e se tornando cada vez mais complexos. Milhares de gravadores de vídeo-cassetes continuam piscando “12:00” em todo o mundo, porque poucas pessoas conseguem descobrir como programá-los, ou relógios despertadores que permitem usuários sonolentos inadvertidamente desligar o alarme quando pretendiam somente silenciá- lo momentaneamente. Um projeto centrado no usuário, também conhecido como abordagem de sistemas, ou ciclo de vida da engenharia de usabilidade ajuda a melhorar o ajuste entre usuário e sistema.

Ergonomia: análise de postura, mobiliário

O objetivo da ergonomia é investigar aspectos do trabalho que possam causar desconforto aos trabalhadores e propor modificações nas condições de trabalho para torná-las confortáveis e saudáveis. Ela proporciona maiores informações sobre as condições de trabalho, suas possíveis adequações, e consequente melhoria no desempenho do trabalhador em suas atividades. Sendo uma ciência que estuda a relação trabalho/homem, ela possui subáreas de atuação, tais como, Análise Ergonômica do Trabalho (AET) que visa não somente categorizar as atividades dos trabalhadores, como também estabelecer a narração dessas atividades, permitindo, modificar o trabalho ao modificar a tarefa, buscando a adaptação do trabalho ao homem. A AET compreende as seguintes etapas: a Análise Ergonômica da Demanda, a Análise Ergonômica da Tarefa, a Análise Ergonômica das Atividades, o Diagnóstico Ergonômico da Situação de Trabalho e o Caderno de Encargos de Recomendações Ergonômicas (CERE). Cada etapa tem um objetivo, a saber: a Análise Ergonômica da Demanda define os pontos mais críticos do ambiente de trabalho; a Análise Ergonômica da Tarefa verifica as condições técnicas, ambientais e organizacionais do ambiente de trabalho como a adequação do maquinário, iluminação e ritmo de trabalho, respectivamente; a Análise Ergonômica das Atividades busca identificar o comportamento do trabalhador na realização do ofício, observando posturas e gestos; o Diagnóstico Ergonômico da Situação de Trabalho, que visa estabelecer um diagnóstico dos principais problemas existentes nos postos de trabalho que devem sofrer mudanças e, por fim; o Caderno de Encargos de Recomendações Ergonômicas (CERE), onde são definidas as recomendações necessárias para uma melhoria das condições de trabalho e um aumento da produtividade.
O trabalhador será mais produtivo se estiver satisfeito e motivado no trabalho, grande parte dessa satisfação e motivação depende das condições de trabalho em que ele desenvolve suas atividades. A forma como ele participa na busca e solução dos problemas, também interfere, pois existe uma relação direta entre produtividade, satisfação e motivação. A postura adequada é um dos principais fatores a ser considerado para que a relação, acima citada, seja harmoniosa. Desse modo as atividades devem ser realizadas sem sobrecarga nos segmentos corporais e com menor gasto energético durante o trabalho.
Vimos acima a ergonomia no trabalho, mas é possível e devem ser usados os princípios ergonômicos nos projetos em residências, áreas de lazer, etc. Isoladamente não existe mobiliário ou artefato por si só “ergonômico”. A adequação depende da interação entre os diversos componentes do trabalho realizado e as características dos usuários, em especial suas medidas corporais. Entre esses componentes estão: as atividades desenvolvidas, o trabalhador, os equipamentos e o ambiente. Para a ergonomia, é indispensável verificar inicialmente o que é feito, quem faz o que, onde, como e quanto de trabalho é realizado para especificar alguma medida preventiva ou corretiva. Há que se considerar tanto as atividades rotineiras como as de menor frequência, como alcançar documentos, atender telefone, levantar para realizar outras tarefas.
O posicionamento do mobiliário em relação às fontes luminosas e a adoção de posturas corporais adequadas são fundamentais na prevenção de desconfortos e lesões.
Em residência com espaços bem resolvidos, os móveis são bem distribuídos, circula-se com liberdade e se trabalha com conforto. Não adianta ter uma sala de jantar linda, com mesas e cadeiras para oito pessoas, se quando alguém sentado for se servir, as pessoas ao lado precisarem levantar.
Ter móveis muito grandes, desproporcionais, em um espaço pequeno, pode acentuar a ideia de aperto. Pode tornar a sensação de que o lugar é ainda menor. Móveis proporcionais dão ideia de ambientes, organização. Algumas dicas importantes:
• Para corredores compridos, não deixar passagem menor do que 80 cm.
• Quando o espaço é pequeno, tente colocar peças baixas porque, assim, elas não ocupam muito volume no ambiente e não carregam muito;
• Para as cadeiras de trabalho, deixar no mínimo 75 cm (para permitir que você afaste a cadeira para se sentar ou se levantar). Quando houver circulação eventual de uma pessoa atrás da sua cadeira, deixar pelo menos 90 cm.
• Preste atenção na hora de escolher as cadeiras com braço: elas precisam ser mais afastadas do tampo da mesa para permitirem que você sente e levante; Ainda sobre os braços… Não deixe de conferir se a altura é menor do que o vão abaixo do tampo.
• Na mesa de jantar, o tampo deve dividir espaços de pelo menos 62 cm de largura para cada um. As regras do espaço atrás do tampo, para levantar e sentar confortavelmente, são as mesmas das mesas de trabalho;
• Assentos confortáveis para sala de TV precisam ter profundidade livre de pelo menos 60 cm. Cuidado com os encostos ou almofadas que te levam muito pra frente. Você corre o risco de ter que assistir TV sentado retinho;
• Luminárias pendentes nunca devem atrapalhar a linha de visão de quem está à mesa. Precisam ficar acima da altura dos olhos;
• Numa estante, as prateleiras mais altas devem ter no máximo 1.80m. Se forem mais altas que isso, há necessidade de utilizar escada;
• Espaço de circulação em volta da mesa de centro numa sala de estar deve ter no mínimo 55 cm. Quanto mais baixa a mesa, maior o espaço vai parecer.
Tomemos agora uma cozinha como exemplo.
Para que a cozinha tenha as circulações adequadas para a realização de um bom trabalho, seguem algumas medidas que podem ser utilizadas como padrão:
• Passagem mínima para uma pessoa: 60 cm
• Passagem mínima para duas pessoas: 120 cm
• Distância mínima para uma pessoa agachar: 76 cm
• Altura do tampo: 85 a 93 cm em média. No site da TokStok é possível encontrar uma tabela que orienta a altura da bancada de acordo com a altura do usuário, evitando que fique arcado enquanto trabalha gerando dores nas costas:

15 Finalização do projeto Parte 4

• Altura bancada de lanches: entre 1,05 e 1,10m (Saiba tudo sobre: Bancadas de Cozinha);
• Módulos superiores: em média devem estar a 60 cm acima da bancada, na altura dos olhos, facilitando ver o que há dentro do armário (aproximadamente 1,50m do piso - esta medida pode variar em função do projeto e da altura dos moradores).
• Ergonomia e Circulação – Necessidades Especiais
• Para cozinhas utilizadas por cadeirantes é recomendado:
• Colocar apenas tampo (e não armários) embaixo da pia, fogão e bancada de trabalho;
• Tampo: deverá ter no máximo 85 cm de altura e altura livre inferior de no mínimo 73cm (NBR 9050/2004);
• Instalar prateleiras e módulos superiores em altura menor;
• Passagem mínima usuário de muletas tipo canadense: 90 cm (NBR9050);
• Espaço mínimo de circulação para um cadeirante: círculo com diâmetro de 1,50m.

Antropometria: amplitudes e limitações

Existe uma grande variabilidade nas dimensões e dos tipos físicos entre os indivíduos. Muitas razões contribuem para estas diferenças, tais como o sexo, raça, idade, clima, nutrição, etc. Assim, mesmo em pequenos grupos encontramos uma grande variedade de dimensões.
Como nos habituamos a conviver com pessoas de vários tamanhos e tipos, aceitamos estas diferenças como naturais, bem como as dimensões das coisas que usamos: as portas que são suficientemente altas (pelo menos para a grande maioria), cadeiras e mesas que aceitamos usar, não poucas vezes com evidente desconforto. Quando nos encontramos em situações nas quais as dimensões dos objetos que necessitamos de utilizar nos colocam dificuldades acrescidas, usamos da nossa capacidade para nos adaptarmos às condições existentes.
As lesões músculo-esqueléticas, em particular na região dorso-lombar, têm vindo a assumir cada vez maior importância nas questões de saúde ocupacional. As atividades profissionais tornam-se cada vez mais sedentárias e as pessoas passam mais tempo sentadas durante o trabalho quer em escritórios quer em veículos motorizados. A incidência de dores na região lombar aumenta na população trabalhadora o que leva alguns a questionar a alegada pouca importância em geral atribuída à relação mais íntima entre as pessoas e os objetos que utilizam. Desde os primeiros estudos no campo da ergonomia se procurou determinar as distâncias necessárias para o eficiente controlo manual numa grande variedade de postos de trabalho, sendo também considerados os problemas relacionados com o assento e respectiva postura.
Assim, a antropometria que era inicialmente utilizada para a classificação e identificação de diferenças rácicas e dos efeitos de dietas alimentares, condições de vida, etc., no crescimento, foi cada vez mais utilizada no fornecimento de informações acerca das dimensões humanas importantes para a concepção dos postos de trabalho. A princípio, muitas das decisões eram tomadas com base em critérios simples: o alcance era definido pelo comprimento do braço estendido entre o ombro e o punho, o comprimento do antebraço definia as áreas de fácil alcance e a distância entre a face inferior da coxa e o solo, como a perna dobrada pelo joelho em ângulo reto era a dimensão adequada para a altura do assento de uma cadeira.
Estas e outras dimensões do mesmo tipo, obtidas de muitas diferentes populações durante as últimas quatro décadas, constituem ainda a fonte de dados em que se baseiam muitas das decisões tomadas no projeto ou "design" de postos de trabalho. Contudo, como se verá adiante, os dados e as suas aplicações tornaram-se mais complexos. Os ergonomistas reconhecem agora mais claramente a importância da harmonização, a mais perfeita possível, das dimensões dos equipamentos com a forma e dimensões das pessoas que os utilizam.
É hoje sabido que uma pequena diferença entre a distância do plano de trabalho e o assento, mesmo de apenas um ou dois centímetros, pode ser suficiente para causar - ou evitar - dores no pescoço ou nos ombros. Em certas atividades, uma inclinação do tronco à frente, ainda que ligeira mantida durante algum tempo, pode ser mais incômoda e provavelmente mais prejudicial que outras posturas aparentemente mais extremas. Reconhece-se também que a natureza das tarefas pode ser um fator tão importante para dimensionamento de um posto de trabalho como, por exemplo, a estatura das pessoas.

Que relação existe entre ergonomia, antropometria e "design"?

A antropometria aplicada pode ser considerada uma das ciências humanas básicas que contribuem para a ergonomia, que por sua vez contribui com dados, conceitos e metodologias para o processo de "design".

Ruído

O ruído é qualquer som que traz uma sensação auditiva desagradável e perturbadora. O ruído é das formas de poluição mais evidentes no meio industrial e no ambiente em geral, e pode afetar o homem nos planos físico, psicológico e social, podendo:
• Lesar órgãos auditivos;
• Perturbar a comunicação;
• Provocar irritação;
• Provocar fadiga.

Tipos de ruídos:

Ruído direto: indivíduo diretamente em frente da fonte geradora do ruído.
Ruído refletido: não está perto da fonte sonora, mas está próximo do obstáculo refletor. Ex: Eco .
Ruído de fundo: como o próprio nome já diz,não está diretamente inserido no ambiente, e sim indiretamente. Ex: trânsito.
O ser humano consegue distinguir sons na faixa de frequência que se estende de 20 Hza 20.000 Hz.

Classificação do ruído

(variabilidade do pico de emissão)
Contínuo- Ruídos que, durante um período de observação, não menor que 15 minutos,tem variação de 3 dB.•Intermitente- Ruídos que apresentam picos maiores de 3 dB, com intervalos entre os picos de, até, 1 segundo.•Impacto- Ruídos que apresentam picos com intervalos maiores de 1 segundo

16 Finalização do projeto Parte 5

Efeitos do Ruído no Homem

O ruído afeta o homem a nível físico, psíquico e mesmo social. De uma forma direta pode dar origem a:
• Diminuição da capacidade auditiva;
• Redução da capacidade de comunicação;
• Incômodo;
• Fadiga física e psíquica;
• Redução do rendimento.
Exposição a níveis sonoros elevados podem conduzir à diminuição permanente da capacidade auditiva, por traumatismos no nível do ouvido interno. Este tipo de trauma é irreversível. O risco de perda auditiva aumenta com o nível sonoro e com o tempo de exposição, mas depende também das características do SOM.
Além disso, a sensibilidade ao ruído varia significativamente de indivíduo para indivíduo. Há pessoas que podem ser afetadas ao fim de relativamente pouco tempo, enquanto outras trabalham durante muitos anos em ambientes caracterizados por níveis de ruído elevados, sem apresentarem perdas auditivas significativas.
Normalmente, exposições de curta duração em ambientes ruidosos, levam a uma redução temporária da capacidade auditiva.
Se o ruído não for muito intenso e o período de exposição demasiado elevado, a capacidade auditiva é recuperada após um período de repouso em ambiente calmo.
Algumas medidas contra ruídos segundo Koenigsberg et alli:
• Utilização de barreiras contra ruídos,
• Posicionamento das aberturas,
• Utilização de materiais isolantes;
• Redução na fonte de ruído;
• Isolamento da fonte através de barreiras absorventes;
• Zoneamento das atividades;
• Redução dos ruídos produzidos por impactos;
• Utilização de superfícies absorventes;
• Utilização de construções herméticas com isolamento acústico.

Importante:

Os altos níveis de ruído urbano têm se transformado, nas últimas décadas, em uma das formas de poluição que mais tem preocupado os urbanistas e arquitetos. Os valores registrados acusam níveis de desconforto tão altos que a poluição sonora urbana passou a ser considerada como a forma de poluição que atinge o maior número de pessoas. Assim, desde o congresso mundial sobre poluição sonora em 1989, na Suécia, o assunto passou a ser considerado como questão se saúde pública. Entretanto, a preocupação com os níveis de ruído ambiental já existia desde 1981 pois, no Congresso Mundial de Acústica, na Austrália, as cidades de São Paulo e do Rio de Janeiro passaram a ser consideradas as de maiores níveis de ruído do mundo. Nascida de médias brasileiras, onde a qualidade de vida ainda é preservada, o ruído já tem apresentado níveis preocupantes, fazendo com que várias delas possuam leis que disciplinem a emissão de sons urbanos. Numa visão mais ampla, o silêncio não deve ser encarado apenas como um fator determinante no conforto ambiental, mas deve ser visto como um direito do cidadão. O bem estar da população não deve tratado apenas com projetos de isolamento acústico tecnicamente perfeito, mas, além disso, exige uma visão crítica de todo o ambiente que vai receber a nova edificação. É necessária uma discussão a nível urbanístico. Outro conceito importante a ser discutido se refere as comunidades já assentadas ameaçadas pela poluição sonora de novas obras públicas. A transformação de uma tranquila rua em avenida, a construção de um aeroporto ou de uma autoestrada, ou uma via elevada, pode levar o ruído a níveis insuportáveis.

Clima

O clima é um fator que muito devemos considerar, pois trabalhar conforto ambiental também significa falar de clima. Ao projetar uma sala de TV bem aconchegante, por exemplo, é necessário está atento, mais uma vez, a necessidade do cliente e a seu poder aquisitivo. Porque necessidades? Porque se a sala dele for quente você precisará estudar a possibilidade de no mínimo, colocar um ar condicionado ou fazer uma parede com lã de vidro. Por outro lado, se ele não tiver um bom poder aquisitivo, a possibilidade de colocar um ar condicionado já não daria certo. Por isso, é bom ter essa atenção. O projeto precisa está submetido ao clima do lugar onde será projetado.

Alguns exemplos de como podemos trabalhar o clima e usá-lo a nosso favor:

Chama-se isolante térmico um material ou estrutura que dificulta a dissipação de calor, usado na construção e caracterizado por sua alta resistência térmica. Estabelece uma barreira à passagem do calor entre dois meios que naturalmente tenderiam rapidamente a igualarem suas temperaturas.
O melhor isolante térmico é o vácuo, mas devido à grande dificuldade para obter-se e manter condições de vácuo, é empregado em muito poucas ocasiões, limitadas em escala. Na prática se utiliza ar, que graças a sua baixa condutividade térmica e um baixo coeficiente de absorção da radiação, constitui um elemento muito resistente à passagem de calor. Entretanto, o fenômeno de convecção que se origina nas câmaras de ar aumenta sensivelmente sua capacidade de transferência térmica. Além disso o ar deve estar seco, sem umidade, o que é difícil de conseguir nas câmaras de ar.
Por estas razões são utilizados como isolamento térmico materiais porosos ou fibrosos, capazes de imobilizar o ar seco e confiná-lo no interior de células mais ou menos estanques. Ainda que na maioria dos casos o gás enclausurado seja ar comum, em isolantes de células fechadas (formados por bolhas não comunicantes entre si, como no caso do poliuretano projetado), o gás utilizado como agente espumante é o que fica finalmente enclausurado. Também é possível utilizar outras combinações de gases distintas, mas seu emprego é muito pouco extenso.
Há vários tipos de materiais sólidos que podem ser bons isolantes, isso depende da utilidade dada, a temperatura de trabalho, ao local de instalação entre outros. Podem-se utilizar como isolantes térmicos: lã de rocha, fibra de vidro, hidrossilicato de cálcio, manta de fibra cerâmica, perlita expandida, vidro celular, poliestireno expandido, poliestireno extrudado, espuma de poliuretano, aglomerados de cortiça, etc. Deve-se observar sempre que não existe isolamento térmico perfeito, ou, em outras palavras, todo material ou estrutura constituída por alguma composição de materiais sempre conduz algum calor.
A lã de vidro, por suas propriedades físicas e químicas, é um dos mais tradicionais isolantes térmicos usados no mundo. Na construção civil, tem contribuído para a obtenção do conforto térmico e acústico das edificações comerciais e residenciais.
Além disso, o isolamento térmico também possibilita o uso racional de energia nas edificações, principalmente nos sistemas de ar-condicionado, pois possibilita o uso de equipamentos de menor porte (menor investimento), diminuindo o consumo.
A lã de vidro é um componente fabricado em alto forno a partir de sílica e sódio, aglomerados por resinas sintéticas, desenvolvido especificamente para melhorar o isolamento termo acústico do edifício. É comercializada em rolos e em painéis, havendo uma diversidade de densidades e espessuras, que adequam-se a cada necessidade.

17 Finalização do projeto Parte 6

Características:

É leve, fácil de manusear e de cortar; São incombustíveis, evitando a propagação das chamas e o risco de incêndio; Reduz o consumo de energia do sistema de ar condicionado; Não atacam as superfícies com as quais estão em contato; Não favorecem a proliferação de fungos ou bactérias; Não deteriora nem apodrece; Não é atacada nem destruída pela ação de roedores; Não tem o desempenho comprometido quando exposto à maresia; Sua capacidade isolante não diminui com o passar do tempo.

Performance Térmica

• É leve, fácil de manusear e de cortar;
• São incombustíveis, evitando a propagação das chamas e o risco de incêndio;
• Reduz o consumo de energia do sistema de ar condicionado;
• Não atacam as superfícies com as quais estão em contato;
• Não favorecem a proliferação de fungos ou bactérias;
• Não deteriora nem apodrece;
• Não é atacada nem destruída pela ação de roedores;
• Não tem o desempenho comprometido quando exposto à maresia;
• Sua capacidade isolante não diminui com o passar do tempo

Performance Acústica

Por ser um material fibroso, a lã de vidro é um dos melhores materiais para o tratamento acústico, podendo ser usada na isolação acústica, que é a construção de barreiras para evitar a transferência de uma onda sonora (ruído) de um ambiente para o outro ou na absorção acústica, que é um tratamento aplicado para melhorar a qualidade acústica dos ambientes. Quando uma onda sonora entra em contato com a lã de vidro, ela é facilmente absorvida, devido à porosidade da lã. Além disso, ocorre uma fricção entre a onda e a superfície das fibras. Essa fricção converte parte da energia sonora em calor, ou seja, a lã de vidro faz com que a energia sonora perca intensidade, o que resulta em um aumento de absorção ou da isolação sonora. Tal fenômeno de absorção e fricção em conjunto não ocorre com outros materiais não fibrosos.

Segurança Contra Incêndio

A lã de vidro é um material incombustível, qualidade que deve ser considerada em todos os projetos de edificações comerciais ou residenciais. O comportamento ao fogo dos materiais isolantes, inclusive aqueles com revestimentos, deve ser o de não contribuir e não propagar o fogo durante uma situação de incêndio.
Deve-se tomar cuidado com os produtos denominados "auto-extinguíveis", pois tal situação não se aplica em caso de incêndios, quando, além das chamas, o calor atinge temperaturas acima de 800 ºC.
Nas aplicações específicas, em que é necessária a proteção passiva ao fogo, por exemplo - na proteção de estruturas metálicas, porta e paredes corta-fogo, recomenda-se o uso de outros materiais como a lã de rocha e lã cerâmica, pois suportam a temperatura e o tempo de exposição direta ao fogo especificado por uma norma técnica.

Segurança para o Usuário

A lã de vidro é do tipo de fibra que não tem nenhuma relação com as fibras de amianto, atualmente alvo de restrições de uso. A Agência Internacional para a Pesquisa do Câncer (Iarc), ligada à Organização Mundial de Saúde, classifica a lã de vidro como um material não cancerígeno. Também não contribui para a proliferação de ratos, insetos, fungos e bactérias.

Aplicações na Construção Civil

Isolamento térmico e acústico de coberturas. No Brasil, uma das principais deficiências em isolamento térmico está nas coberturas. São inúmeros os galpões industriais e comerciais sem qualquer tipo de isolamento térmico.
Nas edificações residenciais, o sofrimento com o calor nos ambientes cobertos com lajes e telhados sem isolação é frequente, principalmente no verão. A simples instalação de lã de vidro sob as telhas (na forma de mantas ou de forro ) reduz significativamente a entrada de calor ao ambiente.
Também pode ser usada em coberturas com telhas do tipo sanduíche. Além disso, contribui para reduzir significativamente o ruído gerado pela chuva nas coberturas metálicas. Assim, a lã de vidro tem se mostrado como um dos melhores produtos para o tratamento térmico e acústico de coberturas comerciais, industriais e residenciais, devido aos seguintes fatores:
- Alta resistência térmica;
- Não perde a eficiência com o passar do tempo;
- Ampla gama de produtos disponíveis no mercado;
- Facilidade de aplicação;
- Segurança ao fogo.

Forros e Revestimentos de Paredes

Além de proporcionar uma solução estética ao ambiente, os forros e os revestimentos de paredes feitos com a lã de vidro são excelentes isolantes térmicos e com ótima performance para tratamento acústico de diversos tipos de ambientes, como escritórios, lojas, restaurantes,cinemas, teatros, home theater, supermercados, entre outros.
Existem diversos produtos oferecidos ao mercado, geralmente revestidos com filmes plásticos ou tecidos especiais, com características de baixa propagação superficial de chama. Lã de vidro é um material isolante feito de fibra de vidro, disposto de maneira a apresentar uma textura similar a lã. Lã de vidro é produzida em rolos ("mantas") ou em placas, com diferentes propriedades térmicas e mecânicas.
Possui aplicação, em tipos especiais, tanto em propriedades químicas, de baixa reatividade ao meio, como conformação mecânica, de pouco risco em seu uso, também em laboratório, indústria e outros fins, como no aquarismo, como um meio filtrante.

Cortiça

É o material isolante térmico de uso mais antigo. Normalmente é usado na forma de aglomerados, formando painéis. Deve ser tratado contra o ataque de fungos, pois é uma material orgânico (de origem biológica). Sua maior vantagem é a inércia térmica que apresenta.
Densidade: 110 kg/m3 e Coeficiente de condutividade para o painel aglomerado: 0,039 W/(m.K)

18 Finalização do projeto Parte 7

Projeto conforto ambiental para interiores

Sem dúvida, o principal objetivo de qualquer arquiteto é a satisfação plena de seu cliente, antes, durante e após a execução da obra. Quando se trata em proporcionar o máximo de satisfação possível ao usuário, o Conforto Ambiental é tido com um dos principais objetivos da arquitetura. Visando esse objetivo é que arquitetos, engenheiros e construtores estão mudando sua forma de pensar, projetar e construir.
O conceito de Conforto Ambiental em Arquitetura e Urbanismo está ligado à questão básica de se proporcionar aos assentamentos humanos as condições necessárias de habitabilidade, utilizando-se racionalmente os recursos disponíveis. Trata-se de fazer com que o produto arquitetônico corresponda - conceitual e fisicamente - às necessidades e condicionantes do meio ambiente natural, além do social, cultural e econômico de cada sociedade.
O Conforto Ambiental, compreende o estudo das condições térmicas, acústicas, luminosas e energéticas e os fenômenos físicos a elas associados como um dos condicionantes da forma e da organização do espaço”, explica Virgínia Araújo, professora do curso de Arquitetura e Urbanismo da UFRN, que há 30 anos desenvolve sua trajetória profissional e acadêmica voltada para a área de Conforto Ambiental.
Todo arquiteto deve ser capaz de projetar considerando as especificidades climáticas do local, a luz natural, o conforto ambiental e a eficiência energética como parâmetros de projeto arquitetônico, enfocando o desenvolvimento bioclimático sustentável. “Conhecer as condições ambientais e visitar o local do projeto são fundamentais para se ter uma noção correta de todas as particularidades como percepção dos ventos, percurso do sol, ruídos acústicos e vegetação, por exemplo. “Posteriormente, com as simulações feitas em softwares a partir dos dados obtidos no local, temos como ter uma visão bem próxima da realidade e, assim podemos fazer os ajustes necessários antes que a obra seja executada”, destaca Virgínia Araújo. Segundo a professora, a maior preocupação do arquiteto deve existir na fase inicial do projeto, anterior à execução.
Conforto Ambiental e Eficiência Energética estão intimamente ligados, e se executados de forma correta podem gerar até 70% de economia de energia, sendo assim um dos grandes desafios dos arquitetos. Com o tipo de vidro correto, por exemplo, pode-se controlar a luz e o calor no interior das edificações, gerando assim um conforto térmico e luminoso. Já para o conforto acústico é necessário que os projetos de estrutura, caixilharia, ar condicionado e interiores sejam compatibilizados, otimizando assim o Conforto Ambiental. “Quando planejado na fase de projeto o Conforto Ambiental se torna mais eficiente e mais barato”, enfatiza Virgínia Araújo.
O cliente é uma peça-chave nesse conceito de Conforto Ambiental, pois é dele que deve partir a exigência necessária na hora da execução do projeto. Entretanto, em vários casos, é a expectativa do cliente que induz o arquiteto a executar a obra de forma inadequada, fugindo do padrão ideal da arquitetura. “Muitos clientes utilizam projetos de residência, por exemplo, que são desenvolvidas para o Sul do país e simplesmente pedem um projeto semelhante, esquecendo que aquela região possui características climáticas diferentes das do Nordeste do Brasil. A estética, em muitos casos, é mais relevante”, declara a professora e arquiteta.
O envoltório e o entorno das edificações são determinantes do Conforto Ambiental. O desenvolvimento de um projeto deve ultrapassar o método da tentativa e do erro e deve ser capaz de garantir o comportamento necessário e esperado. Um detalhe deve ser destacado: o projeto deve estar adequado ao meio, já que o inverso não é possível.
Muito já se falou sobre reformas de ambientes e adaptações em espaços de convivência, sejam eles residenciais ou comerciais, sem ao menos dar o devido valor à humanização, isto é, espaços que proporcionem qualidade de vida, de bem estar, aumentando as relações de convivência humana. Não só satisfazendo, de acordo com seus usuários, determinados aspectos estéticos ou idéias de beleza, mas envolvendo também valores sociais e culturais, desenvolvimentos tecnológicos, aspectos psicológicos e ambientais, que os tornem mais “humanos”, possibilitando a convivência de forma plena.
Estes conceitos estão intimamente relacionados com a concepção dos espaços e a dimensão humana. Muitas destas “mudanças” ou reformas de ambientes adotam valores pré-concebidos das relações humanas, e continuam a definir espaços aplicando “moldes pré-concebidos”, sem mesmo questionar sua influência e domínio na vida das pessoas que ali desenvolvem suas atividades, sejam elas de trabalho, lazer ou descanso. As reais necessidades individuais, hábitos específicos, aspectos culturais e sociais destas pessoas, são simplesmente descartados, para dar lugar a uma “fórmula pronta de ambiente”. Muitas vezes um ambiente personalizado é interpretado apenas em um patamar meramente estético; não correspondendo satisfatoriamente com um modo de vida singular, os hábitos e aspectos sociais específicos; não levando em conta o bem estar ou a convivência das pessoas. Nestes casos, a aparência é levada como o principio e o fim da concepção espacial. O estético não deveria ser determinante.
É tempo de repensar e conceber os locais de convívio do homem em função de valores sociais e culturais, necessidades e hábitos específicos. Uma grande parte dos intelectuais de nossa época defende a ideia de que a humanização do design tem de ser a missão fundamental da Arquitetura no século XXI.
O ambiente é uma extensão do ser humano na sua forma de habitar, trabalhar, conviver e viver. Sob esta ótica, não meramente estética, pessoa e ambiente são unos e, portanto, não podem ser pensados separadamente. Os projetos arquitetônicos e de design de interiores precisam levar em consideração a vida humana. Estes projetos devem propor simultaneamente noções de funcionalidade, estética e conforto (térmico, acústico, luminotécnico, ergométrico, tátil, etc.).
Exemplificando de forma simples, quem não conhece aquele projeto que propõe uma sala de jantar que é raramente utilizada, em uma área generosa da residência, enquanto a família se “espreme” em uma sala intima, para ver diariamente seu programa favorito. Adota-se muitas vezes, sem a menor hesitação, um “molde pré-concebido”, sem se quer pensar, se a sala de jantar pode continuar desfrutando de tamanha dimensão em relação aos demais ambientes, ou ter prioridade em relação aos hábitos da família em questão.
Durante sua história moderna, o homem foi levado a crer que a chave “do bem estar” estava nas reformas exteriores. A consequência desta ênfase exagerada no exterior foi a negligencia - até o esquecimento total - das atividades interiores do homem, da necessidade de refrear algumas ações mentais e estimular outras. A tarefa mais premente do homem, hoje, é a valorização da vida e do convívio humano. Precisamos de um novo estágio do pensamento, um modelo baseado em princípios de humanização.
Atualmente percebemos que não são muitos, os projetos que se revelam “de dentro para fora”; priorizando essas noções relacionadas à qualidade de vida e bem estar do homem; abordadas aqui de forma sintética. Nelas devemos basear a concepção de projetos; em princípios básicos do ser humano, com a naturalidade que nos protege da artificialidade. Neste sentido cabe a nós, educadores e profissionais da área, a tarefa de alertar. Acredito que a formação do Designer de Interiores, da teoria à prática, deverá se voltar para esta questão, ampliando seus conhecimentos de outras áreas tais como: arquitetura, sociologia, meio-ambiente e psicologia. Desenvolvendo ainda mais, sua sensibilidade e percepção dos aspectos estéticos, éticos e de comportamento.