Cursos Online
Inicio Categorias Cursos
Voltar ao curso

Capacitação Básica em Eletricista Industrial

8 modulos

1 Instalações Elétricas 2 Eletricista predial e residencial 3 Eletricista predial e residencial 2 4 Eletricista predial e residencial 3 5 Princípios da Eletricidade 6 Medidas preventivas para instalações elétricas 7 Segurança com Eletricidade 8 Padronização de entrada de energia elétrica-
Inicio Capacitação Básica em Eletrici... Padronização de entrada de energia elétr...

Padronização de entrada de energia elétrica-

Capacitação Básica em Eletricista Industrial

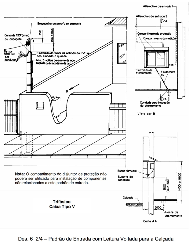
1 Instalação de padrão de entrada

Segurança com Eletricidade Anterior Fazer Avaliacao
Cursos Online

Cursos online gratuitos com certificado. Estude no seu ritmo e conquiste novas oportunidades.

Links

  • Inicio
  • Categorias
  • Cursos

Informacoes

Cursos livres conforme Lei nº 9.394/1996 e Decreto nº 5.154/2004.

© 2026 Cursos Online. Todos os direitos reservados.